Gemeindehaus und Auberge-Restaurant Port Gitana

46 von 192

 
1293 Bellevue,
Schweiz

Veröffentlicht am 16. März 2026
atelier ba.le GmbH
Teilnahme am Swiss Arc Award 2026

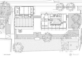
Balkone Platanen Route de Lausanne Passage Neonschild Port-Gitana Restaurant Enfilade im 2. Obergeschoss Sitzungszimmer Gemeinderat Treppenhaus Blick vom See Gemeindesaal Ausstellungsraum Einweihung Spiegelung und Landschaft

Projektdaten

Basisdaten

Lage des Objektes
Route de Lausanne 318, 1293 Bellevue, Schweiz
Projektkategorie
Fertigstellung
09.2025
Links

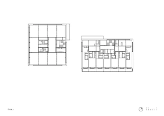
Gebäudedaten nach SIA 416

Stockwerke
3 bis 5
Anzahl Kellergeschosse
1
Geschossfläche
3090 m²
Nutzfläche
2650 m²
Gebäudevolumen
11'670 m³
Gebäudekosten (BKP 2)
16,5 Mio. CHF

Beschreibung

Offener Projektwettbewerb 2020, 1. Preis
Am Ufer des Genfersees in Bellevue entsteht in Port Gitana ein neues Ensemble mit doppeltem Programm: ein Gemeindehaus und eine Auberge mit Restaurant, die der Gemeinde einen neuen Begegnungsort mit Blick auf den See und die Alpen bieten.  Die zwei neuen Gebäude sind so positioniert, dass sie einen Vorplatz und eine neue Passage bilden. Dadurch werden das Dorfzentrum und der Park, die noch immer durch die Kantonsstrasse getrennt sind, stärker miteinander verbunden. Zwei grosse dreieckige Vordächer umgeben den neuen Durchgang, heissen die Besucher willkommen und markieren die Haupteingänge. Die Volumen mit ihrer einfachen Geometrie fügen sich in den Dorfkontext ein, indem sie den Massstab und Farbgebung der kleinen umliegenden Häuser aufnehmen. Inspiriert von den Badehäusern aus Holz evoziert das Ensemble eine See-Atmosphäre und verstärkt so die Verbindung zwischen dem Dorf und den Seeufern.

Das Gemeindehaus und das Auberge-Restaurant fügen sich in den Park und in seine Topografie ein, indem sie mit Halbgeschossen auf die verschiedenen Funktionen des Programms reagieren: So profitiert der grosse Mehrzwecksaal von einem Blick auf den See und die Alpen, während sich im Geschoss darunter Bereiche befinden, die dem Strand gewidmet sind. Im Auberge-Restaurant haben die Restaurantgäste direkten Kontakt zum Park und der Terrasse. Die Holzkonstruktion und die leicht schräge Fassade verleihen dem Gebäude eine gewisse Leichtigkeit, während die Mineralität der Sockel die Volumen im Park verankert und damit das Thema der bestehenden Mauern aufnimmt. Es sind zwei Häuser, die sich gegenseitig ergänzen und ein Ganzes bilden. Sie schaffen eine neue Polarität für das Dorf Bellevue und einen Ort der Begegnung, der Freizeit und der Kultur für den Grossraum Genf. Ihr einzigartiger Charakter zwischen einfachen Satteldach- und Badehäusern verleiht dem Ort eine neue Identität und tritt sowohl innen als auch aussen gegenüber der grandiosen umgebenden Landschaft in den Hintergrund.

Über atelier ba.le
Port Gitana ist der erste Wettbewerb und damit das erste realisierte Projekt des Büros. Das Projekt steht exemplarisch für die Schwerpunkte von atelier ba.le: Projekte mit vielfältigen und komplexen Programmen, die neue Begegnungsorte schaffen.

Zum Standort
Port Gitana ist aufgrund seiner Aussicht, seiner Lage am Seeufer und seiner üppigen Vegetation ein aussergewöhnlicher Ort. Der Standort ist sowohl durch seine Beziehung zum Dorfzentrum als auch zu den Seeufern geschützt. Zudem besitzt er eine historische Bedeutung für die Genfer Bevölkerung. Seine Entwicklung wurde durch die enge Zusammenarbeit mit den Behörden und öffentlichen Kommissionen ermöglicht. Vom ersten Besuch des Ortes bis zur Fertigstellung blieben die Leitideen unverändert: zwei Gebäude für zwei Funktionen, welche die dörfliche Atmosphäre mit jener des Sees verbinden, ohne in die am Seeufer häufig anzutreffende Ostentation neuer Bauten zu verfallen. Das Hauptbild des Wettbewerbs und das realisierte Projekt sind der Beweis für diese lineare Entwicklung.

Zur Programmierung und Bauherrschaft
Die Gemeinde Bellevue verfolgte das Ziel, der Bevölkerung den Zugang zum Seeufer zurückzugeben und gleichzeitig die Attraktivität des Dorfes zu stärken. Vorgesehen sind Räumlichkeiten für Vereine und die Musikschule sowie eine Auberge communale für das lokale Leben und den Tourismus.
Das Programm ist stark öffentlich orientiert und misst den Aussenräumen eine zentrale Bedeutung bei. Diese Beziehung bildet den Ausgangspunkt der räumlichen Organisation des Projekts und fördert die Verbindung der Nutzer*innen mit Landschaft und Umgebung.

Zum Projekt
In Port Gitana bilden Dorf, Park, See und Badewelt die zentralen Inspirationsquellen des Projekts. Sie prägen Volumetrie, Materialität, Farbgebung und räumliche Organisation: helle Holzbauten, die an Badehäuser erinnern, stehen auf Sockeln aus gestocktem Beton und nehmen damit die Materialität der zahlreichen bestehenden Mauern und Bauten im Park auf. Die kontrastierende Farbe von Fenstern und Balkonen erinnert an den sommerlichen Farbton des Sees. Der Höhenunterschied zwischen Strasse und Park ermöglicht eine differenzierte räumliche Organisation in der Schnittfigur. Diese Vielfalt setzt sich im Aussenraum fort, wo jede Fassade wie ein eigenständiges Bild komponiert ist. Eine dieser Fassaden wurde seit dem Wettbewerb grundlegend überarbeitet, um die Beziehung zwischen Innen- und Aussenraum des Auberge-Restaurants zu stärken. Im Inneren treten die Materialien bewusst in den Hintergrund. Die Aussicht wird zur Hauptqualität der Räume.

Zu Bauweise und Technik
Das Untergeschoss beschränkt sich auf die Grundfläche der Keller der abgerissenen Bauten. Die leichten Holzkonstruktionen erlauben es, auf Pfahlgründungen im Grundwasser zu verzichten. Die Wärme- und Kälteversorgung der Zimmer erfolgt über das Wasser des angrenzenden Sees.
Das Gebäude erfüllt den THPE-2000w-Standard, der für neue öffentliche Bauten im Kanton Genf vorgeschrieben ist. Die Dächer sind komplett mit integrierten Solarmodulen belegt, deren Farbe und Glanz an die glasierten Schieferplatten erinnern, welche einst die Villa der Baronin de Rothschild schmückten – das erste Gebäude, das bis in die 1970er-Jahre auf dem Gelände stand und dem Ort seinen Namen gab.

Das Projekt von atelier ba.le wurde im Rahmen des Swiss Arc Award 2026 eingereicht und von Nina Farhumand publiziert.

212866219