Babu's Bakery & Coffeehouse

 
8001 Zürich,
Suisse

Publié le 26 novembre 2025
Hanya Leo Artefacts & Spaces

Données du projet

Données de base

Catégorie de projet
Achèvement
03.2024

Description

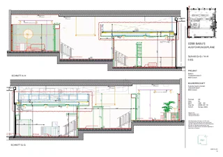
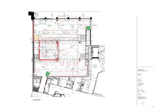
Depuis toujours, Babu's à Zurich est synonyme de brunchs succulents, de service chaleureux et d'ambiance confortable grâce à des trouvailles soigneusement sélectionnées – un concept qui a fait ses preuves au fil des ans. Pour le nouvel emplacement au rez-de-chaussée du siège de la NZZ, cet esprit familier a été associé au contexte architectural. Le bâtiment a été rénové en 1948 par l'architecte A. C. Müller dans un style Bauhaus épuré, caractérisé par de grandes baies vitrées qui offraient autrefois une vue sur les machines d'impression. Cette esthétique industrielle caractérise le nouveau Babu's: sols en béton composite, briques de verre et interprétation contemporaine des couleurs de la maison côtoient un mobilier vintage sélectionné de l'époque. Le résultat est un concept d'espace intemporel qui s'intègre harmonieusement dans le paysage gastronomique de Zurich.

Le projet a été téléchargé par Hanyo Leo artefacts & spaces et publié par Nina Farhumand. La version française a été revue par Estelle Gagliardi.

Entreprises impliquées dans le projet

Planification

223757959