Façades métalliques sur la côte vaudoise
Conçue pour être fonctionnelle, la nouvelle école Moser peut accueillir plus de 600 élèves. Elle dispose de deux restaurants scolaires, d’une salle de gymnastique et d’une salle de rythmique, de deux bibliothèques, d’un learning center, et de laboratoires de sciences. Construit en 2021, le quartier des lisières à Gland permet de loger quelques 700 nouveaux habitant·e·s dans 223 nouveaux appartements. Deux réalisations qui ont bénéficié de l'expérience de l'entreprise Ray SA en termes de façade métallique.
École Moser, Grens
L’école Moser a décidé de quitter le centre commercial de la Combe à Nyon pour s’établir dans un cadre plus favorable à l’apprentissage, au sein du Signy Park à Grens. Un projet novateur a été élaboré afin de répondre aux exigences et aux besoins de ses usager·èress. Désormais, l’établissement profite d’un environnement paisible et verdoyant, avec des panoramas sur le Jura, offrant ainsi une qualité de vie optimisée pour les élèves et le personnel enseignant. L'entreprise Ray SA y ont réalisé des éléments de façade métallique.
Casquettes:
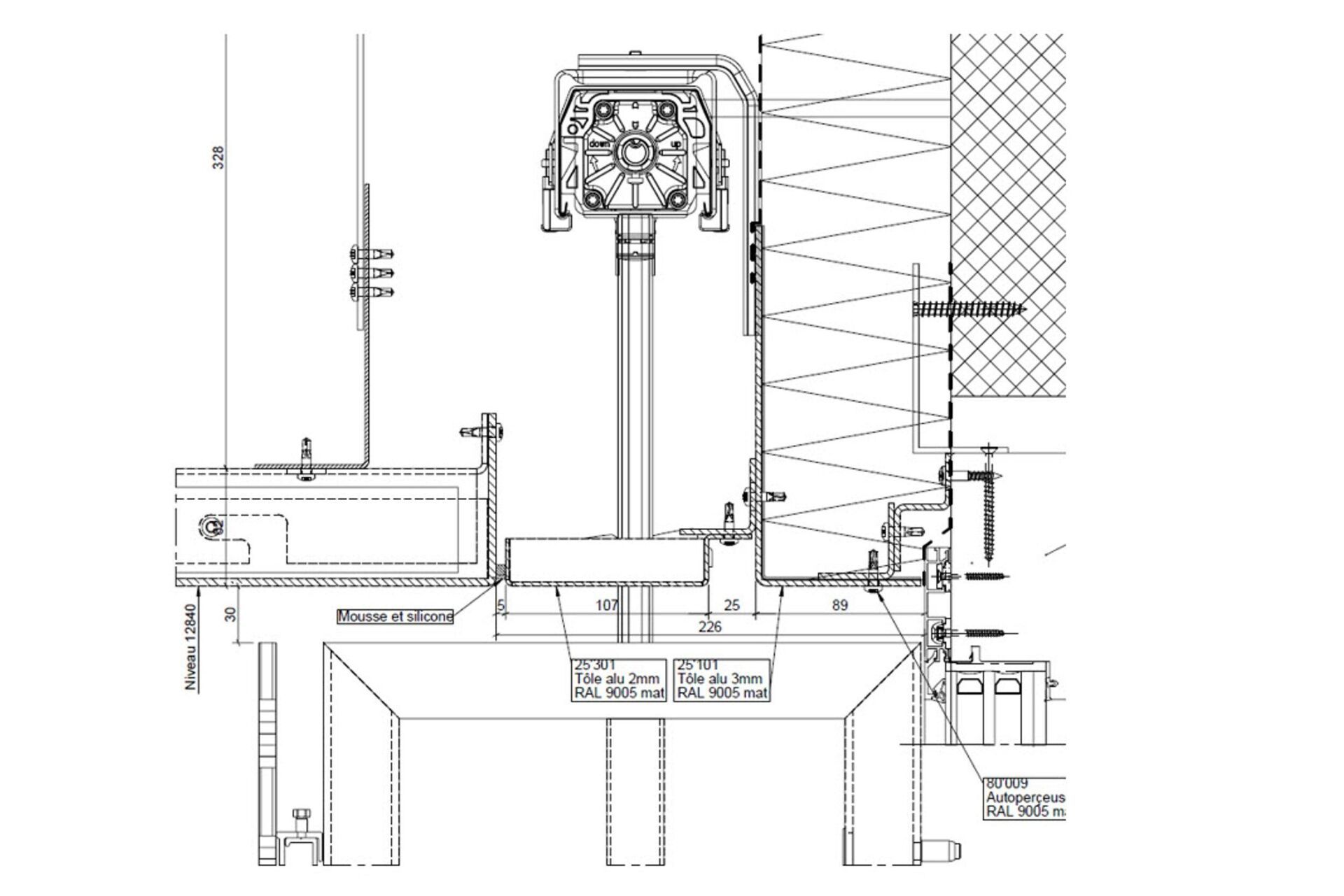
L'ouvrage est composé de deux casquettes, supérieure et inférieure, sur la totalité du périmètre du bâtiment, reliées par cinq meneaux verticaux aux principaux angles du bâtiment. Elles sont composées d'une structure porteuse en serrurerie lourde habillé en panneaux composites RF1 à fixation invisible et incluent trois angles arrondis du bâtiment, le Logo de l’école, l'intégration de ligne de vie, l'éclairage, les caisson de stores et les dégorgeoirs de sécurité. Les châssis en profilés acier composés-soudés sont fixés à la tête de dalle avec rupture thermique et revêtu de panneaux en Duripanel. La sous-construction en acier galvanisé pour la fixation d’une deuxième sous-construction en profilés U en aluminium thermolaqué reçoit les cassettes en panneaux composites type Alucobond (système baïonnette).
Dimension de petite casquette: hauteur =770 millimètres ; profondeur = 1370 millimètres
Dimension de grande casquette: hauteur = 825 millimètres ; profondeur = 2370 millimètres
Bandeaux:
Les têtes de dalle sont habillées en tôle aluminium sur deux niveaux du bâtiment pour créer une façade-rideau. Comprenant isolation RF1, ancrages d’échafaudage, tablette et caisson de store. La sous-construction en aluminium est fixée en tête de dalle avec rupture thermique, étanchéité et isolation en laine de roche. L'habillage en tôle aluminium trois millimètres pliée en plusieurs fois sert comme caisson store. La tôle est perforée pour garantir une bonne ventilation.
Eléments décoratif de façade en panneaux Fundermax:
Les façades du bâtiment ont été enrichies par l’installation d’écrans décoratifs réalisés en éléments composites Fundermax, répartis sur les trois niveaux. Ces panneaux sont supportés par une structure tubulaire en aluminium thermolaqué. La structure, composée de cadres assemblés à partir de profils verticaux et horizontaux en aluminium, est directement fixée aux dormants des vitrages bois-métal via un profilé spécialement développé pour accueillir ces châssis. Les fixations sont réalisées à l’aide de vis métriques, dissimulées à l’intérieur des tubes grâce à des bouchons plastiques assortis à la couleur du cadre, assurant ainsi une finition soignée et uniforme. Un élément central du cadre en aluminium joue un rôle multifonctionnel, intégrant la coulisse des stores. Du côté extérieur, des demi-crochets femelles sont fixés pour accueillir les panneaux de Fundermax. Les panneaux utilisés proviennent de la collection m.look Exterior A2. D’une épaisseur de neuf millimètres, ces éléments présentent une finition imitation bois de chêne sur les deux faces. Leur fixation est assurée par un système invisible de type SFS eclip’s, associé à des demi-crochets mâles de marque Hilti.
Eléments décoratif de façade en panneaux composite type alucobond:
Au rez-de-chaussée du bâtiment, des écrans décoratifs composés de cassettes en panneaux composites ont été installés. Ces panneaux, fixés par un système invisible, sont supportés par une structure tubulaire en aluminium thermolaqué. La structure est constituée de cadres assemblés à partir de profils verticaux et horizontaux en aluminium, fixés directement sur des profils en U verticaux reliés aux poteaux-traverses en bois-métal. Les fixations sont réalisées à l’aide de vis métriques dissimulées dans les tubes, protégées par des bouchons plastiques assortis à la teinte des châssis. Le tube vertical côté façade remplit une double fonction: en plus de structurer l’écran, il sert de support pour la coulisse des stores. Des douilles en plastique sont fixées sur la face extérieure des tubes, permettant de recevoir les panneaux en Alucobond. Ces cassettes, fabriquées à partir de panneaux Alucobond A2 d’une épaisseur de quatre millimètres, arborent une finition Terra Arctic Frost 380. Pliées en forme de «plaque à gâteau», elles sont renforcées à l’arrière par des équerres collées.
Superstructure habillage local technique dans la toiture:
La serrurerie lourde est composée d’une structure en tubes d’aluminium, habillée de lames en tôle d’aluminium. Les châssis porteurs en aluminium sont fixés à la dalle à l’aide de potelets et d’une rupture thermique au niveau supérieur sur le béton. La sous-construction primaire est en tôle d’aluminium de quatre millimètres, pliée en forme de Z avec des ouvertures pour l’évacuation de l’eau. La sous-construction secondaire, en tubes d’aluminium de 80 x 80 millimètres, permet la fixation à la première structure. Les tôles d’habillage en aluminium de trois millimètres, pliées et développées à 350 millimètres, sont fixées sur la sous-construction secondaire.
Préau:
L’habillage du plafond et de l’acrotère est réalisé avec une structure en béton, recouverte de panneaux composites. Il comprend l’intégration de l’éclairage, des haut-parleurs et des dégorgeoirs de sécurité. La sous-construction supérieure est composée d’une tôle de quatre millimètres pliée en équerre, fixée sur la structure en béton, et d’une deuxième tôle en forme de U, qui reçoit les cassettes en Alucobond. Ces cassettes sont fixées à l’aide d’un système d’ancrage type baïonnette. Le revêtement en Alucobond A2 (épaisseur quatre millimètres, finition Terra Arctic Frost 380) est plié pour s’adapter à la forme souhaitée. Le système de fixation invisible repose sur un système d’accrochage avec des équerres collées à l’arrière des panneaux pour des fixations intermédiaires discrètes.
Quartier des Lisières, Gland
L’ensemble permet une densification tout en privilégiant un aménagement paysager qualitatif et généreux entre les immeubles. Il favorise une vie sociale riche grâce à la création d’un nouvel axe de mobilité douce et la présence de surfaces commerciales. L’intégration réussie avec la zone naturelle située à proximité assurera par ailleurs aux habitants des Lisières un cadre verdoyant.
Réalisé par trois maîtres d’ouvrage différents, ce projet offre des immeubles résidentiels qui se caractérisent par une architecture élégante avec des façades cisaillées de Ray SA.
Composition de la façade
Isolation laine de verre PBF 030
Sous construction en aluminium
Bardage en tôle alu SP27, épaisseur un millimètre, teinte type anodisé naturel
Finition de couvertine et tablettes de balcons: tôle aluminium anodisé naturel, épaisseur deux millimètres













