Casa sogn Martin

 
7017 Flims Dorf,
Suisse

Publié le 26 mars 2026
Hofmann & Durisch AG
Participation au Swiss Arc Award 2026

Données du projet

Données de base

Situation de l'objet
Plaz 2, 7017 Flims Dorf, Suisse
Catégorie de projet
Type de bâtiment
Achèvement
07.2025

Données du bâtiment selon SIA 416

Étages
2 étages
Nombre de sous-sols
1 étage
Nombre d'appartements
1
Surface de terrain
500 m²
Surface de plancher
400 m²
Surface utile
355 m²
Volume bâti
1268 m³
Coûts de construction (BKP 2)
2,5 mio. CHF
Places de parking
2
Nombre de lits
6

Description

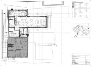
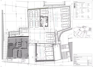
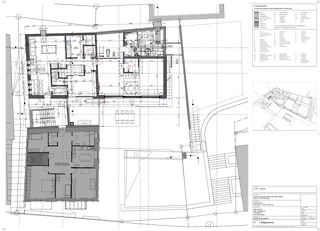
Casa Sogn Martin – Rénovation et construction dans le centre historique de Flims
Dans le vieux centre de Flims, un ensemble harmonieux allie passé et présent pour former un ensemble architectural serein. L’ancienne étable de 1826 conserve sa silhouette familière aux côtés de la maison d’habitation du XVIIe siècle, tout en acquérant une nouvelle signification. La construction historique en bois s’étend comme une enveloppe protectrice sur un corps de bâtiment assemblé avec précision. Il en résulte un dialogue subtil entre une tradition architecturale ancestrale et un mode de vie moderne – ancré dans le lieu et tourné vers l’avenir. L’ancien bâtiment en bois, soigneusement préservé, en constitue la base. Il est complété par des éléments modernes en béton teinté foncé, de généreuses surfaces vitrées et du bois de mélèze traité. Cette combinaison de matériaux assure une alliance élégante entre tradition et architecture moderne. Des détails surprenants et audacieux, tels que les fenêtres dissimulées derrière les anciennes poutres de l'étable, soulignent le haut niveau architectural du projet. L'un des plus grands défis a consisté à soulever l'étable historique d'un seul tenant, sans endommager son enveloppe. Des interventions ciblées n'ont été effectuées qu'aux endroits où le nouveau corps en béton a été inséré – une étape exigeante qui a imposé des exigences maximales en matière de planification et d'exécution. Avec une surface habitable d'environ 280 mètres carrés, la propriété offre un espace généreux : une cuisine ouverte avec îlot central, une grande cheminée servant de foyer, trois chambres avec salles de bains attenantes, un espace bien-être de 90 mètres carrés comprenant un hammam et une salle de fitness, ainsi qu'un bar équipé d'un billard, d'un jeu de fléchettes, d'une salle de cinéma et d'une cave à vin séparée. Le projet est complété de manière durable par une installation photovoltaïque performante couvrant l'ensemble du toit, d'une puissance maximale de 45 kW, qui couvre une part importante des besoins énergétiques. 

Vision et concept
Le projet «Casa sogn Martin» s'inscrit dans une approche architecturale claire. La structure existante, surélevée, conserve son enveloppe traditionnelle, tandis qu'une nouvelle construction discrète s'y intègre. Des transitions subtiles entre les matériaux tissent un dialogue naturel entre l'ancien et le nouveau. La substance historique porte la mémoire du lieu, tandis que les éléments contemporains y ajoutent de nouvelles couches – ensemble, ils forment un tout harmonieux et évocateur.

Le projet de Hofmann & Durisch a été présenté dans le cadre du Swiss Arc Award 2026 et publié par Nina Farhumand. 

221780115