Complexe scolaire de Borrweg

 
8055 Zürich,
Suisse

Publié le 15 avril 2026
WALDRAP AG
Participation au Swiss Arc Award 2026

Données du projet

Données de base

Situation de l'objet
Borrweg 81, 8055 Zürich, Suisse
Catégorie de projet
Achèvement
07.2025

Données du bâtiment selon SIA 416

Étages
de 3 à 5 étages
Nombre de sous-sols
2 étage
Surface de terrain
33'816 m²
Surface de plancher
11'921 m²
Surface utile
6645 m²
Volume bâti
56'350 m³
Coûts de construction (BKP 2)
50,0 mio. CHF
Places de parking
19
Nombre d'élèves
400

Description

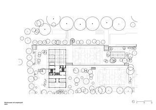
Implanté directement le long du Borrweg, le bâtiment de remplacement du complexe scolaire compose, avec l’école existante Friesenberg, un vaste espace extérieur différencié. L’implantation du volume perpendiculairement à la pente répond avec précision aux conditions topographiques et climatiques du site: elle garantit le flux d’air froid descendant de l’Uetliberg vers le quartier et apporte ainsi une contribution essentielle à un climat urbain équilibré. En même temps, l’emprise compacte au sol permet de préserver au maximum le paysage en terrasses, créant ainsi de précieux espaces libres pour l’école et le quartier. La mise en terrasses du terrain reprend la topographie existante et structure les espaces extérieurs en différentes qualités d’usage. Celles-ci vont des terrains praticables par tous les temps aux zones de séjour, jusqu’aux surfaces extérieures à usage collectif. Le complexe scolaire se conçoit délibérément comme un lieu ouvert: en dehors de l’activité scolaire, les salles de sport, l’installation de natation et les salles polyvalentes sont également mises à disposition des habitant*es du quartier, renforçant ainsi l’ancrage social de l’ensemble.

Architecture et paysage forment une unité indissociable. La gradation volumétrique des bâtiments suit la pente et réduit les déblais dans le terrain difficile constitué d’argile de l’Uetliberg grâce à l’intégration partielle des salles de sport et de natation dans le sol. Il en résulte simultanément des terrasses spatialement marquantes, qui inscrivent l’ensemble dans le paysage et permettent une organisation claire des usages. Les grands volumes sportifs sont volontairement disposés à côté du bâtiment scolaire de cinq niveaux, ce qui favorise une structure porteuse simple et économique. Le langage architectural est marqué par la légèreté et la précision. La façade en profils d’aluminium avec des éléments de brise-soleil périphériques associe clarté constructive et performance fonctionnelle. La protection solaire passive assure un climat intérieur agréable tout en réduisant les besoins énergétiques. Le jeu d’ombre et de lumière crée une subtile profondeur qui confère à la façade une forte présence malgré sa retenue.

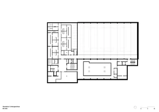
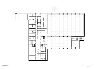
À l’intérieur, le bâtiment s’organise comme un espace d’apprentissage et de vie clairement structuré, tout en restant ouvert. Les étages d’enseignement sont répartis en clusters regroupant chacun plusieurs salles de classe, salles de groupe et espaces de séjour autour d’une généreuse zone centrale. Ces zones centrales fonctionnent comme des espaces de communication où se rencontrent échanges, apprentissage informel et séjour. La structure spatiale soutient ainsi des concepts pédagogiques contemporains liés à l’école à journée continue. Un élément essentiel de cette flexibilité réside dans les séparations variables des espaces. Des parois pliantes coulissantes permettent d’ouvrir ou de fermer les pièces selon les besoins: le matin apparaissent des espaces ouverts et fluides dédiés à l’accueil et au séjour, tandis que l’après-midi peuvent être utilisés des salles de classe et des espaces de groupe clairement définis. Des matériaux translucides tels que le verre profilé assurent un éclairage naturel des zones centrales tout en créant des liens visuels à l’intérieur du bâtiment.

Le rez-de-chaussée constitue le cœur collectif de l’ensemble. On y trouve la mensa, la salle polyvalente et les principales zones de rencontre. Les espaces sont polyvalents et peuvent être utilisés aussi bien pour l’école que pour les manifestations du quartier. L’organisation permet une forte densité d’usage, notamment pour le fonctionnement de la mensa avec jusqu’à 700 repas par jour, sans compromettre la qualité spatiale. La matérialisation suit elle aussi une approche globale. Des matériaux robustes et durables tels que le béton apparent, le métal et les surfaces minérales marquent l’expression architecturale. Ils sont volontairement laissés apparents et directement perceptibles. Dans les étages supérieurs, la combinaison de la structure en béton, de surfaces claires et d’accents colorés ciblés crée un environnement d’apprentissage calme et baigné de lumière. Dans les niveaux inférieurs, des accents chromatiques plus soutenus servent de repères et répondent aux exigences spécifiques des usages sportifs et aquatiques.

La situation surélevée du site, avec vue sur la ville, le lac de Zurich et jusqu’au massif du Tödi, ainsi que la proximité immédiate de la forêt de l’Uetliberg, confèrent au lieu une qualité atmosphérique particulière. Cette insertion paysagère n’est pas seulement respectée par le projet, elle est activement renforcée. Les espaces intérieurs et extérieurs sont reliés visuellement et fonctionnellement, permettant de multiples relations avec l’environnement. Dans son ensemble, le bâtiment de remplacement du complexe scolaire Borrweg donne naissance à une architecture éducative tournée vers l’avenir, qui réunit en un tout cohérent des dimensions écologiques, sociales et architecturales. La clarté de l’implantation urbaine, la flexibilité de la structure spatiale et le soin apporté à la matérialisation constituent la base d’un lieu d’apprentissage vivant, assumant au-delà de l’usage scolaire un rôle identitaire pour le quartier.

L’objectif était de concevoir une façade durablement efficace, nécessitant peu d’entretien et adaptée au climat, garantissant à la fois la relation visuelle vers l’extérieur, le confort thermique et l’efficacité énergétique. En lieu et place de stores extérieurs conventionnels, un système de brise-soleil en porte-à-faux de 2,5 mètres, composé de caillebotis différenciés, a été développé. Il réagit aux différentes positions du soleil ainsi qu’aux conditions topographiques au pied de l’Uetliberg. Les façades ont été vérifiées au moyen d’analyses de l’ensoleillement et du vent ainsi que de simulations thermiques dynamiques réalisées sur une base annuelle. La combinaison d’un brise-soleil fixe et d’une protection contre l’éblouissement intérieure automatisée réduit d’environ 22 pour cent les besoins énergétiques annuels pour le chauffage et le refroidissement par rapport à une façade standard équipée d’une protection solaire extérieure. Parallèlement, la qualité de la lumière naturelle est préservée et la vue vers l’extérieur des utilisateur*rices n’est pas restreinte.

Le projet de WALDRAP a été soumis dans le cadre du Swiss Arc Award 2026 et publié par Nina Farhumand.

224465920