Ensemble de logements Grenzacherstrasse

 
4058 Basel,
Suisse

Publié le 31 mars 2026
Ackermann Architekt BSA SIA AG
Participation au Swiss Arc Award 2026

Données du projet

Données de base

Situation de l'objet
Grenzacherstrasse 487, 4058 Basel, Suisse
Catégorie de projet
Type de bâtiment
Achèvement
03.2026

Données du bâtiment selon SIA 416

Étages
de 3 à 5 étages
Nombre de sous-sols
2 étage
Nombre d'appartements
53
Surface de terrain
4314 m²
Surface de plancher
8593 m²
Surface utile
6261 m²
Volume bâti
33'912 m³

Description

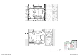
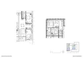
Le bâtiment situé Grenzacherstrasse 487 à Bâle a été construit en 1969/70 par Hoffmann-La Roche AG en tant qu’institut de recherche en immunologie. Le nouveau cycle d’utilisation est prévu pour une durée de 30 ans. La transformation et la surélévation du bâtiment ont permis de créer 53 logements.  La nouvelle offre de logements se distingue des logements familiaux environnants. Étant donné que les immeubles collectifs et les maisons individuelles voisins proposent exclusivement des logements pour familles, l’introduction de logements de plus petite taille apparaît ici comme un complément pertinent. Les deux cours intérieures constituent un système de circulations riche en relations. Associées aux terrasses en toiture et à d’autres équipements communs, elles forment un réseau de points d’ancrage sociaux. L’offre de logements laisse présager une population d’habitants plurielle, renforçant ainsi le concept de diversité. Les qualités spécifiques des logements résultent de la superposition du programme avec la structure bâtie existante. Les espaces en double hauteur offrent un luxe spatial et permettent d’éclairer efficacement même des plans très profonds. La construction en bois propose, en complément, des espaces de faible profondeur disposés le long de la façade. De nombreux logements sont directement desservis depuis les deux cours intérieures. Les grandes hauteurs sous plafond permettent, malgré une densité élevée, de proposer des espaces d’habitation généreux. Le bâtiment existant se compose de deux niveaux de sous-sol en béton armé et de volumes en superstructure d’un ou trois niveaux, réalisés en ossature métallique. Les surélévations ont été réalisées en construction à éléments en bois. L’expression du bâtiment est marquée par la superposition et l’interaction de deux strates temporelles. La façade existante est constituée de panneaux en aluminium assemblés avec précision pour former une peau fine. Les nouveaux éléments sont revêtus d’un bardage en bois, qui caractérise l’apparence des surélévations ainsi que des façades complétées au rez-de-chaussée. 

Le projet de Ackermann Architekt a été soumis dans le cadre du Swiss Arc Award 2026 et publié par Nina Farhumand.

222242684