Wohncluster Grenzacherstrasse

 
4058 Basel,
Schweiz

Veröffentlicht am 31. März 2026
Ackermann Architekt BSA SIA AG
Teilnahme am Swiss Arc Award 2026

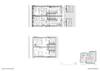
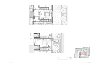
Innenhof Ost Wohnung im Bestandsgebäude Wohnung im Bestandsgebäude Wohnung im Bestandsgebäude Bestandsgebäude Aufstockung West Wohnung in der Aufstockung Wohnung in der Aufstockung Eröffnung Institute for Immunology

Projektdaten

Basisdaten

Lage des Objektes
Grenzacherstrasse 487, 4058 Basel, Schweiz
Projektkategorie
Gebäudeart
Fertigstellung
03.2026
Links

Gebäudedaten nach SIA 416

Stockwerke
3 bis 5
Anzahl Kellergeschosse
2
Anzahl Wohnungen
53
Grundstücksfläche
4314 m²
Geschossfläche
8593 m²
Nutzfläche
6261 m²
Gebäudevolumen
33'912 m³

Beschreibung

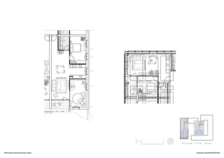
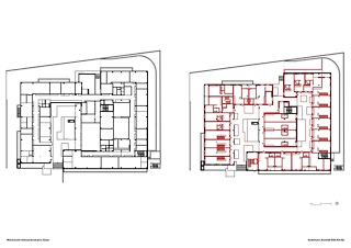
Das Gebäude an der Grenzacherstrasse 487 in Basel wurde 1969/70 durch die Hoffmann La Roche AG als Immunologisches Forschungsinstitut erstellt. Der neue Nutzungszyklus ist auf 30 Jahre angelegt. Durch den Umbau und die Aufstockung des Gebäudes sind 53 Wohnungen entstanden.  Das neue Wohnungsangebot hebt sich von den Familienwohnungen in der Umgebung ab. Da die benachbarten Mehr- und Einfamilienhäuser ausschliesslich Wohnraum für Familien anbieten, bietet sich eine Ergänzung mit kleineren Wohnungen an diesem Ort an. Die beiden Innenhöfe bieten ein System beziehungsreicher Erschliessungen. Zusammen mit den Dachterrassen und weiteren gemeinschaftlichen Angeboten entsteht ein Netz von sozialen Anknüpfungspunkten. Das Wohnungsangebot lässt eine plurale Bewohnerschaft erwarten, was das Konzept der Vielfalt weiter unterstützt. Die spezifischen Qualitäten der Wohnungen entstehen aus der Überlagerung des Programms mit der vorgefundenen Baustruktur. Die überhohen Räume bieten einen räumlichen Luxus und erlauben es, auch sehr tiefe Grundrisse gut zu belichten. Der Holzbau bietet als Ergänzung wenig tiefe Räume an, die längs der Fassade liegen. Viele der Wohnungen werden direkt von den beiden Innenhöfen erschlossen. Die grossen Raumhöhen ermöglichen trotz hoher Dichte grosszügig angelegten Wohnraum. Das bestehende Gebäude besteht aus zwei Untergeschossen aus Stahlbeton und ein- beziehungsweise dreigeschossigen Aufbauten, die als Stahlskelettbauten ausgeführt sind. Die ergänzenden Aufstockungen wurden in Holzelementbauweise ausgeführt. Der Ausdruck des Gebäudes ist von den beiden Zeitspuren geprägt, die sich überlagern und ergänzen. Die bestehende Fassade ist aus präzisen Aluminiumpaneelen zu einer dünnen Haut zusammengefügt. Die neuen Bauteile sind mit einer Holzschalung verkleidet, welche die Erscheinung der Aufstockungen und der ergänzten Fassaden im Erdgeschoss prägt.

Das Projekt von Ackermann Architekt wurde im Rahmen des Swiss Arc Award 2026 eingereicht und von Nina Farhumand publiziert.

222256130