Jura Trioligie: Concevoir le changement – Architecture, temps et transformation

15 von 3778

 
Suisse

Publié le 18 juillet 2025
ETH Zürich Professur für Architektur und Entwurf
Participation au Swiss Arc Award 2025

Jura Résistante, Intérieur avec des murs constitués de grands blocs de grès de Bollinger précontraints, Lara Biesser + Theodor Domanski Jura Résistante, Grès de Bollinger, Lara Biesser + Theodor Domanski Jura Résistante, Maquette de façade, Lara Biesser + Theodor Domanski Jura Circulaire, Image intérieure – Enfilade, Nathalie Bettoni + Bastien Terrettaz Jura Circulaire, Nathalie Bettoni + Bastien Terrettaz Jura Circulaire, Vue extérieure, Nathalie Bettoni + Bastien Terrettaz Jura Tendue,  Vue intérieure, Eva Meier + Danny Sahan + Maurus Wirth Jura Tendue, Carte des risques, Eva Meier + Danny Sahan + Maurus Wirth Jura Tendue, Vue extérieure, Eva Meier + Danny Sahan + Maurus Wirth

Données du projet

Données de base

Projekttyp
Conception de studio / groupe de recherche
Catégorie de projet
Type de bâtiment
Achèvement
05.2025

Description

De nombreux·ses étudiant·e·s ont participé au studio de projet organisé dans le cadre des modules semestre de printemps 24, semestre d’automne 24 et semestre de printemps 25 au Département d’architecture de l’ETH Zurich. Encadré·e·s par la professeure Dr. Elli Mosayebi ainsi que par les enseignant·e·s Nelly Pitt et Matthew Phillips, les étudiant·e·s suivant·e·s ont contribué au projet: Remo Ackermann, Alina Ampilogova, Levin Arnold, Julius Baumanns, Laura Berther, Lara Biesser, Gabrielle Chilinski, Bianca Disch, Theodor Domanski, Nikola Endres, Manuela Foscardi, Andreas Hasler, Laura Imperiali, Vinzenz Leuppi, Hibiki Masaki, Summer Mathis, Robyn Murbach, Kim Stella Müller, Charlotte Neyenhuys, Markus Nyfeler, Alessandro Paterniti Barbino, Carla Ringenbach, Paula Schaufelbühl, Jamila Scotoni, Martin Serpell Covarrubias, Dag von der Decken, Calvin Wanzenried, Flavio Thommen, Silvian Ursula, Florian Hofmann, Charlotte Arn, Chloe Szwarc, Lukas Burger, Gian Brechbühl, Jonas Pfeffer, Luis Steffens, Joel Heller, Louis Forestier, Daniel Fölsch, Mona Lecoutre, Vitus Michel, Benjamin Wahlström, Eloise Frey, Felix Affolter, Danny Sahan, Maurus Wirth, Eva Meier, Nico Gewecke, Arthur Helmecke, Antoine Liechti, Tom Bauer, Lou Dörig, Nemo Akkermann, Rose Schuller, Leon Schade, Jonas Müller, Thierry Dvoracek, Cristina Wiele, Todor Rusev, Ulisse Iacopi, Sara Madej, Franziska Gödtcke, Felix Eigenmann, Giacomo Sarra, Nicole Alder, Rosa Ammann, Mélanie Bauer, Nathalie Bettoni, Eduardo Cavalcanti Schifferle, Yannick Fortiguarra, Melanie Kofler, León Madörin, Samuel Meury, Nikola Nikolov, Hannes Pabst, Luca Peter, Shirley Rellstab, Gilles Reust, Alexandros Sarantaenas, Jakob Schaefermayer, Luana Stadtmann, Cara Steiner, Bastien Terrettaz, Anton von Holst, Joao Vilela Rodrigues, Leon Weissheimer, Eleni Werder, Roman Winteler et Nicolás Wittig.

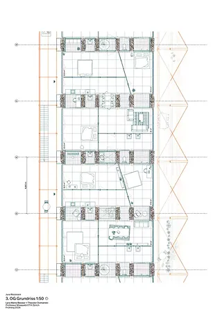
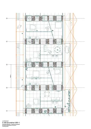
Durant le semestre Jura Résistant (printemps 2024), l’accent était mis sur les constructions pérennes en pierre naturelle porteuse. À Bienne, il s’agissait de concevoir des formes d’habitat durables, adaptables et ouvertes à divers usages. Les projets devaient résister aux transformations du temps et perdurer sur plusieurs générations. La pierre naturelle a été réévaluée comme matériau de construction à la fois écologique, économique et encore peu exploité.

Le semestre Jura Circulaire (automne 2024) s’est consacré, à Delémont, à la construction circulaire en acier. Le réemploi de structures métalliques existantes et le développement de bâtiments d’habitation démontables et flexibles, capables de s’adapter à l’évolution des besoins, étaient au cœur des recherches. En plus des cycles de matériaux, les cycles paysagers et saisonniers ont également été pris en compte.

Au semestre Jura Tendu (printemps 2025), les étudiantes et étudiants ont exploré les dangers naturels, les risques et le stress dans le paysage jurassien. Il s’agissait de concevoir des structures temporaires et résilientes, capables de répondre à des phénomènes tels que crues, incendies, tempêtes ou glissements de terrain. Les projets abordaient les extrêmes climatiques non seulement comme une contrainte, mais aussi comme un moteur du projet, intégrant le «stress» comme principe de conception. 

En collaboration avec Jacqueline Pauli, professeure de conception structurelle, ETH Zurich, Guillaume Habert, professeur de construction durable, ETH Zurich, BUK, ETH Zurich, ainsi que Taiyo Onorato, artiste

Quels thèmes architecturaux ou urbanistiques étaient au cœur du programme de projet?
L’accent a été mis sur la dimension temporelle en architecture: le temps et la durée comme catégories conceptuelles. L’objectif était de développer des formes d’habitat capables de réagir aux évolutions matérielles, sociales et écologiques.

Quelles bases théoriques ou pratiques ont servi de fondement au travail de projet ou de recherche?
Chaque semestre a élaboré, à partir d’une compréhension temporelle – Permanent, Circulaire, Résistant – une approche architecturale spécifique: la durée comme expression de la pérennité, de la circularité ou de la temporalité. Les travaux s’appuyaient sur des notions issues de la théorie de la durabilité, de la recherche sur les matériaux (notamment la pierre naturelle, le démontage, la réversibilité), ainsi que sur des réflexions autour de la résilience sociale.

Quels défis spatiaux, constructifs ou programmatiques devaient être relevés?
Les étudiant·es étaient invité·es à concevoir des formes d’habitat robustes sur le plan spatial, ouvertes à des usages multiples et capables d’évoluer dans le temps – aussi bien sur le plan constructif (p. ex. pierre porteuse, construction circulaire) que programmatique (p. ex. usage intergénérationnel, structures temporaires).

Le projet de la ETH Zürich Professur für Architektur und Entwurf a été soumis dans le cadre du Swiss Arc Award 2025 dans la catégorie Next Generation et publié par Nina Farhumand.

195723369