Rénovation complète du tribunal de district de Zurich

 
8004 Zürich,
Suisse

Publié le 01 avril 2026
Fiechter & Salzmann Architekten GmbH

Données du projet

Données de base

Situation de l'objet
Wengistrasse 30, 8004 Zürich, Suisse
Type de bâtiment
Achèvement
02.2026
Liens

Données du bâtiment selon SIA 416

Étages
de 6 à 10 étages
Nombre de sous-sols
2 étage
Surface de terrain
1700 m²
Surface de plancher
11'000 m²
Surface utile
6000 m²
Volume bâti
38'000 m³
Coûts de construction (BKP 2)
45,0 mio. CHF
Nombre de postes de travail
170
Places de parking
64

Description

Préserver le passé, ouvrir la voie à l’avenir – un palais de justice en pleine mutation

Construit en 1989 au 30 de la Wengistrasse, ce bâtiment avait été initialement conçu comme une laiterie, puis comme un immeuble commercial et de bureaux pour la société informatique Honeywell-Bull. Sa conception architecturale ne correspondait donc pas au caractère d’un bâtiment public, tel que le dégage habituellement un tribunal. Le charme du bâtiment correspondait à une utilisation anonyme comme entrepôt, et l’accès au rez-de-chaussée surélevé était loin d’être accessible à tous.

Dans les années 1990, une première rénovation d’envergure a eu lieu : le nombre de salles d’audience est alors passé de trois à quatre, et l’entrée principale a été déplacée vers la Schreinerstrasse. Si le monte-escalier nouvellement installé a amélioré l’accessibilité, l’accessibilité aux personnes à mobilité réduite restait toutefois insuffisante. Les salles d’audience ont bénéficié pour la première fois de la lumière du jour, mais seulement de manière provisoire grâce à une nouvelle cour intérieure aux dimensions restreintes.

En 2018, une rénovation complète s'imposait enfin. Outre la rénovation énergétique, il fallait répondre aux besoins en espace qui avaient fortement augmenté. Notre cabinet d'architecture Fiechter & Salzmann a agrandi le bâtiment avec Fanzun jusqu'à la Schreinerstrasse, augmentant ainsi le volume et prolongeant le bâtiment jusqu'à l'alignement de la rue. Une superstructure de deux étages au niveau de l'attique accentue aujourd'hui l'angle et l'accès au tribunal.

Trois interventions architecturales majeures caractérisent le projet. La première est la nouvelle façade en béton fibré teinté en rouge. Elle est conçue comme une façade-rideau composée d’éléments d’environ trois mètres sur trois. Grâce à leur faible épaisseur, ces éléments en fibrociment sont économes en ressources; ils présentent un relief fin et un design sobre. Le motif des arcs suspendus reprend l'idée constructive des éléments de façade suspendus à la structure en béton. En même temps, grâce à son jeu subtil de lumière et d'ombre, il crée un lien avec les bâtiments adjacents soigneusement conçus de l'époque wilhelminienne et s'intègre ainsi dans le tissu urbain.

La deuxième mesure essentielle est la nouvelle entrée en béton rouge coulé sur place, surmontée d'un plafond à grille en bois d'épicéa. Non seulement il est accessible aux personnes à mobilité réduite, mais grâce à son emplacement sur la façade et à la lumière naturelle abondante, il dégage une atmosphère accueillante et conviviale. À la loge spacieuse et bien éclairée, les visiteurs peuvent obtenir des renseignements à tout moment. Ainsi, le caractère autrefois rebutant de ce rez-de-chaussée a pu être transformé en une nouvelle adresse digne d’un bâtiment public.

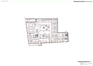
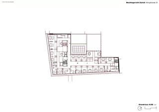
La troisième mesure concerne la nouvelle salle d’audience à deux étages avec son escalier courbé.

L'augmentation des besoins en espace, passant de quatre à douze salles d'audience, a nécessité une restructuration en profondeur du bâtiment. Il fallait créer une structure spatiale simple facilitant l'orientation. Nous avons entièrement repensé et réorganisé la structure du rez-de-chaussée, initialement conçue pour servir d'entrepôt. Le caractère autrefois rebutant et fermé – typique d’une utilisation comme entrepôt – a été ouvert sur l’espace urbain grâce à de grandes baies vitrées et à une loge accueillante au rez-de-chaussée.

Un nouvel atrium de deux étages constitue aujourd’hui le cœur du 30 Wengistrasse et dessert toutes les salles d’audience. Les nouvelles interventions dans l’espace public sont réalisées en béton local rouge et contrastent délibérément avec le gris du bâtiment existant. Le plafond à grille en bois d’épicéa confère au hall un caractère chaleureux et agréable. Derrière celui-ci sont intégrées les installations techniques nécessaires au fonctionnement moderne du bâtiment. L’accès est désormais sans obstacle grâce à des rampes à l’intérieur et à l’extérieur du bâtiment. La loge, lieu d’accueil, se présente comme un espace ouvert et accueillant. Toutes les salles d’audience sont désormais situées le long de la façade, bénéficient d’une lumière naturelle abondante et reflètent le caractère transparent d’une institution publique.

Malgré cette transformation en profondeur, nous avons tenu à laisser délibérément visibles les traces de l'édifice existant. Les anciens plafonds et piliers en béton brossé restent visibles. Ils rappellent l'histoire de cette maison et symbolisent en même temps une approche durable de la rénovation, qui privilégie la réparation, le développement et la transformation plutôt que la construction neuve.

Le projet a été présenté par le cabinet d'architectes Fiechter & Salzmann et publié par Jeannine Bürgi.

222363916