Gesamtinstandsetzung Bezirksgericht Zürich

 
8004 Zürich,
Schweiz

Veröffentlicht am 01. April 2026
Fiechter & Salzmann Architekten GmbH

Schreinerstrasse Schreinerstrasse Bezirksgericht Bezirksgericht Bezirksgericht Bezirksgericht Gerichtshalle öffentliches Treppenhaus Blick in Halle Foyer Bürokorridor Wendeltreppe Eingang Eingang mit Passerelle Schreinerstrasse

Projektdaten

Basisdaten

Lage des Objektes
Wengistrasse 30, 8004 Zürich, Schweiz
Gebäudeart
Fertigstellung
02.2026
Links

Gebäudedaten nach SIA 416

Stockwerke
6 bis 10
Anzahl Kellergeschosse
2
Grundstücksfläche
1700 m²
Geschossfläche
11'000 m²
Nutzfläche
6000 m²
Gebäudevolumen
38'000 m³
Gebäudekosten (BKP 2)
45,0 Mio. CHF
Anzahl Arbeitsplätze
170
Parkplätze
64

Beschreibung

Spuren bewahren, Zukunft ermöglichen – ein Gerichtsgebäude im Wandel

Das 1989 errichtete Gebäude an der  Wengistrasse 30 wurde ursprünglich als Molkerei, dann als Gewerbe- und Bürohaus für die Computerfirma Honeywell-Bull konzipiert.  Die architektonische Gestaltung entsprach darum nicht dem Charakter eines öffentlichen Gebäudes, wie ihn üblicherweise ein Gericht ausstrahlt. Der Charme des Hauses entsprach einer anonymen Lagernutzung, der Zugang zum Hochparterre war weit entfernt von barriererefrei.

In den 1990er-Jahren erfolgte ein erster grösserer Umbau: Die Zahl der Gerichtssäle stieg damals von drei auf vier, und der Haupteingang wurde an die Schreinerstrasse verlegt. Der neu eingebaute Treppenlift verbesserte die Zugänglichkeit zwar, die Barrierefreiheit blieb jedoch weiterhin unzureichend. Die Gerichtssäle erhielten erstmals Tageslicht, allerdings nur in einer provisorischen Form über einen neuen knapp dimensionierten Lichthof.

2018 stand schliesslich eine umfassende Erneuerung an. Neben der energetischen Sanierung galt es, den stark gewachsenen Raumbedarf zu decken. Unser Architekturbüro Fiechter & Salzmann erweiterten das Gebäude mit Fanzun bis zur Schreinerstrasse und erhöhten damit das Volumen und ergänzten das Gebäude bis zur Strassenflucht. Ein zweigeschossiger Aufbau im Attikabereich akzentuiert heute die Ecke und den Zugang zum Gericht.

Drei architektonische Hauptmassnahmen prägen den Entwurf. Der erste ist die neue Fassade aus einem rot eingefärbte Faserbeton. Sie ist als Vorhangsfassade aus rund drei mal drei Metern grossen Elementen konzipiert. Die Faserzementelemente sind mit ihrer geringen Materialstärke ressourcenschonend, fein reliefiert und zurückhaltend gestaltet. Das Motiv der hängenden Bögen greift den konstruktiven Gedanken der an der Betonstruktur aufgehängten Fassadenelemente auf. Gleichzeitig schafft sie mit ihrem feinen Licht- und Schattenspiel eine Verbindung zu den angrenzenden sorgfältig gestalteten Bauten aus der Gründerzeit und somit integrierend im Stadtkörper.

Die zweite wesentliche Massnahem ist der neue Eingang aus rotem Ortsbeton und mit einer Fichtenholzrasterdecke. Er ist  nicht nur barrierefrei erreichbar, dank seiner Lage an der Fassade mit viel Tageslicht wirkt er einladend und freundlich. An der grosszügig verlasten Loge erhalten die Besuchenden jederzeit Auskunft. So konnte dem vormals abweisenden Charakter dieses Erdgeschosses eine neue dem öffentlichen Gebäude angemessene Adresse gegeben werden.

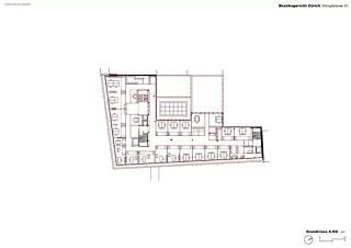
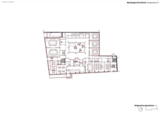
Die dritte Massnahme ist die neue zweigeschossige Gerichtshalle mit der geschwungenen Treppe.

Der von vier auf nun zwölf Gerichtsäle angestiegene Raumbedarf erforderte eine grundlegende Umstrukturierung des Gebäudes. Es musste eine einfache Raumstruktur zur Orientierung geschaffen werden. Die Erdgeschossstruktur, die ursprünglich für eine Lagernutzung konzipiert war, haben wir grundsätzlich überarbeitet und neu organisiert. Der vormals abweisende und geschlossene Charakter – typisch für die Lagernutzung – wurde durch grosszügige Fensterflächen und einer einladenden Loge im Erdgeschoss zum Stadtraum hin geöffnet.

Ein neuer zweigeschossiger Lichthof bildet heute das Herzstück der Wengistrasse 30 und erschliesst sämtliche Gerichtsäle. Neue Eingriffe im öffentlichen Bereich sind in rotem Ortsbeton ausgeführt und kontrastieren bewusst den grauen Bestand. Die Fichtenholz-Rasterdecke gibt der Halle einen angenehmen warmen Charakter. Dahinter sind die für den zeitgemässen Betrieb notwendigen haustechnischen Installationen integriert. Der Zugang erfolgte heute barrierefrei über Rampen im Gebäudeinnern und im Aussenraum. Die Loge als Ankunftsort wirkt offen und einladend. Sämtliche Gerichtssäle liegen neu an der Fassade, erhalten grosszügig Tageslicht und vermitteln den transparenten Charakter einer öffentlichen Institution.

Trotz der tiefgreifenden Transformation war es uns wichtig, die Spuren des Bestandes bewusst sichtbar zu belassen. Alte Decken und Stützen aus gestocktem Beton sind weiterhin ablesbar. Sie erinnern an die Geschichte dieses Hauses und stehen zugleich für ein nachhaltiges Weiterbauen, das repariert, weiterentwickelt und transformiert bevor neu gebaut wird.

Das Projekt wurde von Fiechter & Salzmann Architekten eingereicht und von Jeannine Bürgi publiziert.

222359493