Seerestaurant Uster

 
8610 Uster,
Schweiz

Veröffentlicht am 20. März 2026
Fiechter & Salzmann Architekten GmbH
Teilnahme am Swiss Arc Award 2026

Seerestaurant Dachuntersicht Innenraum Stützenfuss Stütze und Terrasse Seeseite Innenraum Aussenbild

Projektdaten

Basisdaten

Lage des Objektes
Uferweg 3, 8610 Uster, Schweiz
Fertigstellung
12.2025
Links

Gebäudedaten nach SIA 416

Stockwerke
1
Grundstücksfläche
786 m²
Geschossfläche
276 m²
Nutzfläche
208 m²
Gebäudevolumen
2303 m³
Gebäudekosten (BKP 2)
3,4 Mio. CHF

Beschreibung

Restaurant Schifflände – ein Pavillon als öffentlicher Ort
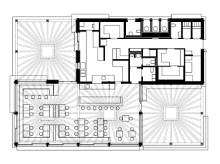
Direkt an der Schifflände am Greifensee in Uster liegt ein eingeschossiger Pavillonbau mit sechs markanten Dächern. Mit seinen umlaufend auskragenden Dachflächen wendet sich das Gebäude gleichermassen dem See wie der nördlich gelegenen Bushaltestelle zu und wird so zum verbindenden Ort zwischen Landschaft, Infrastruktur und öffentlichem Leben. Das Volumen gliedert sich in sechs gleich grosse, quadratische Einheiten, jede mit einem eigenen Dach. Die Dachkonstruktionen mit Oblichtern bleiben als Zelttragwerk in der Mitte frei und übernehmen unterschiedliche Aufgaben. Im Restaurant prägen zwei Dächer das Raumgefühl, während im Aussenraum einzelne Dachmodule gezielt Schutz vor Wetter und Sonne bieten. Über der Küche wird der Dachraum für haustechnische Anlagen genutzt. Das grosszügig verglaste Restaurant öffnet unter dem Dachraum freie Blicke auf Uferlandschaft und See. Wie bei einem Regenschirm ordnen sich die Sparren radial um das Oblicht – dunkel lasierte Fichte, mit Schilf gefüllt, verleiht der Konstruktion Wärme und Tiefe Zwei gedeckte Aussenräume, als eigenständige Dachformen ausgebildet, schützen die Gäste am See vor Sonne und beim Kiosk vor Regen. Entlang der Fassade, unter den offenen Dachflächen, sind Sitzbänke angeordnet – wie man sie von Tramhaltestellen in der Stadt kennt. Sie laden Besucherinnen und Besucher zum kurzen Verweilen ein und machen den Pavillon zu einem öffentlichen Treffpunkt. Das Seerestaurant am südlichen Rand von Uster schafft einen identitätsstiftenden Ort im Naherholungsgebiet: offen, zugänglich und fest im Alltag der Bevölkerung verankert.

Der Pavillon ist als nachhaltiger Holzbau konzipiert und erfüllt den Minergie-P-ECO-Standard. Aufgrund des hohen Grundwasserspiegels und der Lage im Gewässerschutzbereich wurde bewusst auf ein Untergeschoss verzichtet. Sämtliche haustechnischen Anlagen sind kompakt im Dach integriert. Das Gebäude verfügt über ein Schindeldach sowie eine Deckenbekleidung aus Schilf, die zur warmen Atmosphäre beiträgt. Seine Lage direkt am See, eingebettet in ein Naturschutzgebiet und mehrere Schutzzonen, stellt besondere Anforderungen an Planung und Ausführung.

Das Projekt von Fiechter & Salzmann Architekten wurde im Rahmen des Swiss Arc Award 2026 eingereicht und von Nina Farhumand publiziert.

Gewässerschutzzone, kein Untergeschoss, Haustechnik im Dach

220221623