CoDeck – Réaffectation de la Hochbergerstrasse 158

 
4058 Basel,
Suisse

Publié le 15 avril 2026
Kooperative E45 GmbH
Participation au Swiss Arc Award 2026

Données du projet

Données de base

Situation de l'objet
Hochbergerstrasse 158, 4058 Basel, Suisse
Catégorie de projet
Type de bâtiment
Achèvement
09.2025

Données du bâtiment selon SIA 416

Étages
de 3 à 5 étages
Nombre de sous-sols
plus de 2 sous-sols
Nombre d'appartements
28
Surface de terrain
1057 m²
Surface de plancher
4653 m²
Surface utile
3343 m²
Volume bâti
14'194 m³
Nombre de postes de travail
8

Description

Contexte
En 2019, le canton de Bâle-Ville a lancé un concours pour la transformation de l'ancien immeuble de bureaux de l'Office de l'environnement et de l'énergie. L'objectif était de reconvertir ce bâtiment, construit en 1965, en un immeuble à usage mixte (logements et commerces). Le site se situe entre le centre du village de Kleinhüningen et la zone portuaire, au bord de la rivière Wiese. 
Sous le nom de «CoDeck», 28 appartements au total ont vu le jour dans le cadre du programme cantonal de construction de logements 1000+.  Ils sont complétés par des espaces communs et environ 700 mètres carrés de surfaces commerciales, utilisés par l’association tonRaum. Celle-ci organise la vie communautaire et loue des salles de répétition et des espaces de travail à des musiciens.

Mission et objectifs du projet
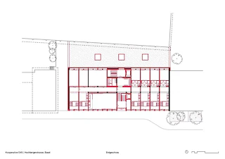
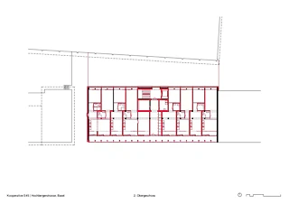
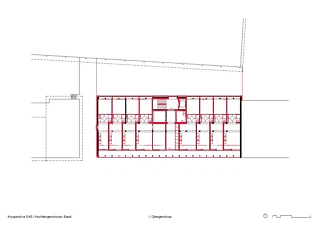
La reconversion visait à transformer le bâtiment existant en un immeuble résidentiel durable et socialement mixte, comprenant des appartements compacts, des espaces communs et un large éventail de salles de musique. L'une des principales préoccupations était d'utiliser judicieusement les sous-sols, anciennement utilisés comme archives, tout en évitant les conflits liés au bruit entre les activités résidentielles et musicales. La diversité des typologies d’appartements, les espaces communs et une forte intégration dans le contexte urbain devaient permettre de créer un immeuble coopératif et vivant.

Projet
Le nouveau concept d'aménagement exploite au mieux le bâtiment existant: les grandes salles de répétition situées au premier sous-sol ont été dotées d'un éclairage naturel grâce à des aménagements ciblés; leur éloignement par rapport aux appartements fait office de barrière acoustique. Les zones d'archives non éclairées du deuxième sous-sol servent de salles de répétition. Les appartements compacts sont optimisés en termes d'espace; le concept de salles de bains escamotables au rez-de-chaussée et au premier étage permet un éclairage naturel sur toute la profondeur du bâtiment.
La réutilisation du bâtiment existant a permis de réduire considérablement les émissions de gaz à effet de serre par rapport à une nouvelle construction. Les rénovations n’ont été effectuées que là où elles étaient nécessaires. Conçu délibérément comme un bâtiment «low-tech», l’immeuble dispose d’une installation photovoltaïque dont l’électricité est mise à la disposition des locataires à un prix avantageux. Des matériaux durables et écologiques, des toitures végétalisées et des surfaces extérieures non imperméabilisées complètent ce concept durable.
La diversité des typologies d’appartements favorise des modes de vie variés ainsi que la vie et le travail en communauté. La salle commune et la terrasse sur le toit sont ouvertes aux locataires et aux musiciens et favorisent les échanges. Avec l’organisation de la communauté des habitants, elles constituent la base d’un immeuble vivant et coopératif.
La nouvelle façade donnant sur la rue, avec ses arcades rappelant le pont d’un navire, s’intègre parfaitement à l’atmosphère du port. La structure en béton brut datant des années 1960 reste visible à l’intérieur et peut être appréciée comme un témoignage de l’époque. Avec du métal côté rue et du bois côté cour, le bâtiment jette un pont entre le port et le tissu urbain du village. De grandes baies coulissantes ouvrent les appartements vers le sud, sur la rivière Wiese, tandis que les terrasses sur le toit et en attique offrent une vue imprenable sur la ville et le port. Une structure légère en acier complète la construction en béton et confère au bâtiment une matérialité épurée et cohérente.

Le projet a été présenté par la Kooperative E45 pour le Swiss Arc Award 2026 et publié par Jørg Himmelreich.

217500864