CoDeck – Umnutzung Hochbergerstrasse 158

 
4058 Basel,
Schweiz

Veröffentlicht am 15. April 2026
Kooperative E45 GmbH
Teilnahme am Swiss Arc Award 2026

Südfassade Südfassade Blick von der Hochbergerstrasse Blick auf die Nordfassade mit der angrenzenden Lagerhalle Nordfassade Laubengang Eingang einer Wohnung im Regelgeschoss Wohnung im 1. OG, Blick nach Süden Klappbad im 1.OG Wohnung im Regelgeschoss, Blick nach Norden Atelierwohnung, Eingang von der Strasse Proberaum in der alten Autoeinstellhalle Gemeinschaftsraum im EG

Projektdaten

Basisdaten

Lage des Objektes
Hochbergerstrasse 158, 4058 Basel, Schweiz
Projektkategorie
Fertigstellung
09.2025
Links

Gebäudedaten nach SIA 416

Stockwerke
3 bis 5
Anzahl Kellergeschosse
mehr als 2
Anzahl Wohnungen
28
Grundstücksfläche
1057 m²
Geschossfläche
4653 m²
Nutzfläche
3343 m²
Gebäudevolumen
14'194 m³
Anzahl Arbeitsplätze
8

Beschreibung

Ausgangslage
Der Kanton Basel-Stadt schrieb 2019 einen Wettbewerb für den Umbau des ehemaligen Bürogebäudes des Amts für Umwelt und Energie aus. Ziel war die Umnutzung des 1965 errichteten Gebäudes in ein Wohn- und Gewerbehaus. Der Bau liegt zwischen dem Dorfkern von Kleinhüningen und dem Hafengebiet, direkt am Fluss Wiese. 
Unter dem Namen «CoDeck» sind insgesamt 28 Wohnungen im Rahmen des kantonalen Wohnbauprogramms 1000+ entstanden.  Ergänzt werden diese durch gemeinschaftliche Nutzungen und rund 700 Quadratmetern Gewerbeflächen, die vom Verein tonRaum genutzt werden. Er organisiert die Hausgemeinschaft und vermietet Probe- und Arbeitsräume an Musiker*innen.

Aufgabe und Projektziele
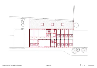
Die Umnutzung zielte auf die Transformation des Bestands in ein nachhaltiges, sozial durchmischtes Wohnhaus mit kompakten Wohnungen, gemeinschaftlichen Flächen und einem grossen Angebot an Musikräumen. Ein zentrales Anliegen war die sinnvolle Nutzung der früher als Archiv genutzten Untergeschosse bei gleichzeitiger Vermeidung von Lärmkonflikten zwischen Wohnen und Musizieren. Unterschiedliche Wohnungstypologien, gemeinschaftliche Räume und eine starke Einbindung in den städtischen Kontext sollten ein kooperatives und lebendiges Haus ermöglichen.

Projekt
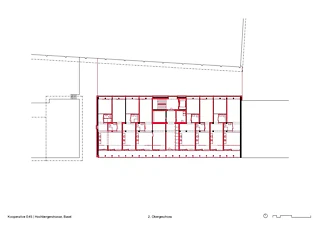
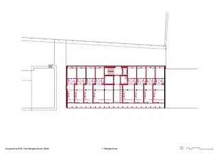
Das neue Raumkonzept nutzt den Bestand optimal aus: Die grossen Ensembleräume im 1. Untergeschoss wurden durch gezielte Eingriffe natürlich belichtet; ihr Abstand zu den Wohnungen wirkt als Lärmpuffer. Nicht belichtete Archivbereiche im 2. Untergeschoss dienen als Proberäume. Die kompakten Wohnungen sind flächenoptimiert, das Konzept der Klappbäder im Erdgeschoss und 1. Obergeschoss ermöglicht eine natürliche Belichtung über die gesamte Gebäudetiefe.
Durch die Weiternutzung des Bestands konnten im Vergleich zu einem Neubau erhebliche Treibhausgasemissionen eingespart werden. Erneuert wurde nur dort, wo es notwendig war. Das bewusst als Low-Tech-Gebäude konzipierte Haus verfügt über eine Photovoltaikanlage, deren Strom den Mietenden günstig zur Verfügung steht. Langlebige, ökologische Materialien, begrünte Dächer und entsiegelte Aussenflächen ergänzen das nachhaltige Konzept.
Unterschiedliche Wohnungstypologien unterstützen vielfältige Lebensentwürfe sowie gemeinschaftliches Wohnen und Arbeiten. Gemeinschaftsraum und Dachterrasse stehen Mieterschaft und Musizierenden offen und fördern den Austausch. Zusammen mit der Organisation der Hausgemeinschaft bilden sie die Basis für ein lebendiges, kooperatives Haus.
Die neue strassenseitige Fassade mit schiffsdeckähnlichen Laubengängen fügt sich in die Hafenatmosphäre ein. Die rohe Betonkonstruktion aus den 1960er-Jahren bleibt innen sichtbar und als Zeitzeuge erfahrbar. Mit Metall zur Strasse und Holz zum Hof schlägt das Gebäude eine Brücke zwischen Hafen und Dorfstruktur. Grosszügige Schiebefenster öffnen die Wohnungen nach Süden zum Fluss Wiese, während Dach- und Attikaterrassen weite Blicke auf Stadt und Hafen ermöglichen. Eine leichte Stahlkonstruktion ergänzt den Betonbau und verleiht dem Gebäude eine reduzierte, zusammenhängende Materialität.

Das Projekt wurde von der Kooperative E45 für den Swiss Arc Award 2026 eingereicht und von Jørg Himmelreich publiziert.

217501772