C-Arts-Ouches

 
1018 Lausanne,
Schweiz

Veröffentlicht am 01. April 2026
O. Rochat Architectes
Teilnahme am Swiss Arc Award 2026

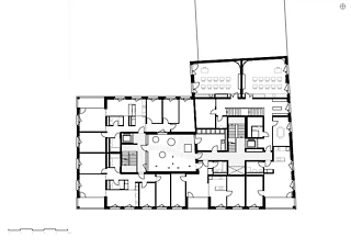
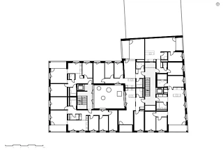
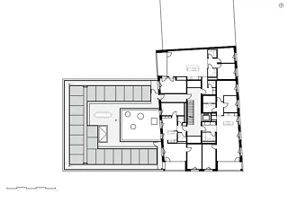
Südfassade Städtische und gemeinschaftliche Dachgärten Durchgang – überdachter Innenhof Zugang zu Wohnraum und Schule – Transparenz Treppenhaus – Beton mit Holzstruktur Wohnung – Innenraum Wohnung – Innenraum Mehrzweckhalle am Innenhof Klassenzimmer Klassenzimmer Klassenzimmer Vertikale Verteilung in der Schule Schulgarderoben Baustelle – Holzbau Baustelle – Holzbau

Projektdaten

Basisdaten

Lage des Objektes
Rue Elisa-Serment 2, 1018 Lausanne, Schweiz
Projektkategorie
Gebäudeart
Fertigstellung
12.2024
Links

Gebäudedaten nach SIA 416

Stockwerke
6 bis 10
Anzahl Kellergeschosse
1
Anzahl Wohnungen
35
Grundstücksfläche
1216 m²
Geschossfläche
5231 m²
Nutzfläche
3918 m²
Gebäudevolumen
20'167 m³
Gebäudekosten (BKP 2)
15,3 Mio. CHF
Anzahl Arbeitsplätze
12
Anzahl Schüler
50

Beschreibung

Erstes Projekt einer jungen Wohnbaugenossenschaft, entstanden aus dem Wunsch heraus, das Leben gemeinsam zu gestalten, sollte dieses Vorhaben von Anfang an offen und grosszügig sein. Es befindet sich im Ökoquartier Plaines-du-Loup in Lausanne. Indem neben den Bewohnerinnen und Bewohnern, den treibenden Kräften dieses Projekts, auch die Sonderschule Les Jordils für Kinder von 6 bis 16 Jahren mit besonderen Bedürfnissen einbezogen wurde, ebenso zwei Wohnungen für Studierende einer Pflegefachschule, ein gemeinsam genutzter Mehrzweckraum, eine Gästewohnung sowie verschiedene Räume für Begegnung, Austausch und gemeinschaftliche Aktivitäten und gemeinschaftliche Gärten, scheint alles für ein gelingendes Zusammenleben vereint zu sein. Der Entstehungsprozess eines Ökoquartiers dieser Grössenordnung birgt jedoch naturgemäss auch Überraschungen, und seine Geschichte ist reich an Ereignissen. Die ganze Schönheit dieses Abenteuers liegt in diesem Wunsch nach Teilen und Verbundenheit, dem Ergebnis der Stärke einer Gruppe, die es verstanden hat, Herausforderungen in Chancen zu verwandeln. Dieses Projekt versteht sich als Spiegel der Qualitäten seiner Genossenschafter und als Rahmen für ihr gemeinsames Glück.

Mit seinem Hof, seinem schwebenden Garten, der Vielfalt an Begegnungsorten, teils beinahe verborgen, und der inhaltlichen Dichte seines Programms ist es gelungen, eine urbane Form zu zähmen, die ursprünglich wenig wohngeeignet war und aus einem komplexen, projektfremden Planungsprozess hervorgegangen ist. Zwei Baukörper grosser Tiefe sind in einem nicht ganz orthogonalen Winkel zueinander angeordnet. Diese vorgegebene Form wurde gezielt modelliert, um eine Vielfalt an räumlichen Situationen zu ermöglichen, von denen das Programm letztlich profitiert. Ein grosszügiger, erhöhter Innenhof bringt Licht in die Tiefe der Wohnungen, schafft einen ruhigen Freiraum für die Waschküche und stellt eine zusätzliche Verbindung zwischen den beiden Treppenhäusern her. Im Erdgeschoss kreuzen sich zwei Achsen: eine offene Passage, die die Strasse mit dem Hof verbindet und zugleich als überdachter Pausenbereich der Schule dient, sowie eine zweite, dazu orthogonale Achse, die in einem Spiel von Transparenz die aufeinanderfolgenden Eingangsbereiche der Schule und der beiden Wohnhaustreppen erschliesst. So erhält die Schule ihre Eigenständigkeit mit direktem Zugang zu den Plaines-du-Loup, bleibt jedoch eng mit den gemeinschaftlichen Aussenräumen verbunden. Der Mehrzweckraum mit seiner Küche, die bepflanzten Flächen im Hof sowie die Passage als überdachter Aussenraum schaffen zahlreiche Synergien zwischen Wohnnutzung und Schule.

Das Spiel der Loggien, abwechselnd als vollflächige Öffnungen über die gesamte Geschosshöhe oder als eingeschnittene Öffnungen in den Gebäudeecken, strukturiert elegant die Fassaden und betont die ineinandergreifende Volumetrie der beiden Baukörper. Die leichte Abweichung von der Orthogonalität wird bewusst genutzt, um eine subtile Spannung in den Grundrissen zu erzeugen und so die Offenheit und Dynamik der Wohnräume hervorzuheben.

Mit den Labels Minergie-P und Minergie-ECO ausgezeichnet, wurde das achtgeschossige Gebäude (R+8) mit einem Holzkranz um einen Betonkern realisiert. Das Holz bringt seine Wärme in die Wohnbereiche ein, während der Beton seine Ausdruckskraft in den öffentlichen und gemeinschaftlichen Räumen entfaltet. Ein grosser Teil des Betons besteht aus rezyklierten Zuschlägen und wird je nach Situation differenziert eingesetzt: weich und eingefärbt in der Passage im Erdgeschoss, sandgestrahlt und eingefärbt im Sockelbereich sowie mit den Abdrücken der OSB-Schalungen in den Treppenhäusern.

Die Bauherrschaft ist eine junge Wohnbaugenossenschaft, die sich 2011 mit dem Ziel gegründet hat, an der Entwicklung eines Ökoquartiers in den Höhen von Lausanne, dem Quartier Plaines-du-Loup, mitzuwirken. Im Rahmen eines Investorenwettbewerbs gewann die Genossenschaft 2016 ein Grundstück von 5000 Quadratmeter dank eines inklusiven Programms, das gemeinsam mit einer Sonderschule und studentischem Wohnen entwickelt wurde. Ein intensiver partizipativer Prozess, begleitet vom Architekturbüro, ermöglichte es allen Beteiligten, ihre Erwartungen einzubringen und ein Programm sowie typologische Prinzipien zu entwickeln, die die Leitlinien des Projekts bestimmten. Die Genossenschaft strebte unter anderem eine ökologisch verantwortungsvolle Bauweise an. Trotz der Gebäudehöhe (R+8) entschied sie sich für eine Holzkonstruktion und für eine Zertifizierung nach Minergie-ECO zusätzlich zu den Grundanforderungen des Quartiers (Minergie-P, SméO-Äquivalent und 2000-Watt-Gesellschaft). Während der Bauphase stellte das Gebäude das grösste realisierte Holzvolumen im Kanton Waadt dar. Eine vertiefte technische Entwicklung ermöglichte Holz-Holz-Verbindungen ohne metallische Tragstruktur (mit Ausnahme einer einzigen Auskragung an der kritischen Schnittstelle zwischen den beiden Baukörpern). Der Planungsprozess des Quartiers erwies sich als komplex, und die daraus resultierende städtebauliche Form war für Wohnzwecke zunächst wenig geeignet, insbesondere durch die Durchdringung zweier sehr tiefer Baukörper. Die Herausforderung bestand darin, diese formale Komplexität in eine Chance zu verwandeln. Die Lösung lag in der Schaffung eines zentralen Patios, der Licht in das Herz der Gebäudestruktur bringt und gleichzeitig die Entwicklung einer Vielzahl von Wohnungstypologien ermöglicht, die den unterschiedlichen Bedürfnissen aus dem partizipativen Prozess gerecht werden. Eine Vielzahl innerer Wegeführungen durchzieht das Gebäude, geprägt von besonderen räumlichen Situationen: die zum Patio hin offene Waschküche, die Dachgärten auf dem niedrigeren Baukörper, der grosse Gemeinschaftsraum, der den kleinen Hof am Ausgang der offenen Passage belebt, und vieles mehr.

Das Projekt von O. Rochat Architectes wurde im Rahmen des Swiss Arc Award 2026 eingereicht und von Nina Farhumand publiziert.

222383649