C-Arts-Ouches

 
1018 Lausanne,
Suisse

Publié le 01 avril 2026
O. Rochat Architectes
Participation au Swiss Arc Award 2026

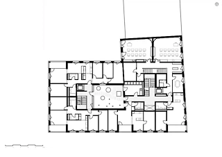
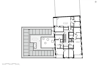
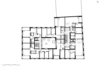
Façade sud Plantages en toiture Passage – préau couvert Entrée logement et école – transparence Cage d'escalier – béton avec empreinte bois Appartement – intérieur Appartement – intérieur Salle polyvalente sur cour Salle de classe Salle de classe Salle de classe Distribution école Vestiaires école Chantier – construction bois Chantier – construction bois

Données du projet

Données de base

Situation de l'objet
Rue Elisa-Serment 2, 1018 Lausanne, Suisse
Catégorie de projet
Type de bâtiment
Achèvement
12.2024
Liens

Données du bâtiment selon SIA 416

Étages
de 6 à 10 étages
Nombre de sous-sols
1 étage
Nombre d'appartements
35
Surface de terrain
1216 m²
Surface de plancher
5231 m²
Surface utile
3918 m²
Volume bâti
20'167 m³
Coûts de construction (BKP 2)
15,3 mio. CHF
Nombre de postes de travail
12
Nombre d'élèves
50

Description

Première réalisation d’une jeune coopérative d’habitants née de l’envie d’écrire sa vie ensemble, le projet a voulu dès le début être ouvert et généreux. Il se situe dans l’écoquartier des Plaines-du-Loup à Lausanne. En associant aux habitants, moteur de ce projet, l’école spécialisée des Jordils pour des enfants en difficulté de 6 à 16 ans, deux appartements pour les étudiants d’une école en soins infirmiers, une salle polyvalente mutualisée, un appartement d’amis, divers locaux de rencontre et de partage d’activités et des ouches communes, tout semble réuni pour son épanouissement. Le processus de création d’un écoquartier de cette ampleur réserve cependant son lot de surprises et son histoire est riche d’événements. Toute la beauté de cette aventure est portée par cette envie de partage et de complicité, résultat de la force d’un groupe qui a su transformer les adversités en opportunités. Ce projet veut être le reflet des qualités des coopérateurs et l’écrin de leur bonheur.

Avec sa cour, son jardin suspendu, la diversité de ses lieux de rencontres parfois un peu secrets et la richesse de son programme il a su apprivoiser une forme urbaine peu adaptée au logement, héritée d’un processus complexe de planification urbaine externe au projet. Deux corps de bâtiments de grande profondeur sont articulés dans un angle pas tout à fait orthogonal. Cette forme imposée a été sculptée pour permettre une diversité de situations dont le programme finit par tirer profit. Un grand patio suspendu amène de la lumière dans la profondeur des logements, offre un dégagement tranquille à la buanderie ainsi qu’un lien supplémentaire entre les deux cages d’escalier. Au rez-de-chaussée 2 axes se croisent. Celui d’un passage ouvert reliant la rue à la cour du bâtiment et servant de préau couvert à l’école. Le deuxième s’articule perpendiculairement à celui-ci et abrite dans un jeu de transparence les halls d’entrée successifs de l’école et des deux cages d’escaliers des logements. L’école trouve ainsi son autonomie avec son accès direct sur les Plaines-du-Loup tout en étant intiment connectée aux espaces extérieurs partagés. La salle polyvalente et son foyer-cuisine, les plantages extérieurs dans la cour et le passage faisant office de préau sont autant d’espaces partagés et de synergies entre le programme de logement et l’école.

Le jeu des loggias qui alternent ouverture complète sur la hauteur en pleine façade et ouverture avec contrecœur dans les angles, rythme élégamment et souligne la volumétrie des deux corps de bâtiment qui s’imbriquent. L’écart à l’orthogonalité de l’articulation de ses deux volumes est exploité pour amener une légère tension des typologies, soulignant l’ouverture et la dynamique des espaces de séjour.

Labellisé Minergie P et Minergie ECO, le bâtiment de R+8 est réalisé avec une couronne en bois autour d’un noyau en béton. Le bois réserve sa douceur aux logements et le béton son expressivité aux espaces publics et communs. Ce dernier, dont une grande part est faite d’agrégats recyclés, est nuancé selon la situation: doux et teinté dans le passage du rez-de-chaussée, sablé et teinté pour les parements du socle du bâtiment et marqué de l’empreinte du bois laissée par les panneaux de coffrage en OSB dans les cages d’escaliers, assurant la transition vers la douceur des logements. La recherche de quiétude et d’appropriabilité a guidé la matérialisation des logements. Sols, murs et plafonds se répondent dans des nuances de teintes : les murs en plâtre sont peints dans un beige très clair et les plafonds en bois sont lasurés de sorte que les deux éléments font un pas l’un vers l’autre pour atteindre une certaine unité. Les chapes de ciment blancs avec agrégats jaunes et beige du jura complète cette harmonie de couleurs douces. Les loggias reprennent les mêmes matériaux et traitements de chape et plafonds et un crépi sans grain se substitue sans y paraître au plâtre. Les espaces des séjours et de loggias ne font ainsi visuellement plus qu’un.

Le maître de l’ouvrage est une jeune coopérative d’habitants qui s’est formée en 2011 dans l’idée de participer au projet de réalisation d’un écoquartier dans les hauts de Lausanne: l’écoquartier des Plaines-du-Loup. 

Devant passer par un concours d’investisseurs, la coopérative a gagné en 2016 un lot de 5000 mètre carré grâce à un programme inclusif en commun avec une école spécialisée et des logements pour étudiants. Un processus participatif intense accompagné par le bureau d’architectes a permis à chacun de mettre en avant ses attentes et d’élaborer un programme et des principes typologiques qui ont donné les lignes directrices du projet. La coopérative souhaitait entre autres une construction éco-responsable. Elle a choisi de réaliser le bâtiment en bois malgré sa hauteur (R+8) et de le labelliser Minergie ECO, en plus des exigences de bases liées à l’écoquartier (Minergie-P, équivalent SméO et société à 2000 watts). Lors du chantier, le bâtiment représentait le plus gros volume de bois mis en œuvre dans le Canton de Vaud. Une réflexion technique poussée a permis de réaliser des connexions bois-bois sans charpente métallique(exception faite d’un seul encorbellement à l’articulation critique entre les 2 corps de bâtiments). Le processus de planification de l’écoquartier s’est avéré complexe et la forme urbaine imposée à son issue peu propice au logement, avec l’interpénétration de deux corps de bâtiment très profonds. Il a s’agit de savoir transformer cette complexité formelle en opportunité. La solution est venue de la création d’un patio central, apportant lumière au cœur de l’articulation des ces deux corps de bâtiment et permettant la conception d’un nombre conséquent de typologies répondant aux diverses situations et volontés issues du processus participatif initial. Une multiplicité de parcours intérieurs existe, tous animés par des événements particuliers comme la buanderie ouverte sur le patio, les ouches (jardins) sur la toiture du corps de bâtiment bas, la grande salle commune animant la petite cour au sortir du passage à l’air libre qui traverse le bâtiment (et constitue le préau couvert de l’école) et bien d’autres encore. 

Le projet de O. Rochat Architectes a été soumis dans le cadre du Swiss Arc Award 2026 et publié par Nina Farhumand.

222393075