Complexe scolaire Brunnenhof – rénovation de l'ancien studio de radio

 
8057 Zürich,
Suisse

Publié le 16 avril 2026
spillmann echsle architekten ag
Participation au Swiss Arc Award 2026

Intérieur du Studio 1 avec la fresque «Farben-Symphonie» d'Oscar Lüthy Vue sur la tour de Max Bill et la cour de récréation Vue sur la tour de Max Bill et l'auvent Nouvelle entrée principale et auvent Vue sur le studio 1 depuis la régie au 1er étage Intérieur du Studio 1 Espace de mouvement en cours de construction après le démantèlement des archives Espace de mouvement Studio 3 (de taille moyenne) en cours de construction, après la démolition du plafond et la pose de fenêtres à caisson Studio de taille moyenne, salle de danse et de théâtre Hall d'entrée, couloir de liaison avec vue sur l'aile 1 de l'ancien bâtiment Hall d'entrée avec le nouvel escalier, offrant une vue sur la tour Hall d'entrée, 1er étage, avec des compositions en émail de Max Bill Couloir de l'école secondaire dans l'aile 6 de l'immeuble Salles de classe dans l'aile 6 de la tour

Données du projet

Données de base

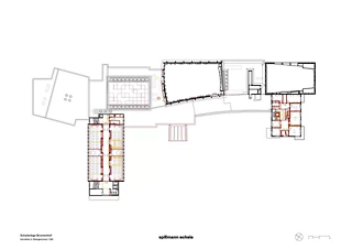
Situation de l'objet
Brunnenhofweg 22, 8057 Zürich, Suisse
Catégorie de projet
Achèvement
08.2025

Données du bâtiment selon SIA 416

Étages
de 6 à 10 étages
Nombre de sous-sols
2 étage
Surface de terrain
9546 m²
Surface de plancher
17'047 m²
Surface utile
6982 m²
Volume bâti
66'521 m³
Coûts de construction (BKP 2)
48,0 mio. CHF
Places de parking
27
Nombre d'élèves
250

Description

Contexte historique et situation urbanistique initiale
Le site du Radiostudio Brunnenhof, construit en plusieurs phases (1932-1937: Otto Dürr; 1967: Willy Rost et Max Bill) et partiellement classé, est situé dans le 6e arrondissement de Zurich. Le quartier d’Unterstrass connaît actuellement un fort développement, ce qui a nécessité de répondre à un besoin croissant en places scolaires et en structures d’accueil. L’infrastructure existante offrait une occasion unique de réaliser un centre inter-écoles aux possibilités d’utilisation exceptionnelles.
Le Radiostudio Brunnenhof a vu le jour dans les années 1930, à l’aube de la radio suisse, en tant que premier bâtiment dédié à la radio en Suisse, dans le style de la Nouvelle Objectivité. Les grandes salles de studio, qu’Otto Dürr a pu réaliser en deux phases de construction sur une période de seulement sept ans, entre 1932/33 et 1937, ont été conçues de manière très innovante pour l’époque et dotées d’une excellente acoustique. L’organisation intérieure de l’espace, avec des salles de studio alignées le long d’un couloir, caractérise la structure du rez-de-chaussée. La troisième phase de construction de l'ensemble, un bâtiment de 1967 réalisé dans le style du modernisme d'après-guerre et caractérisé par une structure portante simple et flexible, a été dirigée par Max Bill, artiste et architecte suisse de renommée internationale, ainsi que par Willy Rost, un ancien collaborateur d'Otto Dürr.
La structure et la trame de ce bâtiment destiné à accueillir des bureaux et une école professionnelle se prêtaient parfaitement à l'aménagement des locaux requis pour une école secondaire. Cet ensemble de bâtiments, réalisé en trois phases, est aujourd'hui classé et constitue un exemple historique et architectural significatif d'une stratégie de «construction progressive».

Concept d'utilisation et organisation spatiale 
Grâce à leur emplacement et à leur excellente acoustique, les deux salles se prêtaient particulièrement bien aux activités d'un lycée municipal et d'un conservatoire de musique, mais pouvaient également être utilisées pour d'autres manifestations municipales et publiques. L'objectif était d'intégrer de la manière la plus fonctionnelle possible les exigences du fonctionnement scolaire dans le bâtiment existant et de préciser les structures d'origine. 
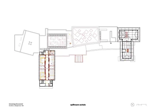
La nouvelle entrée principale a été mise en valeur par un grand auvent accueillant, qui facilite l’orientation et permet également aux visiteurs externes d’accéder aux salles de concert de haut niveau. Pour l’école de musique, un ensemble de salles de spectacle et de salles de musique, spatialement cohérent mais largement séparé de l’école secondaire, a été créé.
Un nouvel escalier dans le foyer dégagé mène les élèves du secondaire vers les salles de classe. La structure du bâtiment de la tour est idéale pour la création de salles de classe. Trois salles de classe, deux salles de groupe et une salle de détente forment ce qu’on appelle un « cluster », qui permet de nouvelles formes d’apprentissage et d’encadrement. L'autorité scolaire municipale de Waidberg a reçu de nouveaux locaux à l'étage supérieur, comprenant des bureaux individuels et des espaces ouverts, des salles de réunion et un espace de détente.  Afin de répondre de manière optimale aux exigences d'une école à horaire continu, une cantine avec une nouvelle cuisine et une terrasse extérieure est prévue au rez-de-chaussée. 
Une salle d'activité physique et une salle de gymnastique permettent d'assurer les cours d'éducation physique avant même la construction du nouveau bâtiment destiné à remplacer l'actuel bâtiment n° 5, qui n'est pas concerné par le projet de protection et dont la conception est actuellement assurée par le cabinet Urbaite.
L'ensemble du site est également accessible au public en dehors des heures scolaires. Des aires de jeux, des espaces sportifs et des espaces verts enrichissent le quartier avec diverses offres telles qu'un terrain de sport tout temps, des éléments d'équilibre et d'escalade, un parcours d'obstacles unique en son genre et d'autres espaces de détente.
La situation en matière de circulation et de stationnement a été réaménagée dans le périmètre de la rénovation grâce à la nouvelle rue conçue comme une zone de rencontre, avec des passages s'intégrant autant que possible au complexe scolaire autour de la double fontaine historique qui a donné son nom au lieu, et le site a été valorisé sur le plan climatique et écologique. 

Conception, technique et interventions architecturales
Sur le plan technique, les bâtiments ont été rénovés en privilégiant la réutilisation des ressources et l'adaptation des installations techniques du bâtiment. Diverses adaptations statiques et thermiques ont été intégrées de manière fondamentale afin de répondre aux exigences élevées en matière d'isolation acoustique et d'acoustique des pièces, ainsi qu'à l'augmentation de la fréquentation. Les interventions et les nouveaux éléments d'aménagement intérieur ont été intégrés dans un concept global et développés de manière spécifique et respectueuse à partir des différentes caractéristiques des bâtiments et des principes de construction de l'existant. 
La remise en état et la modernisation de l'enveloppe du bâtiment ne faisaient pas partie du projet et sont prévues pour une phase de construction ultérieure en 2040. Dans le cadre des interventions locales, telles que la façade du foyer avec la nouvelle entrée principale, la façade existante en éléments préfabriqués en béton a été complétée de manière à peine visible.
Au début de la planification, la découverte de la première salle d'étude, relativement petite, a été une surprise inattendue. 
Construction, technique et interventions architecturales
Sur le plan technique, les bâtiments ont été rénovés en privilégiant la réutilisation des ressources et l'adaptation des installations techniques du bâtiment. Diverses modifications statiques ont été apportées et Otto Dürr lui-même avait divisé cet espace de studio à deux étages en y ajoutant un faux plafond dans le cadre d'un projet de densification, après seulement quelques années d'exploitation. À l'époque, le nouveau média qu'était la radio et les infrastructures nécessaires à son fonctionnement se développaient rapidement, et les besoins en espace ne cessaient d'augmenter. Cette intervention architecturale a entraîné la perte d'une salle de studio à la richesse architecturale remarquable. Dans le cadre de la remise en état, la salle a pu être partiellement reconstruite pour servir de salle de danse et de mouvement pour l'école de musique et l'école secondaire.

Gestion du patrimoine et découvertes en matière de conservation des monuments historiques
Au cours de nouvelles sondages – le chantier avait déjà commencé –, une couche de feuille d’argent recouvrant les deux parois latérales de la monumentale et somptueuse peinture murale « Farben-Symphonie » de l’artiste Oscar Lüthy a été découverte de manière tout à fait inattendue au printemps 2024 dans la grande salle du Studio 1, sous la couche de peinture appliquée ultérieurement par Max Bill. Cette œuvre d’art était à l’époque la plus grande peinture murale abstraite d’un bâtiment suisse.
La précieuse feuille d’argent avait été recouverte lors de la rénovation de 1967. Au terme d’un processus intensif mené en collaboration avec les services de conservation du patrimoine, il a été décidé de restaurer la première version, et donc celle datant de la construction, de la salle de studio unique d’Otto Dürr. Les rares interventions datant de l’époque de Bill et Roost, qui ont été supprimées par Dürr afin de rétablir les couches antérieures, ont été soigneusement documentées.
La conservation du plafond en treillis en béton armé en porte-à-porte au-dessus du Studio 1, qui était à l’origine recouvert d’un enduit projeté contenant de l’amiante pour des raisons acoustiques, a constitué un véritable défi. La capacité portante de ce plafond sans poutre, construit pour la première fois en Suisse à une telle échelle, n’avait été vérifiée à l’époque de la construction qu’à l’aide d’essais de charge. Grâce à des modèles informatiques complexes, la sécurité structurale de ce plafond à nervures a finalement pu être démontrée mathématiquement pour la reconversion, ce qui a permis de justifier sa conservation et son utilisation future.
Un autre exemple illustrant la manière dont les transformations passées ont été intégrées est l'auvent en saillie de l'entrée principale, essentiel à l'usage du bâtiment. Bien qu'il s'agisse d'un élément architectural nouveau, sa forme fait référence à l'auvent d'origine conçu par Otto Dürr à cet emplacement, qui a dû céder la place à l'extension réalisée par Bill et Roost. Cet auvent mène au hall d'entrée, dont l'espace généreux a été rendu possible par la démolition d'un escalier de secours. La mise en place d'un nouvel escalier à volée unique a permis de relier les étages dans cette zone centrale.
En 1973, Bill et Roost ont ajouté les studios 6 et 7 dans l’aile intermédiaire des bâtiments bas ainsi qu’un parking souterrain, qui constituaient les derniers éléments de construction. Malheureusement, ces deux studios, avec leur riche palette de couleurs, ont été sacrifiés en 1992 pour faire place à une archive sonore de plusieurs étages. Grâce au démantèlement des archives, l’espace de circulation requis, avec un vide sur deux étages restauré, a pu être aménagé à leur place dans le cadre de la reconversion.
Au premier étage, le motif récurrent des liaisons visuelles internes et des aperçus sur les studios a pu être repris. De grandes fenêtres intérieures encadrent cet espace ouvert et créent des relations spatiales exceptionnelles.
Cinq œuvres d'art mural émaillées originales, réalisées spécialement pour le studio de radio Brunnenhof par Max Bill en 1973, continueront à mettre en valeur le foyer grâce à leurs impressionnantes compositions de couleurs et d'espaces, tout en entrant naturellement en dialogue avec les nouveaux éléments architecturaux.

Le projet a été présenté par spillmann echsle pour le Swiss Arc Award 2026 et publié par Jørg Himmelreich.

224583150