Crèche du Biopôle

 
1066 Epalinges,
Suisse

Publié le 15 mars 2026
OB Architectes Sàrl
Participation au Swiss Arc Award 2026

Données du projet

Données de base

Situation de l'objet
Route de la Corniche 11, 1066 Epalinges, Suisse
Catégorie de projet
Achèvement
10.2025
Liens

Données du bâtiment selon SIA 416

Surface de plancher
870 m²
Nombre d'élèves
88

Description

Cette crèche privée est située sur le campus du Biopôle – un parc scientifique et technologique qui regroupe plus de 150 entreprises, laboratoires et centres de recherche à Épalinges – et peut accueillir jusqu’à 88 enfants dans une ambiance stimulante et chaleureuse. Située dans le bâtiment Leucine, elle tire parti de cet environnement dynamique et de cette communauté active pour tisser des liens avec le monde de la recherche et de l’innovation, et proposer divers services, tels qu’un soutien logistique aux familles.

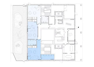
L'établissement, issu de la rénovation d'un bâtiment existant tant à l'intérieur qu'à l'extérieur, s'étend sur deux niveaux avec 360 m² au rez-de-chaussée et 510 m² au premier étage. Au rez-de-chaussée, l’entrée principale mène à un vestiaire qui dessert les différents espaces de la crèche, tandis que les locaux destinés à la direction et au personnel, ainsi que la salle d’allaitement, sont regroupés à l’avant afin de garantir une séparation claire des zones d’utilisation.

Le premier étage, accessible par un ascenseur et un escalier dédié, abrite les espaces réservés aux tout-petits et aux enfants plus âgés, disposés autour d’un bloc sanitaire central. Les espaces communs, la cuisine de réchauffage et la grande salle à manger avec son coin atelier constituent des lieux de rencontre, d’apprentissage et d’échange qui favorisent les contacts entre les différents groupes d’âge et renforcent la cohésion sociale. Les circulations entre les espaces sont fluides et intuitives afin de garantir le confort et la sécurité de tous.

OB architectes a placé les besoins des enfants au cœur du projet tout en tenant compte des défis organisationnels du personnel. Il en résulte un environnement stimulant, inclusif et adapté, propice au développement de chacun. Dans le respect des directives strictes de l’OAJE (Office d’Accueil de Jour des Enfants), ce projet architectural favorise une éducation bienveillante, fondée sur la confiance, l’écoute et l’échange dans une atmosphère chaleureuse.

Pour faire écho à la pédagogie créative et ouverte de la crèche, OB architectes a imaginé des volumes généreux et colorés qui encouragent l’expression, la découverte et l’autonomie des enfants. Dans chaque espace, les ambiances lumineuses et l’acoustique permettent une flexibilité d’utilisation s’adaptant aussi bien à des activités ludiques d’exploration qu’à des moments apaisants.

Assumant une identité marquée par des références industrielles – béton brut, matériaux simples, techniques apparentes –, le bureau a mené un travail particulier sur la matérialité et les couleurs. Les espaces dédiés aux enfants sont dynamisés par des teintes vives et variées qui viennent insuffler de la vitalité, stimuler la créativité et créer des repères visuels rassurants.

Le projet de OB architectes a été soumis dans le cadre du Swiss Arc Award 2026 et publié par Nina Farhumand.

219649315