École Kreuzgut Schaffhouse

 
8207 Schaffhausen,
Suisse

Publié le 26 novembre 2025
Berger Hammann Architekten AG

Données du projet

Données de base

Situation de l'objet
Trüllenbuck 23, 8207 Schaffhausen, Suisse
Catégorie de projet
Achèvement
09.2025

Données du bâtiment selon SIA 416

Étages
de 3 à 5 étages
Nombre de sous-sols
1 étage

Description

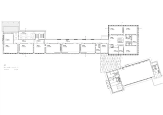
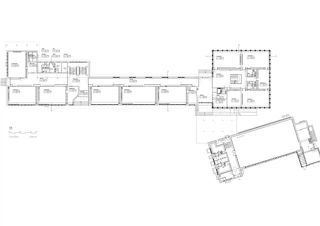
Le bâtiment scolaire Kreuzgut, situé au Trüllenbuck 23 à Schaffhouse, se présente comme un complexe allongé à trois étages (sous-sol, rez-de-chaussée, étage) avec une seule aile, dont le niveau inférieur est partiellement encastré dans le terrain. La partie centrale d'origine a été construite dans les années 1950 en même temps que le gymnase, puis complétée dans les années 1980 par des salles de classe supplémentaires. Le gymnase a été rénové en 2017.


Le bâtiment scolaire Kreuzgut, situé au Trüllenbuck 23 à Schaffhouse, se présente comme un complexe allongé à trois étages (sous-sol, rez-de-chaussée, étage) avec une seule aile, dont le niveau inférieur est partiellement encastré dans le terrain. La partie centrale d'origine a été construite dans les années 1950 en même temps que le gymnase, puis complétée dans les années 1980 par des salles de classe supplémentaires. Le gymnase a été rénové en 2017. Dans le cadre de la rénovation complète actuelle, le bâtiment existant a été agrandi vers le nord-est par une extension de quatre étages (sous-sol, rez-de-chaussée, étage, combles) et réorganisé sur le plan structurel. Pour ce faire, une partie du bâtiment existant a été démolie. L'extension, une construction hybride composée d'éléments en acier, en béton et en bois, est reliée directement au bâtiment existant à tous les niveaux, à l'exception des combles, par des passerelles. Elle comprend des salles de classe et des salles de groupe supplémentaires, une salle de réunion, un espace réservé aux enseignants avec une bibliothèque et une salle de détente, ainsi que diverses pièces annexes et débarras au sous-sol. La nouvelle construction délimite clairement l'espace de la cour de récréation du Kreuzgutweg et améliore considérablement sa qualité de vie grâce à la valorisation de la cour couverte et au réaménagement de l'entrée principale entre l'école et le gymnase. La structure en bois du toit de la cour de récréation est conçue comme une structure triangulée dans laquelle des panneaux individuels sont équipés de lucarnes colorées qui créent un jeu de lumière vivant sur la place. Les parties existantes du bâtiment ont été entièrement rénovées et renforcées pour résister aux séismes. Les différentes étapes de construction restent clairement visibles et témoignent de l'évolution historique de l'ensemble. Le nouveau bâtiment répond à la norme Minergie-P-ECO, tandis que les parties rénovées répondent à la norme Minergie-ECO.

Le projet a été téléchargé par Berger Hammann Architekten et publié par Nina Farhumand. 

210098209