École professionnelle du bâtiment de Zurich

 
8005 Zürich,
Suisse

Publié le 02 février 2026
Gunz & Künzle Architekt*innen GmbH ETH SIA
Participation au Swiss Arc Award 2026

Données du projet

Données de base

Situation de l'objet
Limmatstrasse 45, 8005 Zürich, Suisse
Catégorie de projet
Achèvement
05.2025
Liens

Données du bâtiment selon SIA 416

Étages
de 3 à 5 étages
Nombre de sous-sols
1 étage
Surface de terrain
3603 m²
Surface de plancher
10'207 m²
Surface utile
6681 m²
Volume bâti
43'356 m³
Coûts de construction (BKP 2)
31,5 mio. CHF
Nombre d'élèves
500

Description

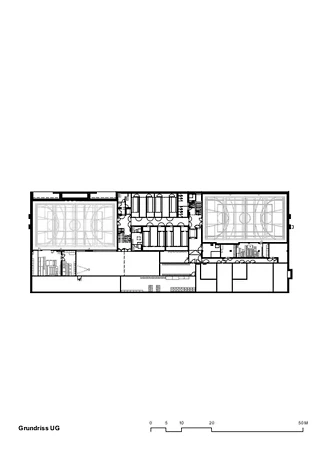
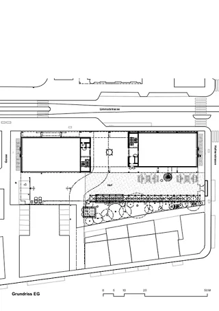
La nouvelle école professionnelle du bâtiment de Zurich est située en centre-ville, à proximité immédiate de la gare centrale. L’implantation du bâtiment élancé directement en bordure de rue permet de dégager une cour spacieuse et verdoyante, mise à disposition à la fois de l’école et du quartier. Ainsi, l’établissement s’inscrit dans le tissu urbain plutôt que de s’en distinguer. Les gymnases partiellement enterrés, dotés d’un espace libre au rez-de-chaussée, sont également utilisés par des associations en dehors des heures de cours et contribuent à l’animation du quartier en soirée. Cette superposition des fonctions implique que les charges des étages supérieurs soient reprises au-dessus des gymnases. Afin d’éviter le recours à des poutres de grande hauteur qui auraient compromis la qualité des espaces scolaires, l’ensemble du premier étage est conçu comme une poutre en treillis. Les diagonales de cette structure confèrent au piano nobile une identité spatiale singulière. Alors que les étages supérieurs, dédiés aux salles de classe, sont organisés de manière particulièrement rationnelle et efficace, le piano nobile se présente comme un paysage ouvert et flexible. Son élément central est l’atelier – un espace multifonctionnel destiné à l’enseignement, aux expositions et aux événements – développé en étroite collaboration avec les utilisateur·rice·s.

L’architecture du bâtiment ne s’appuie pas sur des images préconçues, mais se développe à partir de la logique constructive et des processus de mise en œuvre. La trame en béton brut de la structure porteuse apparente forme un cadre stable, pouvant être complété et affiné librement à l’intérieur. Ce système modulaire s’adapte durablement aux évolutions des usages. Associé à une grande efficacité en matière de surface et de densité d’occupation, à une technique constructive accessible, à une conception sobre et à des matériaux robustes, il en résulte un bâtiment structurellement pérenne. Sur le plan architectural, ce principe modulaire constitue un vocabulaire formel qui confère à l’école une identité propre tout en laissant place à l’appropriation et à l’adaptation par ses usager·ère·s.

Fonctionnalité
Le projet vise avant tout à créer des conditions optimales pour l’enseignement. Les 31 salles de classe répondent aux exigences les plus élevées en matière de lumière naturelle, d’acoustique et de qualité climatique. Des salles polyvalentes supplémentaires sont aménagées au premier étage, dans les niches des couloirs ainsi que sur le toit, afin d’accueillir des activités complémentaires. La structure porteuse du bâtiment nécessite peu de piliers aux étages dédiés à l’enseignement, ce qui garantit une grande flexibilité d’aménagement.

Environnement
Grâce à une organisation efficace, le programme a pu être réalisé avec un volume construit réduit, sans compromettre la qualité spatiale. Cette approche permet de préserver les ressources tout en créant une cour généreusement végétalisée. Des matériaux robustes et durables ont été sélectionnés, et une séparation systématique des systèmes constructifs a été mise en œuvre. Les installations techniques sont facilement accessibles et remplaçables. Le bâtiment est certifié Minergie-P-Eco et constitue le premier établissement scolaire du canton de Zurich à obtenir la certification SNBS Gold.

Économie
La viabilité économique du projet repose sur sa durabilité. Seuls des matériaux robustes, nécessitant peu d’entretien, disponibles à grande échelle et faciles à maintenir, ont été employés. Les éléments sur mesure et les détails constructifs complexes ont été évités afin de réduire les coûts à long terme. Les composants présentant un cycle de vie plus court ont été conçus comme des éléments additionnels pouvant être remplacés aisément. Une attention particulière a également été portée à la protection de la façade contre les intempéries.

Diversité
Le bâtiment scolaire propose de nombreux espaces informels favorisant les rencontres entre enseignant·e·s et élèves. Les niches d’apprentissage ont été aménagées en collaboration avec les élèves dans un esprit coloré, diversifié et dynamique. Le premier étage, conçu pour un usage flexible, se situe au-dessus de la loggia, et le grand escalier en colimaçon est directement relié à la cour. Ainsi, pendant et en dehors des heures de cours, le public peut interagir de différentes manières avec les activités de l’école.

Contexte
Le bâtiment, volontairement sobre, prolonge l’alignement des façades le long de la Limmatstrasse. Le Klingenpark, situé en diagonale de l’autre côté de la rue, est préservé conformément aux intentions urbanistiques initiales. Le socle à deux niveaux adopte un caractère urbain affirmé, en écho aux maisons du XIXe siècle de la Hafnerstrasse. Les colonnades disposées de part et d’autre ainsi que le passage traversant relient le bâtiment à l’espace public et créent de nouvelles connexions dans le quartier, dans toutes les directions.

Genius Loci
La cour intérieure, autrefois sombre et peu accueillante, se transforme en un espace de séjour ouvert et visible. Des assises ombragées et un terrain de basket invitent les élèves ainsi que les habitant·e·s et les personnes travaillant dans le quartier à venir se restaurer et s’attarder. L’aménagement sobre et les matériaux bruts s’inspirent des cours typiques du 5e arrondissement. L’arrière-cour de l’ancien quartier industriel est ainsi réinterprétée comme un espace urbain ouvert, sûr et verdoyant.

Beauté
La beauté n’est pas envisagée ici comme une image figée, mais comme l’expression vivante de la vie quotidienne. Au premier étage, les éléments porteurs structurent l’espace de manière marquante, tout en restant matérialisés avec retenue. À l’inverse, le mobilier et les rideaux, modulables et adaptables par les utilisateur·rice·s, se distinguent par des couleurs vives. La beauté ne résulte donc pas d’une posture architecturale autoritaire, mais de l’interaction entre l’espace proposé et son appropriation par ses usager·ère·s.

Le projet a été soumis dans le cadre du Swiss Arc Award 2026 par Gunz & Künzle Architekt*innen et publié par Jeannine Bürgi. La version française a été revue par Dane Tritz.

220092032