Baugewerbliche Berufsschule Zürich

 
8005 Zürich,
Schweiz

Veröffentlicht am 02. Februar 2026
Gunz & Künzle Architekt*innen GmbH ETH SIA
Teilnahme am Swiss Arc Award 2026

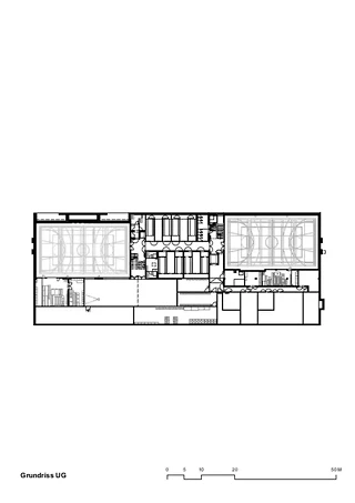
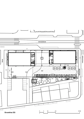
Zugang Limmatstrasse Hofraum Zugang Hafnerstrasse Loggia Piano Nobile 1. OG Werkhalle Piano Nobile 1. OG Werkhalle Piano Nobile 1. OG Verwaltung Piano Nobile 1.OG Kiosk Piano Nobile 1. OG Aufenthalt Piano Nobile 1. OG Treppenhaus Lernnische Unterrichtsgeschosse Vorbereitung Unterrichtsgeschosse Klassenzimmer Unterrichtsgeschosse Garderoben Sport 1. UG Sporthalle 1. UG

Projektdaten

Basisdaten

Lage des Objektes
Limmatstrasse 45, 8005 Zürich, Schweiz
Projektkategorie
Fertigstellung
05.2025
Links

Gebäudedaten nach SIA 416

Stockwerke
3 bis 5
Anzahl Kellergeschosse
1
Grundstücksfläche
3603 m²
Geschossfläche
10'207 m²
Nutzfläche
6681 m²
Gebäudevolumen
43'356 m³
Gebäudekosten (BKP 2)
31,5 Mio. CHF
Anzahl Schüler
500

Beschreibung

Die neue Baugewerbliche Berufsschule Zürich liegt zentral unweit des Hauptbahnhofs. Durch die Platzierung des schlanken Gebäuderiegels direkt an der Strasse entsteht ein grosszügiger, begrünter Hofraum, der sowohl der Schule als auch dem Quartier dient. So integriert sich die Schule in den Stadtraum, statt sich von ihr abzugrenzen. Die abgesenkten Turnhallen mit ihrem Luftraum im Erdgeschoss werden auch ausserhalb der Schulzeiten von Vereinen genutzt und beleben am Abend den Stadtraum. Diese Stapelung bedingt, dass die Kräfte der Obergeschosse über den Turnhallen abgefangen werden müssen. Um hohe Unterzüge zulasten des Schulraums zu vermeiden, wird das gesamte erste Obergeschoss als Fachwerkträger ausgebildet. Die diagonalen Stäbe dieser Fachwerke verleihen dem Piano nobile seine spezifische räumliche Identität. Während die Klassengeschosse darüber sehr flächeneffizient organisiert sind, bildet das Piano nobile eine offene, flexibel nutzbare Landschaft. Das Herz dieser Landschaft ist die Werkhalle – ein multifunktionaler Unterrichts-, Ausstellungs- und Veranstaltungsraum –, die in engem Austausch mit den Nutzenden entwickelt wurde.

Die Architektur des Gebäudes basiert nicht auf fertigen Bildern, sondern macht die Logik und Prozesse des Bauens zum Thema. Das rohe Betongitter der sichtbaren Tragstruktur bildet ein stabiles Gerüst, das sich nach innen beliebig ausbauen und verfeinern lässt. Dieses Baukastensystem lässt sich fortlaufend an die Bedürfnisse seiner Nutzung anpassen. Zusammen mit der hohen Flächeneffizienz und Nutzungsdichte, der zugänglichen Gebäudetechnik, der einfachen Bauweise und der robusten Materialisierung entsteht so ein Gebäude, das strukturell nachhaltig ist. Architektonisch formuliert der Bausatz ein Vokabular, das der Schule eine spezifische Identität verleiht und dennoch Raum für Aneignung und Anpassung lässt.

Funktionalität
Im Zentrum des Entwurfs steht der Anspruch, optimale Bedingungen für den Unterricht zu schaffen. Die 31 Klassenzimmer erfüllen bezüglich Tageslicht, Raumakustik und -klima höchste Anforderungen. Darüber hinaus stehen flexibel nutzbare Räume für den erweiterten Unterrichten im ersten Obergeschoss, in den Korridornischen und auf dem Dach zur Verfügung. Die Gebäudestruktur kommt in den Unterrichtsgeschossen mit wenigen tragenden Stützen aus und schafft so eine hohe Flexibilität.

Umwelt
Durch die effiziente Organisation kann das Programm mit weniger Bauvolumen erstellt werden ohne Abstriche bei der räumlichen Qualität zu machen. Dadurch werden Ressourcen gespart und ein begrünter Hofraum wird ermöglicht. Es wurden robuste und langlebige Materialien gewählt und eine konsequente Systemtrennung umgesetzt. Die Haustechnik ist zugänglich und austauschbar. Das Gebäude ist nach dem Standard Minergie-P-Eco zertifiziert und erreicht als erstes Schulhaus im Kanton Zürich auch SNBS Gold.

Wirtschaft
Die Wirtschaftlichkeit des Projekts ergibt sich aus seiner Langlebigkeit. Es kommen ausschliesslich robuste und unterhaltsarme Materialien zum Einsatz, die breit verfügbar sind und einfach unterhalten werden können. Auf Sonderanfertigungen und aufwendige Konstruktionsdetails wird verzichtet. Materialien mit kürzeren Lebenszyklen wurden als additive Elemente behandelt und können einfach ausgetauscht werden. Bei der Fassade wurde auf einen guten Witterungsschutz geachtet.

Vielfalt
Das Schulhaus bietet eine Vielzahl an informellen Aufenthaltsräumen in denen sich Lehrende und Lernende begegnen können. Die Lernnischen wurden in Zusammenarbeit mit den Lernenden farbig, divers und lebendig eingerichtet. Das flexibel nutzerbare erste Obergeschoss befindet sich über der Loggia und die grosse Wendeltreppe ist direkt mit dem Hofraum verbunden. So kann die Öffentlichkeit, während und ausserhalb der Unterrichtszeiten, in vielfältiger Weise mit den Aktivitäten der Schule in Austausch treten.

Kontext
Die schlichte Gebäudekörper führt die Fassadenflucht entlang der Limmatstrasse weiter. Der Klingenpark, diagonal versetzt auf der anderen Strassenseite, wird in der ursprünglichen stadträumlichen Absicht erhalten. Die zweigeschossige Sockelpartie ist sehr innerstädtisch wie bei den Häusern aus dem 19. Jahrhundert an der Hafnerstrasse. Die beidseitigen Kolonnaden und der Durchgang verweben das Gebäude mit dem Stadtraum und schaffen in alle Richtungen neue Vernetzungen im Quartier.

Genius Loci
Aus dem einst düsteren, unwirtlichen Innenhof wird ein offener, einsehbaren Aufenthaltsraum. Beschattete Sitzgelegenheiten und ein Basketballplatz laden Schüler*innen und Leute, die im Quartier wohnen oder arbeiten, zum Essen und Verweilen ein. Die schlichte Ausstattung und rohe Materialisierung lehnen sich an typische Hofsituationen im Kreis 5 an. Der Hinterhof im ehemaligen Industriequartier wird als offener, angstfreier und begrünter Stadtraum neu interpretiert.

Schönheit
Schönheit wird hier nicht als statisches Bild verstanden sondern als bewegter Ausdruck des Lebens. Die statischen Gegebenheiten bilden im ersten Obergeschoss eine prägnante räumliche Struktur, die aber sehr zurückhaltend materialisiert ist. Farblich prägnant sind dagegen die durch die Nutzer beweg- und anpassbaren Möbel und Vorhänge. Die Schönheit ergibt sich nicht als Diktat der Architektur sondern im Zusammenspiel eines räumlichen Angebots mit seiner Aneignung durch die Nutzenden.

Das Projekt wurde im Rahmen vom Swiss Arc Award 2026 von Gunz & Künzle Architekt*innen eingereicht und von Jeannine Bürgi publiziert

220050144