Fabrique de jardin

 
1754 Corjolens,
Suisse

Publié le 09 avril 2026
Soares Jaquier sàrl

Données du projet

Données de base

Catégorie de projet
Type de bâtiment
Achèvement
03.2023

Données du bâtiment selon SIA 416

Étages
1
Surface de terrain
937 m²
Surface de plancher
30 m²
Surface utile
30 m²
Volume bâti
110 m³
Coûts de construction (BKP 2)
80'000 CHF

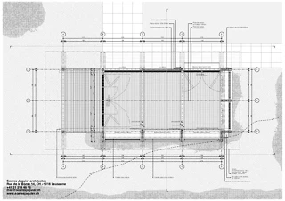
Description

Une pergola désertée, un courant d’air trop vif, une peau qui craint le soleil, une pièce manquante et l’amour de la lecture: autant de points de naissance pour le projet.
L’existant, une maison d’architecte au caractère discret, ne souffrait aucun bouleversement intérieur. Il fallait donc offrir un espace en extension, une réponse au manque, un seuil entre l’intime et l’horizon.
La place est donnée, le mur d’appui aussi. Reste à saisir le dialogue entre la maison et le paysage, cette ouverture brute sur l’infini, sans filtre ni retenue.
Le projet devient une fabrique de jardin, un espace qui s’ouvre et se replie au gré des rapport à l’existant, des souffles et des regards.

Le projet a été téléchargé par Lanthmann Construction Bois et Gachet Ruffieux et publié par Dane Tritz.

223974144