Immeubles d'habitation Stettbacherrain

10 von 589

 
8051 Zürich,
Suisse

Publié le 15 avril 2026
Kooperative E45 GmbH
Participation au Swiss Arc Award 2026

Données du projet

Données de base

Situation de l'objet
Stettbacherrain 12-16, 8051 Zürich, Suisse
Catégorie de projet
Type de bâtiment
Achèvement
05.2025

Données du bâtiment selon SIA 416

Étages
de 3 à 5 étages
Nombre de sous-sols
2 étage
Nombre d'appartements
45
Surface de plancher
6530 m²
Places de parking
25

Description

Contexte
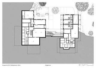
Le quartier Stettbacherrain, situé au nord de la ville de Zurich, est un ensemble résidentiel d’une très grande qualité urbanistique et paysagère, à la jonction entre la ville et la nature. Le site a été aménagé selon des idéaux modernistes qui considèrent la verdure et la lumière comme des besoins fondamentaux de l’être humain. Sans chercher à reproduire de manière sentimentale les bâtiments existants, les deux volumes en bois préservent les qualités spatiales et naturelles du lieu. Cette stratégie permet de conserver les perspectives visuelles, essentielles à la tranquillité et à la proximité avec la nature du quartier, ainsi que les passages verdoyants et le maillage naturel fin entre les bâtiments.

Les deux nouveaux bâtiments visent à préserver et à renforcer la continuité visuelle entre la rue et la forêt. La cour intérieure doit servir de lieu de rencontre pour le quartier et relier la rue à la végétation à l’est, où le paysage est préservé en tant qu’espace naturel, calme et protégé. Un thème central du projet est la diversité des typologies d'appartements, qui s'adresse à un large éventail de résidents ayant des besoins et des modes de vie différents. En ce sens, les configurations spatiales des deux bâtiments diffèrent fortement, bien qu'elles reposent sur un système porteur similaire.

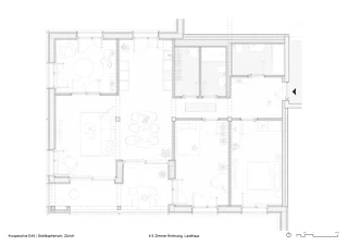
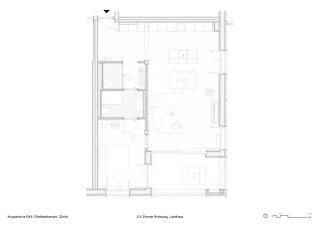
Types d'appartements
Les deux nouveaux bâtiments offrent au total 45 appartements. Ils se composent de volumes de taille similaire et, grâce à leur disposition, s'intègrent harmonieusement et en douceur au terrain existant. Le bâtiment nord se compose de deux volumes, tandis que celui du sud regroupe quatre volumes disposés en forme de moulin à vent. Cette composition permet de créer de nombreux types et styles d'appartements.

Les appartements de plain-pied de la «maison de campagne» au sud sont spacieux et aérés. Le bâtiment offre des pièces généreuses, orientées dans toutes les directions. Cette configuration garantit un apport important de lumière naturelle et renforce les perspectives sur les prairies environnantes et la forêt. Les appartements sont regroupés autour d’une cage d’escalier centrale accessible par le nord. Les étages standard comptent chacun six appartements, dont la plupart sont des 4,5 et 3,5 pièces. Chaque appartement dispose d’une loggia couverte, située à l’intérieur du volume global du bâtiment et qui marque la fin spatiale de la façade. Des stores textiles verticaux installés sur la face avant de la façade assurent ici l’ombrage. 

Les appartements élancés de la «Dorfhaus», en revanche, sont alignés les uns à côté des autres, à l'instar des maisons bordant les rues des villages ou des vieilles villes. Les proportions de leurs pièces rappellent celles des petites maisons à la campagne. Certains appartements sont répartis sur deux étages: des liaisons verticales au sein des unités d'habitation permettent ici la création de duplex. Un escalier original sert à la fois d'accès et de meuble de rangement. Le long de la façade sud, au rez-de-chaussée, se trouvent des appartements-ateliers, chacun disposant de sa propre entrée et d’un parvis. Tous les autres appartements offrent un balcon orienté vers le sud, donnant sur la place, avec des stores pour l’ombrage. Les deux immeubles proposent des appartements en attique de différentes tailles. Chacun de ces appartements dispose d’un accès direct à la terrasse végétalisée sur le toit par des portes ou des portes coulissantes.

Structure porteuse
Le sous-sol, le rez-de-chaussée, certaines parties du premier étage et les cages d'escalier sont prévus en construction massive. Les autres étages, dans l'air du temps, seront réalisés avec une structure porteuse en bois composée de planchers et de murs en bois lamellé-collé, et se veulent représentatifs de l'état actuel des connaissances dans ce domaine. Alors que la «maison de village» est construite selon la méthode des cloisons, la «maison de campagne» se caractérise par une construction à ossature apparente avec des poutres et des poteaux en bois.

Enveloppe du bâtiment
Les deux maisons sont dotées d’une façade en bois qui se distingue par son niveau de détail raffiné et soigné, ses saillies et ses retraits, ses profilés verticaux et ses bandes horizontales. Les grandes baies vitrées, qui s'étendent sur toute la hauteur des pièces, sont en bois et métal, tout comme les baies coulissantes donnant sur les loggias et les terrasses. Des stores verticaux en tissu sont disposés devant les fenêtres, tandis que des modules de ventilation intégrés dans les cadres assurent un climat intérieur agréable et durable. 

Le projet a été présenté par la Kooperative E45 pour le Swiss Arc Award 2026 et publié par Nina Farhumand.

217781600