Maison pour trois familles

 
5024 Küttigen,
Suisse

Publié le 15 avril 2026
Johannes Loretan Msc Arch ETH
Participation au Swiss Arc Award 2026

Données du projet

Données de base

Situation de l'objet
Stichweg 11, 5024 Küttigen, Suisse
Catégorie de projet
Type de bâtiment
Achèvement
06.2025

Données du bâtiment selon SIA 416

Étages
de 3 à 5 étages
Nombre de sous-sols
1 étage
Nombre d'appartements
3
Surface de terrain
767 m²
Surface de plancher
750 m²
Surface utile
600 m²
Volume bâti
2500 m³
Coûts de construction (BKP 2)
3,1 mio. CHF
Places de parking
6

Description

Près d'Aarau, deux sœurs et leurs familles construisent un nouveau bâtiment sur l'ancienne propriété de leurs grands-parents. La maison individuelle existante, qui comprend un local commercial, est démolie et le terrain est densifié afin de créer des logements pour trois familles et des espaces de vie communs.

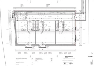
Située dans la zone résidentielle W3, la parcelle est désormais pleinement exploitée. À l'instar des immeubles collectifs de trois étages voisins, le nouveau bâtiment se présente comme un volume imposant et sobre. Ce n'est qu'au deuxième coup d'œil que l'on devine la subdivision en trois unités d'habitation juxtaposées, respectivement des maisons mitoyennes.
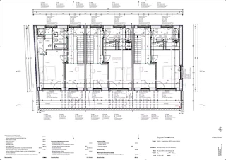
Côté rue, le corps de bâtiment, comme de nombreux autres le long de la rue, est légèrement décalé, de sorte que le stationnement puisse avoir lieu devant la maison. Les abris pour voitures sont reliés par un auvent et forment un accueil généreux tout autour de la cour commune.

La vie en communauté était la motivation intrinsèque du projet, et il s’agissait de mettre en avant les aspects positifs découlant de la proximité et de la densité spatiales: partager la vie, s’entraider, créer des synergies et offrir de manière ciblée des espaces d’intimité et de retraite.
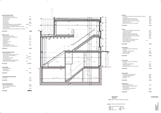
C’est ainsi que l’environnement a été conçu de manière globale, sans délimitation stricte des différentes zones d’utilisation. Les enfants sont expressément autorisés à courir dans les jardins. Sur le parvis, une table de pique-nique invite à la rencontre et aux discussions avec le voisinage. Une rampe d'escalier dessert un grand local à vélos au sous-sol, puis les trois maisons situées au-dessus. Dans son prolongement, un local technique abrite les installations techniques communes du bâtiment, telles que la pompe à chaleur géothermique, le ballon d'eau chaude et l'installation photovoltaïque.
En tant que copropriétaires, les trois parties sont tenues de s’impliquer et de façonner activement la vie en communauté.

Les logements s'étendent sur 135 mètres carrés répartis sur trois étages, les pièces à vivre communes étant situées au rez-de-chaussée et les pièces privées aux étages supérieurs. Les espaces de service au rez-de-chaussée sont réduits au minimum, permettant ainsi à l'espace de vie de s'étendre en forme de L sur toute la profondeur du bâtiment. Le salon à double hauteur situé côté sud laisse pénétrer la lumière du jour jusqu'à la façade nord et confère une impression d'espace malgré la superficie compacte.
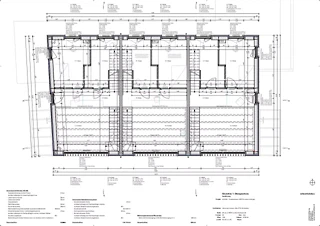
Un escalier en cascade permet d'accéder aux étages supérieurs depuis le salon. Les deux chambres du premier étage sont accessibles par une mezzanine qui sert de prolongement à ces pièces et permet de découvrir le salon sous un nouvel angle. Au deuxième étage se trouvent les salles d'eau et la chambre parentale. Le couloir prolongé peut être utilisé ouvertement comme bureau ou bibliothèque, ou bien être cloisonné pour former une quatrième pièce. Une terrasse, deuxième espace extérieur privé, offre un havre de paix pour profiter tranquillement du soleil.

La partie hors sol du bâtiment est une construction en bois, tandis que les deux murs de séparation ont été réalisés en béton armé afin d'assurer une masse thermique et une construction élancée. Toutes les structures sont laissées apparentes, sans revêtement. La façade est structurée par des pilastres et des frises qui servent également de transition entre les différents formats de fenêtres. Le mur extérieur est ouvert à la diffusion et les fenêtres en bois de qualité industrielle à assemblage à queue d'aronde s'y intègrent parfaitement. L'essence de bois utilisée à l'intérieur comme à l'extérieur est l'épicéa. Les murs sont revêtus de panneaux à trois couches et les plafonds en bois lamellé-collé présentent une surface similaire. L'espace de vie sur deux étages bénéficie d'un changement de structure porteuse et se distingue par un plafond à poutres apparentes. La structure porteuse est reportée dans la pièce, ce qui libère de la hauteur à l'étage supérieur pour l'aménagement de la terrasse.
Les sols en anhydrite poncés contrastent avec les surfaces en bois, intègrent le chauffage au sol et offrent une masse thermique de stockage directe pendant les périodes de chauffage ou de refroidissement. Des éléments métalliques en acier noir ou de couleur rouge apportent des touches ponctuelles.

Le projet a été soumis par Johannes Loretan pour le Swiss Arc Award 2026 et publié par Nina Farhumand.

224431837