Urbanride

 
1201 Genève,
Suisse

Publié le 02 avril 2026
CORAL STUDIO SA
Participation au Swiss Arc Award 2026

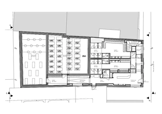
Vue extérieure Hall d'entrée Vestiaires Salle de spinning Salle de spinning Salle de boxe Salle de boxe Vue extérieure Toiture végétale

Données du projet

Données de base

Situation de l'objet
Rue de l'Ancien-Port 11, 1201 Genève, Suisse
Catégorie de projet
Type de bâtiment
Achèvement
11.2023
Liens

Données du bâtiment selon SIA 416

Étages
1
Nombre de sous-sols
1 étage
Surface de plancher
530 m²
Coûts de construction (BKP 2)
2,1 mio. CHF

Description

Longtemps abandonné et énergétiquement obsolète, le bâtiment a été entièrement réhabilité afin de l’inscrire durablement dans son quartier. La mise aux normes énergétiques, l’ajout de nouvelles ouvertures sur rue, la suppression de l’accès arrière et la végétalisation de la toiture ont permis d’améliorer significativement le confort et la qualité de vie des riverains. Le principal défi du projet résidait dans la création d’une « boîte dans la boîte », conciliant exigences acoustiques, contraintes budgétaires et performance énergétique, grâce à une collaboration étroite entre les différents acteurs. Accueillant Urbanride, concept sportif immersif et silencieux, le projet favorise une nouvelle dynamique urbaine et une réappropriation apaisée de l’espace public. Avant le rachat du bâtiment par le propriétaire et maître d’ouvrage actuel, le bâtiment était abandonné, habité par les pigeons, la cour était systématiquement bloquée par des voitures, le toit en gravier dégageait de la chaleur l’été, et le bâtiment n’était pas aux normes énergétiques. La réaffectation du bâtiment, d’un équipement produisant des bruits de scie et de métal et dégageant des effluves de pots d’échappement, en un bâtiment silencieux, destiné aux sportifs et calme, est une nette amélioration sociale, d’autant plus que les gens peuvent aussi s’y retrouver pour pratiquer du sport, l’établissement étant accessible au public. Privilégiant une société évoluant vers de la mobilité douce et une transition de l’hypercentre vers des zones piétonnes, l’affectation artisanale avec garages paraissait difficilement viable pour le maître d’ouvrage. Il a donc été décidé de procéder à une réintégration du bâtiment dans le quartier, avec une réflexion aussi bien sur la valorisation du bien que sur une amélioration des qualités de vie des gens du quartier.

Le défi majeur dans cette réalisation a été la mise aux normes énergétiques et la boîte dans la boîte. En effet, il ne fallait pas créer un projet disproportionné, et en même temps il fallait atteindre les normes. La balance entre programme, coût, emprise dans les locaux, a donc été un fin réglage et une collaboration étroite entre les ingénieurs, le propriétaire, le locataire et les architectes. Le volume du bâtiment a été complètement réhabilité. La mise aux normes énergétiques a été effectuée, de nouvelles fenêtres côté rue ont été ajoutées, la toiture a été végétalisée, et les garages ont été ajoutés à la surface utile du bâtiment, donc l’accès par l’arrière a été supprimé. Ainsi, la qualité de vie de la cour a nettement été améliorée pour tout le monde.

Le projet de Coral Studio a été soumis dans le cadre du Swiss Arc Award 2026 et publié par Nina Farhumand.

222754791