Neubau Mehrfamilienhaus Zürich

 
8008 Zürich,
Schweiz

Veröffentlicht am 24. März 2026
Singer + Bänziger Architekten
Teilnahme am Swiss Arc Award 2026

Neubau mit Garten Neubau – Ansicht von der Strasse Seitenfassade Wohnraum Regelgeschoss Loggia Regelgeschoss Wohnraum Attikageschoss Attikaterrasse Zimmer Attikageschoss Attikaterrasse mit Zürichsee Ecksituation zwischen Innenraum und Fassade Badezimmer Attikageschoss Gang Regelgeschoss Küche Erdgeschoss Eingangshalle Treppenhaus

Projektdaten

Basisdaten

Lage des Objektes
Zollikerstrasse 211, 8008 Zürich, Schweiz
Projektkategorie
Fertigstellung
06.2025
Links

Gebäudedaten nach SIA 416

Stockwerke
3 bis 5
Anzahl Kellergeschosse
1
Anzahl Wohnungen
7
Grundstücksfläche
1486 m²
Geschossfläche
1547 m²
Gebäudevolumen
5302 m³
Gebäudekosten (BKP 2)
7'760'000,0 Mio. CHF
Parkplätze
7

Beschreibung

Situation
Das Gebiet des Quartiers Riesbach oberhalb des Bahnhofs Tiefenbrunnen ist geprägt von weitläufigen Gärten mit altem Baumbestand. Die Parzellen sind jeweils eingefriedet und begleiten in ihrer Einheitlichkeit die Quartierstrasse, auch wenn die dahinterliegenden Bauten heute eine grosse Heterogenität aufweisen. Das Projekt sieht vor, das bestehende Zweifamilienhaus aus den 1920er-Jahren durch ein Mehrfamilienhaus mit sieben Einheiten zu ersetzen. Die Tiefe der Parzelle ermöglicht es, den Neubau von der Zollikerstrasse abzurücken und stärker auf die begrünten Zwischenräume der Nachbarparzellen auszurichten. Gleichzeitig behält das Gebäude ein klares, zur Strasse hin orientiertes Gesicht.

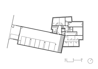
Typologie und Wohnungen
Wie bei den älteren Stadtvillen wird das Gebäude von der Vorderseite über eine grosszügige, multifunktionale Eingangshalle erschlossen. Im Erdgeschoss befinden sich – direkt von der Eingangshalle aus zugänglich – ein Gästezimmer für das gesamte Haus sowie Hobby- und Gartenräume. Die Erdgeschosswohnung ist als grosszügige Familienwohnung konzipiert und verfügt über einen direkten Zugang zum Garten. Pro Regelgeschoss werden zwei unterschiedliche Wohnungstypen realisiert. Die kleinere 3.5-Zimmer-Wohnung orientiert sich überwiegend nach Südosten. Ein freistehender Badezimmerkern lässt Licht in die Tiefe des Grundrisses, während ein Gebäudeversatz mit Loggia zusätzliches Licht von Südwesten ermöglicht. Zwei Schlafzimmer richten sich zum rückwärtigen Grünraum aus. Die grössere 4.5-Zimmer-Wohnung schlingt sich um die erste und eröffnet eine vierseitige Orientierung. Dadurch werden die teilweise nach Norden ausgerichteten Bereiche durch Grosszügigkeit und vielfältige Lichtstimmungen mehr als kompensiert. Im Attikageschoss werden zwei typenähnliche Wohnungen realisiert, die sich an den Grundrissen der unteren Geschosse orientieren. Ihre Qualität liegt jedoch insbesondere im direkten Bezug zu den vorgelagerten Terrassen. Den Abschluss bildet eine begrünte, für alle Bewohner*innen zugängliche Dachterrasse mit einer kleinen Aussenküche, die einen weiten Blick in Richtung Stadt und See eröffnet.

Konstruktion und Ausdruck
Der Bau wird in reiner Holzbauweise als innovatives Stützen-Plattensystem realisiert. Dadurch konnte der eigentlich klassisch-moderne Entwurf mit fliessenden Räumen, Bandfenstern und einer klaren Stützen-Platten-Struktur in zeitgemässer, nachhaltiger Bauweise umgesetzt werden. Bandfenster ermöglichen einen uneingeschränkten Blick in die begrünte Umgebung und schaffen zugleich in Kombination mit den geschlossenen Brüstungen eine angenehme Behaglichkeit. Die sichtbaren Holzbalkendecken betonen die horizontale Gliederung der Raumgefüge. Massive, grobkörnige Nagelfluhsteinböden «erden» die Räume und bilden einen spannungsvollen Kontrast zum Holzbau. Dunkelblaue Stützen übertragen den Rhythmus der Fassade in den Innenraum und verbinden die Wohnungen mit dem Blau der Fassadenbänder. Die Fassade wird geprägt von den blauen Brüstungsbändern mit integrierter Photovoltaik sowie weiss ausformulierten, plastischen Fensterbändern und relingartigen Geländern. Zusammen mit den gelblich textilen Sonnenstoren entsteht ein wohnliches Gebäude, das die Nähe zum See spürbar werden lässt.

Das Projekt von Singer Baenziger Architekten wurde im Rahmen des Swiss Arc Award 2026 eingereicht und von Nina Farhumand publiziert.

220968116