Construction d'un immeuble collectif à Zurich

 
8008 Zürich,
Suisse

Publié le 24 mars 2026
Singer + Bänziger Architekten
Participation au Swiss Arc Award 2026

Maison neuve avec jardin Nouvelle construction –  vue depuis la rue Façade latérale Pièce à vivre à l'étage standard Loggia à l'étage standard Pièce à vivre à l'étage mansardé terrasse sur le toit Chambre au dernier étage Terrasse sur le toit avec vue sur le lac de Zurich Angle entre l'intérieur et la façade Salle de bains au dernier étage Couloir à l'étage standard Cuisine au rez-de-chaussée Hall d'entrée Cage d'escalier

Données du projet

Données de base

Situation de l'objet
Zollikerstrasse 211, 8008 Zürich, Suisse
Catégorie de projet
Type de bâtiment
Achèvement
06.2025

Données du bâtiment selon SIA 416

Étages
de 3 à 5 étages
Nombre de sous-sols
1 étage
Nombre d'appartements
7
Surface de terrain
1486 m²
Surface de plancher
1547 m²
Volume bâti
5302 m³
Coûts de construction (BKP 2)
7'760'000,0 mio. CHF
Places de parking
7

Description

Situation
Le quartier de Riesbach, situé en amont de la gare de Tiefenbrunnen, se caractérise par de vastes jardins agrémentés d’arbres centenaires. Les parcelles sont toutes clôturées et bordent, dans leur uniformité, la rue principale du quartier, même si les bâtiments situés en arrière présentent aujourd’hui une grande hétérogénéité. Le projet prévoit de remplacer la maison bifamiliale existante, datant des années 1920, par un immeuble collectif de sept logements. La profondeur de la parcelle permet d’éloigner le nouveau bâtiment de la Zollikerstrasse et de l’orienter davantage vers les espaces verts des parcelles voisines. Dans le même temps, le bâtiment conserve une façade claire, orientée vers la rue.

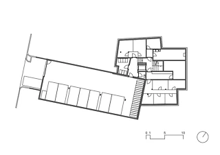
Typologie et appartements
À l'instar des anciennes villas urbaines, l'accès au bâtiment se fait par la façade, via un hall d'entrée spacieux et multifonctionnel. Au rez-de-chaussée se trouvent – directement accessibles depuis le hall d'entrée – une chambre d'amis commune à toute la maison ainsi que des pièces dédiées aux loisirs et au jardinage. L'appartement du rez-de-chaussée est conçu comme un vaste logement familial et dispose d'un accès direct au jardin. Deux types d'appartements différents sont réalisés par étage standard. Le plus petit appartement de 3,5 pièces est principalement orienté sud-est. Un noyau de salle de bains indépendant laisse pénétrer la lumière au fond du plan, tandis qu'un décalage du bâtiment avec loggia permet un apport de lumière supplémentaire par le sud-ouest. Deux chambres donnent sur l'espace vert situé à l'arrière. L'appartement plus spacieux de 4,5 pièces s'enroule autour du premier et offre une orientation sur quatre côtés. Ainsi, les zones partiellement orientées vers le nord sont largement compensées par l'espace généreux et la diversité des ambiances lumineuses. Au dernier étage, deux appartements de type similaire sont réalisés, s’inspirant des plans des étages inférieurs. Leur atout réside toutefois notamment dans leur lien direct avec les terrasses situées en avant. Le tout est couronné par une terrasse sur le toit végétalisée, accessible à tous les résidents, dotée d’une petite cuisine extérieure qui offre une vue imprenable sur la ville et le lac. 

Construction et expression
Le bâtiment est réalisé selon une construction entièrement en bois, sous la forme d’un système innovant de poteaux et de dalles. Cela a permis de transposer ce projet, à l’origine de style classique-moderne avec ses espaces fluides, ses baies vitrées et sa structure claire de poteaux et de dalles, dans une construction contemporaine et durable. Les baies vitrées offrent une vue imprenable sur l’environnement verdoyant tout en créant, en combinaison avec les balustrades fermées, une atmosphère agréable et chaleureuse. Les plafonds à poutres apparentes soulignent l’articulation horizontale de l’espace. Les sols en pierre de Nagelfluh massive à grain grossier «ancrent» les pièces et forment un contraste saisissant avec la construction en bois. Des poteaux bleu foncé transposent le rythme de la façade à l’intérieur et relient les appartements au bleu des bandes de façade. La façade se caractérise par des bandes de balustrades bleues intégrant des panneaux photovoltaïques, ainsi que par des bandes de fenêtres sculptées en blanc et des garde-corps en forme de balustrade. Associé aux stores textiles jaunâtres, le résultat est un bâtiment chaleureux qui rend palpable la proximité du lac.

Le projet de Singer Baenziger Architekten a été présenté dans le cadre du Swiss Arc Award 2026 et publié par Nina Farhumand.

220962040