Le complexe scolaire Guggach de Weyell Zipse invite à y entrer
Le Käferberg est une zone de loisirs située à la jonction entre Zurich-Ouest et Nord. De grands ensembles ont été réalisés à ses pieds, à l’est, sur le site baptisé Guggach. Une colonie de jardins familiaux et un centre sportif appartenant à l’UBS ont dû céder la place aux ensembles Guggachpark et Guggach II. Ils regroupent à eux deux 230 logements accessibles à la propriété et 200 logements en location. Une densité forte sur le papier traduite en réalité par des formes ouvertes et perméables. Avec l’ajout d’un parc, de logements à prix modéré et d’une école avec salle de sport double, la ville a complété le nouveau quartier de quelques éléments marquants. Inaugurée en début d’année scolaire, l’école a déjà suscité beaucoup de curiosité et s’est attiré éloges et prix dans la profession. Qu’est-ce qui la rend si particulière? Et qu’en est-il des «bambin·e·s» qui la fréquentent, sont-ils·elles aussi satisfait·e·s?

Photo: Daisuke Hirayabashi
Des parties dans un tout
En 2018, le jeune bureau Weyell Zipse de Bâle a remporté, avec le bureau Doscre de Zurich et les architectes paysagistes Atelier Loidl de Berlin, le concours de projet dans le cadre d’une procédure sélective pour un lotissement avec école et parc. Il y était explicitement question de concept durable, de logements sociaux ainsi que d’équipements collectifs. Durable, c’est-à-dire respectant les objectifs Minergie P-Eco proposant une architecture en mesure de stimuler la vie de la communauté. Bien que les trois réalisations aient été réparties entre les lauréats et que la construction de l’école ait été confiée au bureau bâlois, les jalons pour une approche globale étaient posés.

Plan de situation: Weyell Zipse Architekten
Garde-fous
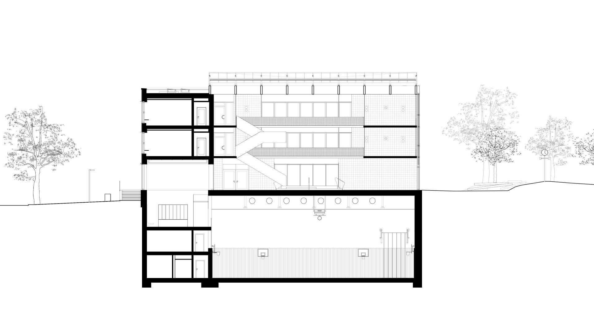
Les nouveaux bâtiments ont été orientés sur le tracé de la Wehntalerstrasse et dimensionnés sur le modèle des bâtiments le long de la Hofwiesenstrasse. Ils se présentent ainsi sous la forme de volumes assez imposants et offrent des plans profonds. L’alignement sur la rue de deux immeubles de huit étages a permis aux architectes de créer une barrière acoustique protégeant la zone de loisirs à l’arrière des nuisances de la rue. La disposition décalée des grands volumes garantit cependant depuis la rue un accès naturel au parc Guggach à travers le nouvel ensemble. Placée à l’arrière de la barre de logements située en pointe du périmètre, l’école s’ouvre quant à elle sur la Wehntalerstrasse. L’espace libre créé à la charnière entre les deux volumes assure la liaison entre le parc et le carrefour routier avec son arrêt de tram.
Si, côté rue, les quelques marches soulignées par des mains-courantes colorées indiquent l’entrée principale de l’école, on y accède également depuis le parc. C’est d’ailleurs par-là qu’affluent le matin la majorité des enfants qui viennent des quartiers résidentiels environnants. La salle de sport étant également utilisée le soir par des associations sportives, son accès est situé sur la Wehntalerstrasse. Reliée de la sorte au quartier à plus large échelle, son existence contribue à la promotion d’actions et de projets de proximité.

Lorsqu’il fait chaud, les 12 mètres de hauteur de la porte de hangar de l’école s’effacent pour faire du parc, de la cour de récréation et du préau un continuum spatial. | Photo: Daisuke Hirayabashi
L’école et la vie
L’apprentissage à l’école c’est un apprentissage pour la vie. C’est ce que font aussi les enfants à l’école Guggach, tout en faisant l’expérience des effets du climat, auxquels ils sont particulièrement confrontés. Grâce à ses salles de groupe attenantes aux salles de classe, ainsi qu’à son hall couvert pouvant être ouvert, offrant un espace de jeu et de socialisation, la nouvelle école permet aux enfants d’approfondir ensemble ou individuellement ce qu’ils ont appris ou vécu, que ce soit entre, avant ou après les heures de cours officielles.
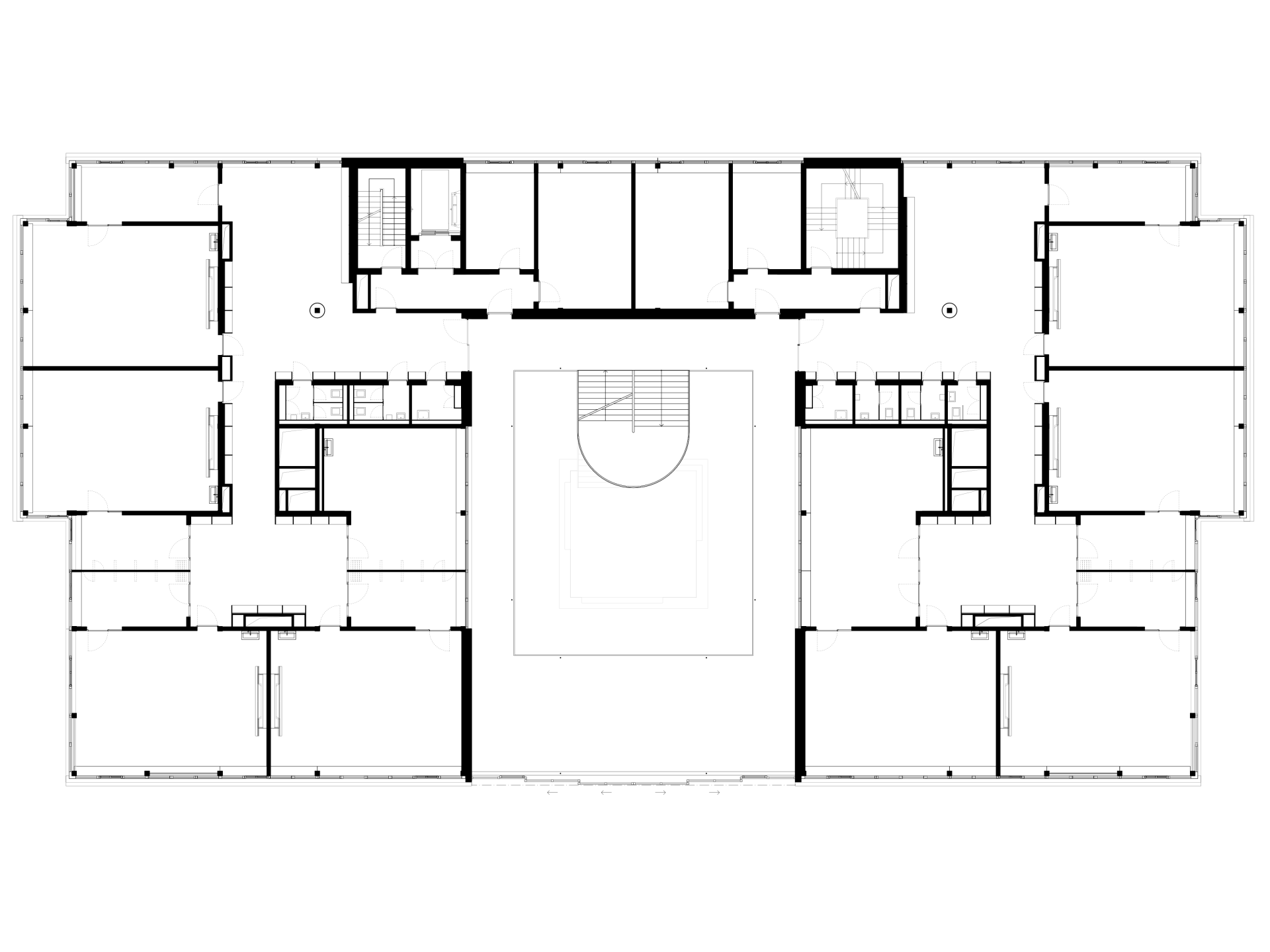
Au stade du concours, le projet ne prévoyait qu’un espace ouvert entre les deux ailes de l’école qui devaient être reliées à la rue et offrir une ouverture généreuse au rez-de-chaussée. Deux escaliers de secours occupaient la cour et reliaient entre elles les coursives intérieures des étages supérieurs. Côté sud, les coursives devaient déboucher sur une large terrasse offrant, le temps des pauses, un lieu de repli avec vue sur le Käferberg et les lotissements.
Au cours de l’étude du projet, la maîtrise d’ouvrage a estimé que, malgré la qualité et l’accessibilité de la cour, le passage qui y menait était trop public. En réponse, le passage depuis la Wehntalerstrasse a été fermé par un vitrage, tout comme le toit de la cour et la façade sud. On a aussi déplacé les escaliers de secours à l’intérieur du bâtiment. Il n’était toutefois pas possible de faire le deuil complet de cet élément de circulation verticale extérieur qui était devenu entre-temps une sorte de scène publique. Raison pour laquelle l’un des deux escaliers prévus à l’origine a été conservé, placé au centre du préau et doté d’un palier généreux.
L’école en plein air
La question de la limite climatique s’est alors posée, une question qui préoccupe chaque écolier·ère dès que retentit la cloche de la récré. Où commence l’espace extérieur? La question était aussi économique, car rendre étanches la toiture et la façade sud aurait signifié ajouter la cour à celui de l’école, ce qui n’était pas prévu dans le programme des locaux. On a donc opté pour une toiture de serre et une façade légère, le tout en acier-verre. Une porte de hangar permet l’ouverture de la façade sur trois étages, soit plus de la moitié de sa hauteur. Fermée en hiver, elle reste ouverte une fois le printemps venu et les habitant·e·s du quartier peuvent alors aussi utiliser le préau. Il protège du vent et de la pluie pendant la grande pause, et sert de refuge aux écolier·ères qui peuvent meubler la terrasse à leur guise, par exemple avec des coussins ou un baby-foot. Dans le préau aussi, on est protégé du soleil qui, sous nos latitudes, est parfois accompagné de températures très élevées dès le printemps. La toiture en verre s’ouvre aussi, mais elle est également dotée d’une protection solaire intégrée, dont le réglage est simple et se fait manuellement. Le fait qu’il soit possible de contrôler le climat intérieur avec des mécanismes lowtech fait quasiment partie du programme didactique local.
Loisirs et activités
Les douze salles de classe sont disposées symétriquement en cluster aux étages supérieurs. Dans l’aile de liaison arrière se trouvent des salles de musique acoustiquement isolées et, au rez-de-chaussée, l’accueil de jour et un réfectoire sont plus proches de l’espace public. C’est également là que se trouve la «lanterne», une liaison verticale qui mène à la salle de sport. Il s’agit d’un espace en double-hauteur, vitré sur la rue et sur la cour, au travers duquel on perçoit le sol vert du gymnase sur lequel se dépensent enfants et adultes en train de faire du sport aux différentes heures de la journée.

Coupe | Plan: Weyell Zipse Architekten
Le placement de la salle de sport en sous-sol, une décision essentiellement motivée par le parti pris urbain, a rendu nécessaire le choix d’une construction légère pour l’école située au-dessus. Son ossature en éléments préfabriqués de béton recyclé est complétée par un plancher composite Holorib, qui présente un poids réduit et améliore le bilan carbone de l’ensemble. Et afin de prévoir de l’espace pour d’éventuels réaménagements futures, l’école présente de grands espaces vides monumentaux à différents endroits. En attendant, les suspensions sphériques qui éclairent ces espaces en attente sont devenues des éléments ornementaux qui accrochent le regard.
Le parquet dans les salles de classe, les dalles dans les couloirs et les éléments en bois de couleur pastel des vestiaires, ou encore les élégants panneaux trois-plis noirs aux plafonds donnent parmi d’autres exemples son caractère domestique à l’aménagement intérieur de l’établissement scolaire, et contrastent avec le béton brut des poteaux et des dalles. Les murs des endroits exposés, tels que la cour ou les couloirs, sont habillés de briques acoustiques claires et poreuses. Comme les mailles fines des treillis des garde-corps du préau, elles évoquent la perméabilité d’une matière textile.
L’enveloppe extérieure est, elle aussi, très ornementale, et doit sa brillance à l’aluminium non traité et non anodisé qui a été choisi pour des raisons de facilité d’entretien. Et même si le métal léger deviendra plus mat avec le temps, la façade conservera son dynamisme grâce à l’assemblage de différents profils de tôles trapézoïdales. Cette utilisation habile de matériaux banals au premier coup d’œil rappelle les constructions de Lacaton & Vassal, et nous ramène à l’importance de prêter attention à ce qui se passe ailleurs.

Photo: Daisuke Hirayabashi
Le texte a été écrit par Claudia Frigo Mallien pour le Swiss Arc Mag 2025–2 et traduit en français par François Esquivié. Commandez votre exemplaire sur: Commander le Magazine - swiss-arc.ch











