Bâtiment communal et Auberge-restaurant Port Gitana

14 von 192

 
1293 Bellevue,
Suisse

Publié le 16 mars 2026
atelier ba.le GmbH
Participation au Swiss Arc Award 2026

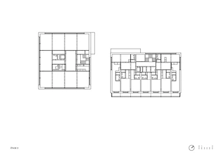
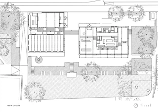
Les Balcons Les platanes Route de Lausanne Le passage Port Gitana Le restaurant Enfilade au 2ème étage La salle du conseil communal Détail des escaliers Vue du lac Salle du Lac Salle d'exposition L'inauguration Reflets et paysages

Données du projet

Données de base

Situation de l'objet
Route de Lausanne 318, 1293 Bellevue, Suisse
Catégorie de projet
Achèvement
09.2025

Données du bâtiment selon SIA 416

Étages
de 3 à 5 étages
Nombre de sous-sols
1 étage
Surface de plancher
3090 m²
Surface utile
2650 m²
Volume bâti
11'670 m³
Coûts de construction (BKP 2)
16,5 mio. CHF

Description

Concours ouvert 2020, Premier prix
Situé au bord du Léman à Bellevue, Port Gitana se voit doté d’un nouvel ensemble constitué d’un double programme : un bâtiment communal et une auberge-restaurant créant pour la commune un nouveau lieu de vie et de rencontre face au lac et aux Alpes. Positionnés pour créer un parvis et une nouvelle percée, les deux nouveaux bâtiments relient ainsi plus fortement le centre du village et le parc, encore séparés par la route cantonale. Entourant ce nouveau passage, deux grands avant-toits triangulaires accueillent les visiteurs et marquent les entrées principales. Les volumes aux géométries simples s’intègrent aux constructions environnantes en reprenant leur échelle et leur colorimétrie. Inspirés des maisons de bain en bois, ils évoquent un univers lacustre et établissent ainsi un nouveau lien entre le village et les rives du lac. 

L’auberge et le bâtiment communal s’insèrent dans le parc et épousent sa topographie en répondant par des demi-niveaux aux différentes fonctions du programme: ainsi les utilisateurs bénéficient depuis la grande salle polyvalente d’une vue en surplomb sur le lac et à l’étage inférieur d’espaces dédiés à la plage. Dans l’auberge, les clients du restaurant profitent d’un contact direct avec le parc et sa terrasse. La structure et le revêtement en bois s’évasant vers le bas offre une légèreté à l’ensemble tandis que la minéralité des socles ancre les volumes dans le parc, reprenant ainsi le thème des murets existants. Ce sont deux maisons – l’une de face, l’autre de profil – qui se répondent et forment un ensemble. Une nouvelle polarité pour le village de Bellevue et un lieu de rencontre, de loisir et de culture pour l’agglomération genevoise. Leur caractère unique, entre construction villageoise et cabine de bain, confère au lieu une nouvelle identité tout en laissant aussi bien à l’intérieur qu’à l’extérieur toute la place au paysage grandiose qui les entoure. 

À propos d’atelier ba.le
Port Gitana est le premier concours et ainsi le premier projet du bureau. Ce projet constitue d’ailleurs un parfait exemple de ses centres d’intérêt : des projets à programme multiple et complexe, générateurs de centralité.

Sur le site
Port Gitana est un lieu d’exception par sa vue, sa position au bord du lac et la richesse de sa végétation. Le site est doublement protégé par sa relation au centre du village ainsi qu’aux rives du lac. Il possède également une importance historique pour les Genevois. Son évolution a été rendue possible notamment grâce au travail étroit mené avec les autorités et les commissions publiques ceci dès les phases de concours.
Dès la première visite du site et jusqu’à la réalisation, les idées directrices sont restées les mêmes : deux bâtiments pour deux fonctions, reliant l’atmosphère villageoise à celle du lac, sans tomber dans l’ostentatoire si souvent présent au bord du lac dans les constructions récentes dans la région. L’image principale du concours et le projet réalisé sont la preuve de ce développement linéaire.

Sur la programmation et la maîtrise d’ouvrage
La Commune de Bellevue souhaitait redonner l’accès au bord du lac à la population, tout en assurant l’attractivité du village en proposant des locaux pour les associations et l’école de musique, ainsi qu’une auberge communale destinée à la vie locale et au tourisme. Le programme du site est donc fortement orienté vers le public, tout en accordant une place importante aux espaces extérieurs. Cette relation constitue le centre de l’organisation spatiale du projet, favorisant le lien des utilisateurs avec l’extérieur et le paysage.

Sur le projet
À Port Gitana, le village, le parc, le lac et la baignade constituent les premières inspirations du projet. Ils sont à l’origine de la volumétrie, de la matérialité, des coloris et de l’organisation spatiale: des maisons de bain en bois clair posées sur des socles en béton bouchardé, reprenant la matérialité des nombreux murets et bâtiments existants dans le parc. La couleur contrastée des menuiseries et des balcons évoque celle du lac en été. La différence de niveau entre la route et le parc permet de créer une diversité en coupe dans les espaces. Cette diversité se retrouve également à l’extérieur, où chaque façade est conçue et composée comme un tableau différent. Une seule de ces façades a radicalement changé depuis le concours afin de renforcer le lien entre l’extérieur et l’intérieur de l’auberge-restaurant. À l’intérieur, les matériaux choisis restent volontairement en retrait. La vue constitue le principal décor des espaces.

Sur la construction et la technique
Le sous-sol du projet se limite à l’emprise des sous-sols des bâtiments précédents. Les constructions en bois, plus légères, permettent d’éviter l’installation de pieux dans la nappe phréatique. La production de chaleur et de fraîcheur pour les chambres se fait grâce à l’eau du lac adjacent.
Le bâtiment répond au standard THPE-2000w, obligatoire pour toutes les nouvelles constructions publiques dans le canton de Genève. Les toitures sont entièrement couvertes de panneaux solaires intégrés, dont la couleur et la brillance rappellent les ardoises vernies qui ornaient la villa de la baronne de Rothschild: le premier bâtiment ayant occupé le site jusqu’aux années 1970 et qui lui a donné son nom.

Le projet de l'atelier ba.le a été soumis dans le cadre du Swiss Arc Award 2026 et publié par Nina Farhumand.

212888038