Bâtiment scolaire de Breiten

 
8910 Affoltern am Albis,
Suisse

Publié le 18 mars 2026
Meili Partner GmbH + Kummer Schiess Architekten
Participation au Swiss Arc Award 2026

Données du projet

Données de base

Situation de l'objet
Breitenstrasse 16, 8910 Affoltern am Albis, Suisse
Catégorie de projet
Achèvement
06.2025

Données du bâtiment selon SIA 416

Étages
de 3 à 5 étages
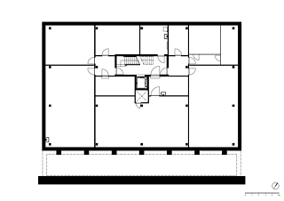
Nombre de sous-sols
1 étage
Surface de terrain
2291 m²
Surface de plancher
2210 m²
Surface utile
1683 m²
Volume bâti
8108 m³
Coûts de construction (BKP 2)
10,1 mio. CHF
Places de parking
9
Nombre d'élèves
120

Description

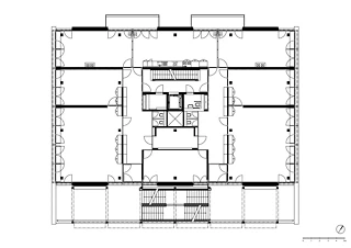
Le nouveau bâtiment scolaire de Breiten regroupe des écoles maternelles, des classes primaires et une garderie dans un seul et même bâtiment. Niché au cœur du quartier résidentiel, il s'intègre parfaitement à la hauteur des constructions environnantes. Grâce à son emplacement et à sa forme compacte, ce nouveau bâtiment structure le site. Au nord se trouvent le parking de neuf places, les locaux d’élimination des déchets et les places de stationnement pour vélos des employées. L’accès séparé garantit une sécurité élevée pour les enseignantes de maternelle et les élèves. Au sud se trouve l'espace libre et extérieur destiné à l'école, qui sert de zone d'arrivée et d'orientation et est aménagé avec différentes aires de jeux et infrastructures. L'orientation sud des espaces extérieurs garantit une grande qualité grâce à un bon ensoleillement. L'espace extérieur est intégré au bâtiment sous la forme d'une véranda avec un accès principal vertical. L'espace extérieur avec la véranda devient l'adresse du nouveau bâtiment.

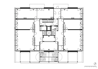
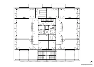
L'accès principal pour les enfants se fait depuis la Breitenstrasse par un chemin pavé qui traverse la cour de récréation et l'aire de jeux de l'école. L'espace extérieur offre aux enfants des zones de jeux variées, telles que la tour d'escalade et le toboggan, l'aire de jeux en gravier avec un bac à sable, un jardin potager agrémenté de plantes vivaces ou encore la grande pelouse de jeux. Un écran d'arbres sépare l'aire de jeux de la Breitenstrasse. Les surfaces sont généralement ouvertes, conformément au concept de « ville éponge ». Une clôture très transparente délimite l'aire de jeux et l'accès principal, permettant ainsi aux enfants de se déplacer librement et en toute sécurité. Les classes de maternelle, les classes primaires et les salles de garderie sont organisées en unités à classe unique. Les locaux techniques et les entrepôts se trouvent au sous-sol. Au rez-de-chaussée et au premier étage, on trouve quatre unités de même type, chacune comprenant un espace extérieur accessible depuis la véranda, un vestiaire, une salle principale, une salle de groupe et des sanitaires. Elles sont complétées par des salles d'activité et des ateliers de peinture communs. La partie nord abrite les salles de réunion, la salle des professeurs et les salles spécialisées. Au deuxième étage se trouvent la garderie avec ses structures d'accueil de jour et une cuisine, ainsi qu'une unité de classe individuelle. L'accès principal par la véranda est complété par un escalier de secours avec ascenseur situé au centre du plan. 

Le plan standardisé, avec des portées courantes, des longueurs de voies d'évacuation conventionnelles et une hauteur sous plafond constante, est modulable et sépare les systèmes. La structure porteuse principale, composée de poteaux et de dalles, est optimisée en termes d'empreinte carbone. Le remplissage par des cloisons à ossature bois permet une flexibilité future et une réduction de l'empreinte carbone.

Le nouveau bâtiment éducatif de Breiten est certifié Minergie-P-Eco. Le chauffage et l'eau chaude sanitaire sont raccordés au réseau de chauffage urbain. La chaleur est distribuée par le chauffage au sol.  

Le plan standardisé, avec des portées courantes, des longueurs d'issues de secours conventionnelles et une hauteur sous plafond constante, est de conception modulaire et sépare les systèmes les uns des autres. La structure porteuse principale, composée de poteaux et de dalles, est optimisée en termes d'empreinte carbone. Le remplissage par des cloisons à ossature bois permet une flexibilité future et une réduction de l'empreinte carbone.

Le nouveau bâtiment scolaire de Breiten est certifié Minergie-P-Eco. Le chauffage et l'eau chaude sont raccordés au réseau de chauffage urbain. La chaleur est diffusée par un système de chauffage par le sol. 

L'air frais est capté à l'extérieur par une cheminée. L'air vicié est évacué par le toit. Au sous-sol, deux monoblocs traitent l'air et le acheminent vers les étages supérieurs via le conduit central. Les salles de classe et les salles de groupe sont ventilées par des ventilateurs combinés. Dans les autres pièces, la ventilation s'effectue de manière conventionnelle par des bouches d'aération. La cuisine de la garderie est alimentée en air par un appareil dédié installé sur le toit.

Pour l'été, un refroidisseur d'air est installé, qui refroidit l'air à une température constante de 24 °C lorsque la température extérieure est inférieure à 32 °C. Le refroidissement s'effectue via le chauffage au sol avec de l'eau froide d'au moins 16 °C. Le froid est produit par une machine frigorifique refroidie par air installée sur le toit. La protection thermique estivale du bâtiment est certifiée selon la norme SIA 180.

À chaque étage, dans la zone des couloirs, un point d'eau équipé de 4 robinets d'eau froide et chaude avec protection anti-ébouillantage est installé par unité de classe. L'eau de pluie est infiltrée via un système de rétention situé sous le parking.

À l'intérieur du nouveau bâtiment, des matériaux nécessitant peu d'entretien, naturels et exempts de substances nocives ont été utilisés.  Les surfaces choisies créent, grâce à leur chaleur, leur toucher et leurs odeurs, une « atmosphère de salle d'étude » agréable. Des teintes sobres et fraîches ont été choisies. Les tons colorés, les surfaces claires et les matériaux naturels créent une atmosphère accueillante et intemporelle.

Le nouveau bâtiment est une construction hybride composée d'un système porteur principal en béton et d'un système secondaire en bois (enveloppe du bâtiment, véranda et cloisons intérieures). Les murs extérieurs du sous-sol sont en béton armé (épaisseur 25 centimètres) et dotés d'une cuvette d'étanchéité (classe d'étanchéité 1). Les dalles ont une épaisseur de 26 centimètres. Les poteaux en béton (30/30 centimètre) sont préfabriqués. Les murs de la cage d'escalier et de l'ascenseur assurent la rigidité du bâtiment. La véranda devant le bâtiment est construite en bois. Des poteaux et des poutres en bois lamellé-collé soutiennent une dalle nervurée. Les volées d'escalier ont été réalisées en acier. La façade est constituée d'éléments en bois (16 centimètres) et surisolée avec un panneau de fibres souples (10 centimètres). La façade en bardage d'épicéa teinté est suspendue et ventilée. Les surfaces intérieures sont recouvertes d'une couche d'installation acoustiquement absorbante. Les fenêtres à triple vitrage sont réalisées en profilés d'épicéa avec une couche extérieure de protection contre les intempéries en aluminium anodisé incolore. Les cloisons intérieures sont constituées de cloisons à ossature bois préfabriquées recouvertes de panneaux à trois couches. Les vitrages intérieurs et les portes sont réalisés en profilés de bois massif de chêne plaqués d'épicéa. Les sols des couloirs, des vestiaires et des pièces humides sont recouverts de dalles en grès cérame teinté dans la masse. Les sols de la cage d'escalier sont constitués de chapes cimentées lissées. Un linoléum (Marmoleum Cocoa Matcha) est posé dans les salles de classe. Les panneaux acoustiques au plafond sont blancs


La particularité de ce projet résidait notamment dans l'organisation des espaces visant à optimiser l'utilisation de la surface, en tenant compte du volume et du contexte, afin de préserver un espace extérieur aussi vaste que possible, protégé du stationnement et ouvert sur le quartier. L'espace extérieur n'est pas seulement pensé horizontalement, mais s'étend également à la verticale. Les éléments verticaux servent à la fois de voies de circulation, de points d'accès et d'espaces extérieurs supplémentaires pour les groupes. Le projet repose sur un système d’espaces aussi neutre que possible en termes d’utilisation, pouvant être utilisé de manière équivalente aussi bien par les classes de maternelle que par celles de l’école primaire. Un concept d’accès flexible et autonome soutient cette polyvalence et permet différents scénarios d’exploitation et d’utilisation. L'organisation spatiale suit une typologie d'unités de classe individuelles, reliées entre elles par des salles de rangement communes. Cette structure permet à la fois des utilisations autonomes et des utilisations couplées. La sobriété est un principe central du projet: ainsi, chaque unité de classe ne dispose, par exemple, que d’un seul point d’eau. Parallèlement, la flexibilité est garantie par diverses mesures, telles que des hauteurs de mobilier adaptables, des tabourets d’appoint ainsi qu’une séparation claire des systèmes, qui facilite l’installation ultérieure de cloisons. Le zonage des pièces principales peut être adapté à l'aide de portes supplémentaires, et les pièces annexes, telles que les vestiaires, sont également conçues pour une double utilisation. La véranda ainsi que la composition de la façade, avec ses éléments en bois verticaux et horizontaux, offrent aux visiteurs une multitude de perspectives ouvertes, d'entrées, de sorties et de vues traversantes.  

Le projet de Kummer Schiess Architekten a été soumis dans le cadre du Swiss Arc Award 2026 et publié par Nina Farhumand.

213295628