Bildungsgebäude Breiten

 
8910 Affoltern am Albis,
Schweiz

Veröffentlicht am 18. März 2026
Meili Partner GmbH + Kummer Schiess Architekten
Teilnahme am Swiss Arc Award 2026

Projektdaten

Basisdaten

Lage des Objektes
Breitenstrasse 16, 8910 Affoltern am Albis, Schweiz
Projektkategorie
Fertigstellung
06.2025
Links

Gebäudedaten nach SIA 416

Stockwerke
3 bis 5
Anzahl Kellergeschosse
1
Grundstücksfläche
2291 m²
Geschossfläche
2210 m²
Nutzfläche
1683 m²
Gebäudevolumen
8108 m³
Gebäudekosten (BKP 2)
10,1 Mio. CHF
Parkplätze
9
Anzahl Schüler
120

Beschreibung

Der Neubau Bildungsgebäude Breiten vereint Kindergärten, Primarschulklassen und einen Hort in einem Gebäude. Er liegt eingebettet im Wohnquartier und übernimmt die quartiersüblichen Gebäudehöhen. Durch seine Lage und kompakte Form zoniert der Neubau das Areal. Nördlich liegt die Parkierung mit neun Parkplätzen, der Entsorgung und den Veloparkplätzen der Mitarbeiter*innen. Durch die separierte Zufahrt wird eine hohe Sicherheit für die Kindergärtner*innen und Schüler*innen gewährleistet. Südlich liegt der Frei- und Aussenraum für die Schulnutzungen, welcher Ankunfts- und Orientierungsraum ist und mit unterschiedlichen Spielflächen und Infrastrukturen gestaltet ist. Durch die südliche Ausrichtung der Aussenräume wird eine hohe Qualität dank guter Besonnung gewährleistet. Der Aussenraum wird am Gebäude in Form einer Veranda mit Haupterschliessung in die Vertikale aufgenommen. Der Aussenraum mit der Veranda wird zur Adresse des Neubaus. Der Hauptzugang für die Kinder erfolgt von der Breitenstrasse über einen Plattenweg, der durch den Pausen- und Spielbereich der Schule führt. Im Aussenraum bieten sich differenzierte Spielräume für die Kinder an, wie etwa ein Kletterturm mit Rutsche, ein Kiesplatz mit Sandspiel, ein staudenbewachsener Naschgarten oder eine grosszügige Spielwiese. Durch einen Baumfilter wird der Spielbereich von der Breitenstrasse abgetrennt. Die Oberflächen sind generell als Schwammstadt offen ausgeführt. Ein sehr transparenter Zaun fasst den Spielbereich und den Hauptzugang, sodass sich die Kinder sicher und frei bewegen können.

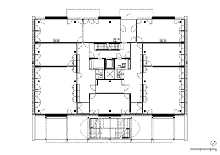
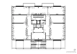
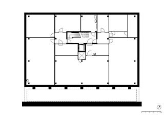
Die Kindergärten, Primarschulklassen und Horträume sind als Einzelklasseneinheiten organisiert. In den Untergeschossen liegen die Technikräume und Lager. Im Erdgeschoss und im 1. Obergeschoss befinden sich vier typengleiche Einheiten mit Aussenbereich auf der Veranda, bestehend aus Zugang, Garderobe, Hauptraum, Gruppenraum und Nasszellen. Sie werden durch gemeinsam genutzte Bewegungsräume und Malateliers ergänzt. Im nördlichen Bereich liegen Sitzungszimmer, Lehrer*innenzimmer und Spezialräume. Im 2. Obergeschoss befinden sich der Hort mit den Tagesstrukturen und einer Hortküche sowie eine Einzelklasseneinheit. Die Haupterschliessung über die Veranda wird durch ein Fluchttreppenhaus mit Lift in der Grundrissmitte ergänzt. Der standardisierte Grundriss mit gängigen Spannweiten, konventionellen Fluchtweglängen und einer durchgehenden Raumhöhe ist nutzungsoffen und systemgetrennt. Das primäre Stützen-Plattentragwerk ist hinsichtlich seines CO₂-Abdrucks optimiert. Die Ausfachung mit Holzständerwänden erlaubt eine zukünftige Flexibilität und eine weitere Reduktion des CO₂-Abdrucks.

Der Neubau Bildungsgebäude Breiten ist nach Minergie-P-Eco zertifiziert. Die Heizung und die Brauchwarmwasseraufbereitung sind an die Fernwärme angeschlossen. Die Wärme wird über die Fussbodenheizung verteilt. Die Frischluft wird im Aussenraum über einen Kamin gefasst. Die Abluft findet über Dach statt. Im Untergeschoss bereiten zwei Monoblocks die Luft auf und leiten sie über den zentralen Steigschacht in die Obergeschosse. Die Klassenzimmer und Gruppenräume werden über Verbundlüfter versorgt. In anderen Räumen erfolgt die Belüftung konventionell über Kanalauslässe. Die Hortküche wird über ein eigenes Gerät auf der Dachfläche mit Luft versorgt. Für den Sommer ist ein Luftkühler installiert, der die Luft bis zu einer Aussentemperatur von 32 °C konstant auf 24 °C abkühlt. Über die Fussbodenheizung wird mit Kaltwasser von mindestens 16 °C gekühlt. Die Kälte wird durch eine luftgekühlte Kältemaschine auf dem Dach produziert. Der bauliche sommerliche Wärmeschutz ist nach SIA 180 nachgewiesen. Auf den Geschossen ist im Korridorbereich eine Wasserstelle mit vier Zapfstellen mit Kalt- und Warmwasser und Brühschutz pro Klasseneinheit installiert. Das Regenwasser wird über eine Retentionsanlage unter der Parkierung versickert. Im Inneren des Neubaus wurden unterhaltsarme, natürliche und schadstofffreie Materialien eingesetzt. Die gewählten Oberflächen erzeugen über ihre Oberflächenwärme, Haptik und Gerüche eine wohlige «Lern-Stuben-Atmosphäre». Es wurden zurückhaltende, frische Farbtöne gewählt. Bunttöne, die hellen Oberflächen und natürlichen Materialien erzeugen eine einladende, zeitlose Raumatmosphäre. Jeweils zwischen Korridoren und Unterrichtsräumen stehen Garderobenmöbel und Einbauschränke in Kunstharz. Entlang der Fassaden stehen Zeichen- und Arbeitsflächen zur Verfügung. Im 1. Obergeschoss ist eine lange Küche installiert. Zur Flexibilität sind in allen Küchen und Wasserstellen Tritthocker verbaut. Alle Schreinerarbeiten sind in Kunstharz mit Kanten in Hartholz ausgeführt. Displays und Möblierungen sind systemgetrennt konzipiert. Für das Aufhängen von Unterrichtsmaterial sind Haken in den Akustikdecken vorgesehen. Auf die Holzwände kann mit Nadeln Material angebracht werden. Auf die einfach zu reinigenden Schrankoberflächen kann mittels Kleber Papier gehängt werden. Sämtliche Möbel inkl. Screens und Stauraummöbel sind mobil.

Der Neubau ist ein Hybridbau aus einem Primärtragsystem in Beton und einem Sekundärsystem in Holzbau (Gebäudehülle, Veranda und Innenwände). Die Aussenwände des Untergeschosses sind in Stahlbeton (Dicke 25 Zentimeter) und in Gelber Wanne (Dichtigkeitsklasse 1) ausgeführt. Die Decken weisen eine Dicke von 26 Zentimetern auf. Die Betonstützen (30/30 Zentimeter) sind vorfabriziert. Die Treppenhaus- und Liftwände steifen das Gebäude aus. Die Veranda vor dem Gebäude ist in Holzbauweise erstellt. Stützen und Balken aus Brettschichtholz tragen eine Rippendecke. Die Treppenläufe wurden aus Stahl gefertigt. Der Fassadenbau ist als Holzelementbau (16 Zentimeter) ausgeführt und mit einer Weichfaserplatte (10 Zentimeter) überdämmt. Die Fassade in eingefärbter Fichtenschalung ist vorgehängt und hinterlüftet. Die inneren Oberflächen sind mit einer akustisch absorbierenden Installationsschicht ausgeführt. Die dreifach verglasten Fenster sind in Fichtenprofilen mit äusserer Wetterschutzschicht in Aluminium, farblos eloxiert, ausgeführt. Die Innenwände sind als vorgefertigte Holzständerwände mit Dreischichtplatten beplankt erstellt. Die inneren Verglasungen und Türen sind als Vollholzprofile in Eiche, überfurniert mit Fichte, ausgeführt. Die Böden in Korridoren, Garderoben und Nassbereichen sind in durchgefärbten Feinsteinzeugplatten ausgeführt. Die Böden im Treppenhaus sind geglättete, zementöse Unterlagsböden. In den Unterrichtsräumen ist ein Linoleum (Marmoleum Cocoa Matcha) verlegt. Die Akustikpaneele an den Decken sind weisszementgebundene Holzwollplatten auf einer Unterkonstruktion in gehobelter Fichte.

Das Besondere an der Aufgabe lag insbesondere in der flächeneffizienten Organisation der Räume im Hinblick auf Volumen und Kontext sowie im Erhalt eines möglichst grossen, von der Parkierung abgesicherten und dem Quartier zugewandten Aussenraums. Der Aussenraum wird dabei nicht nur horizontal gedacht, sondern auch in die Vertikale erweitert. Vertikale Elemente dienen zugleich als Erschliessung, Zugangssituationen und als zusätzliche Aussengruppenräume. Der Entwurf basiert auf einem möglichst nutzungsneutralen Raumsystem, das sowohl von Kindergarten- als auch von Primarschulklassen gleichwertig genutzt werden kann. Ein flexibles und autonomes Zugangskonzept unterstützt diese vielseitige Nutzbarkeit und ermöglicht unterschiedliche Betriebs- und Nutzungsszenarien. Die räumliche Organisation folgt einer Typologie von Einzelklasseneinheiten, die jeweils über gemeinsam genutzte Schalträume miteinander verbunden sind. Diese Struktur erlaubt sowohl eigenständige als auch gekoppelte Nutzungen. Ein zentrales Prinzip des Entwurfs ist Suffizienz: So verfügt jede Klasseneinheit beispielsweise nur über eine Wasserstelle. Gleichzeitig wird Flexibilität durch verschiedene Massnahmen gewährleistet, etwa durch anpassbare Möbelhöhen, Tritthocker sowie eine klare Systemtrennung, die den späteren Einbau von Wänden erleichtert. Die Zonierung der Haupträume kann über zusätzliche Türen angepasst werden, und auch Nebenräume wie Garderoben sind auf Doppelnutzbarkeit ausgelegt. Die Veranda sowie die Fassadeneinteilung mit stehenden und liegenden Holzelementen erlauben Besucher*innen eine Vielzahl an Ein-, Aus- und Durchblicken.

Das Projekt von Kummer Schiess Architekten wurde im Rahmen des Swiss Arc Award 2026 eingereicht und von Nina Farhumand publiziert.

213304521