Aménagement du centre-ville de Grund

 
4223 Blauen,
Suisse

Publié le 20 avril 2026
Fox Wälle Architekten GmbH

Données du projet

Données de base

Situation de l'objet
Dorfstrasse 13, Im Grund 1,3,5, 4223 Blauen, Suisse
Catégorie de projet
Type de bâtiment
Achèvement
11.2025

Données du bâtiment selon SIA 416

Étages
de 3 à 5 étages
Nombre de sous-sols
1 étage
Nombre d'appartements
11
Surface de terrain
2768 m²
Surface de plancher
2998 m²
Surface utile
2759 m²
Volume bâti
8375 m³
Coûts de construction (BKP 2)
4,3 mio. CHF
Places de parking
13

Description

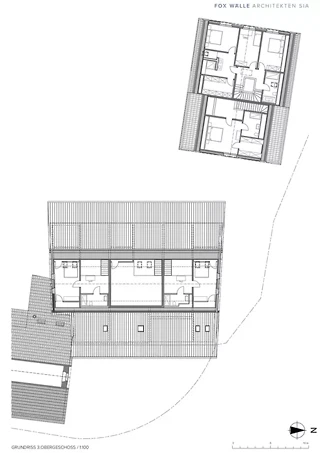
Complexe résidentiel «Im Grund», Blauen – La mémoire de la grange
Dans le centre historique protégé de Blauen, un bâtiment d'exploitation digne d'être préservé avait déjà été démoli pour des raisons de sécurité. La mission consistait à combler ce vide dans le paysage urbain, à respecter le contexte historique et à créer des logements contemporains. Le résultat est un immeuble collectif de 9 appartements, construit en remplacement sur la Dorfstrasse, ainsi qu’une maison jumelée dans la Hofstatt.

Le point de départ a été la reconstitution du volume perdu à partir de sources d’archives et de documentation photographique. La division en trois parties de l’ancienne façade et la porte de grange caractéristique sont devenues le leitmotiv de la conception. L'immeuble collectif reprend le rôle de la grange sans la copier, avec des éléments typiques de la région, tels que des toits en pente, des volets battants et une combinaison de crépi et de bois, mais réinterprétés de manière contemporaine. L'ancienne porte de grange perdure sous la forme d'une baie vitrée à deux étages avec des lamelles de bois.

La maison jumelée de la Hofstatt reprend la matérialité du «Schopf noir» sous la forme d’un bardage en bois foncé, mais dans un style épuré et minimaliste. Des tuiles solaires intègrent discrètement le système photovoltaïque dans la toiture. Le verger reconstitué et une piscine aux formes organiques viennent renforcer la structure historique de la cour. Le projet a vu le jour en étroite collaboration avec le service cantonal de conservation des monuments historiques, dans le cadre d’un dialogue de fond qui a largement influencé les choix conceptuels, de la reconstruction des volumes au choix des matériaux.

Le complexe résidentiel «Im Grund» se distingue par une série de particularités architecturales marquantes. L'immeuble d'habitation réinterprète la volumétrie de l'ancienne grange dans un langage contemporain. Une pergola en bois sur la façade arrière ainsi que l'entrée en appentis menant au parking souterrain complètent le concept et ancrent délicatement le bâtiment dans le contexte typique du lieu.

La maison jumelée fait référence à la remise qui se trouvait autrefois au même endroit et transpose sa typologie dans un langage architectural épuré et contemporain. Le corps du bâtiment est entièrement recouvert d’un lattis en bois et est structuré par quatre découpes placées avec précision, qui se dessinent subtilement dans une teinte grise. Toutes les ouvertures sont conçues comme des niches en retrait et équipées de volets coulissants, ce qui crée une façade calme et homogène.

Le projet de Fox Wälle Architekten a été soumis dans le cadre du Swiss Arc Award 2026 et publié par Nina Farhumand.

218330734