Ortskernüberbauung im Grund

 
4223 Blauen,
Schweiz

Veröffentlicht am 20. April 2026
Fox Wälle Architekten GmbH

Strassenansicht Mehrfamilienhaus Wohnen Mehrfamilienhaus Bad Mehrfamilienhaus Laube Mehrfamilienhaus Strassenansicht Doppeleinfamilienhaus Lichtfang unten Doppeleinfamilienhaus Ost Lichtfang oben Doppeleinfamilienhaus Ost Wohnen Doppeleinfamilienhaus Ost Wohnen Doppeleinfamilienhaus West Küche Doppeleinfamilienhaus West Treppe Doppeleinfamilienhaus West Masterbad Doppeleinfamilienhaus West Bad Doppeleinfamilienhaus West Luftperspektive Wohnüberbauung

Projektdaten

Basisdaten

Lage des Objektes
Dorfstrasse 13, Im Grund 1,3,5, 4223 Blauen, Schweiz
Projektkategorie
Fertigstellung
11.2025
Links

Gebäudedaten nach SIA 416

Stockwerke
3 bis 5
Anzahl Kellergeschosse
1
Anzahl Wohnungen
11
Grundstücksfläche
2768 m²
Geschossfläche
2998 m²
Nutzfläche
2759 m²
Gebäudevolumen
8375 m³
Gebäudekosten (BKP 2)
4,3 Mio. CHF
Parkplätze
13

Beschreibung

Wohnüberbauung «Im Grund», Blauen – das Gedächtnis der Scheune
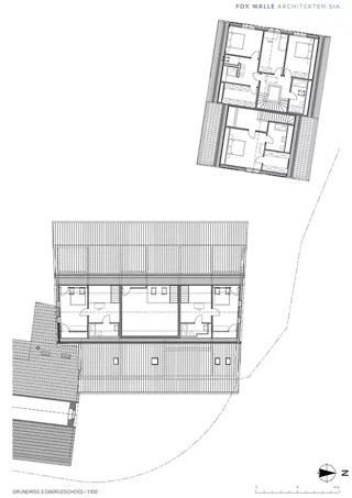
Im geschützten Dorfkern von Blauen war ein schützenswertes Ökonomiegebäude bereits aus Sicherheitsgründen abgebrochen worden. Die Aufgabe war, diese Lücke im Ortsbild zu schliessen, den historischen Kontext zu respektieren und zeitgemässen Wohnraum zu schaffen. Entstanden sind ein Mehrfamilienhaus mit neun Wohnungen als Ersatzbau an der Dorfstrasse sowie ein Doppeleinfamilienhaus in der Hofstatt.

Ausgangspunkt war die Rekonstruktion des verlorenen Volumens anhand archivalischer Quellen und Fotodokumentation. Die prägnante Dreiteilung der ehemaligen Fassade und das markante Scheunentor wurden zum gestalterischen Leitmotiv. Das Mehrfamilienhaus übernimmt die Rolle der Scheune, ohne sie zu kopieren, mit ortsüblichen Elementen, wie traufseitige Dächer, Schlagläden und Putz-Holzmaterialität, jedoch zeitgenössisch neu interpretiert. Das ehemalige Scheunentor lebt als zweigeschossige Verglasung mit Holzlamellen weiter.

Das Doppeleinfamilienhaus in der Hofstatt führt die Materialität des «schwarzen Schopfs» in dunkler Holzverkleidung fort, jedoch reduziert und minimalistisch. Solarziegel integrieren die Photovoltaik unauffällig ins Dach. Die rekonstruierte Obstwiese und ein organisch geformter Pool stärken die historische Hofstruktur. Das Projekt entstand in enger Kooperation mit der kantonalen Denkmalpflege als inhaltlicher Dialog, der die Gestaltungsentscheidungen von der Volumenrekonstruktion bis zur Materialwahl massgeblich mitprägte.

Die Wohnüberbauung «Im Grund» zeichnet sich durch eine Reihe prägnanter architektonischer Besonderheiten aus. Das Mehrfamilienhaus interpretiert die Volumetrie der ehemaligen Scheune in zeitgenössischer Sprache neu. Ein in Holz konzipierter Laubengang an der rückwärtigen Fassade sowie die als Schopf gestaltete Einfahrt zur Autoeinstellhalle ergänzen das Konzept und verankern den Bau sensibel im ortstypischen Kontext.

Das Doppeleinfamilienhaus nimmt Bezug auf den einst an gleicher Stelle stehenden Schuppen und überführt dessen Typologie in eine reduzierte, zeitgemässe Architektursprache. Der Baukörper ist vollständig von einer Holzlattung umhüllt und wird durch vier präzise gesetzte Einschnitte gegliedert, die sich in einem grauen Farbton subtil abzeichnen. Sämtliche Öffnungen sind als vertiefte Nischen ausgebildet und mit Schiebeläden versehen, wodurch ein ruhiges, einheitliches Fassadenbild entsteht.

Das Projekt von Fox Wälle Architekten wurde im Rahmen des Swiss Arc Award 2026 eingereicht und von Nina Farhumand publiziert.

218333029