Centre du village d'Untersiggenthal

 
5417 Untersiggenthal,
Suisse

Publié le 25 mars 2026
NYX Architectes GmbH
Participation au Swiss Arc Award 2026

Données du projet

Données de base

Situation de l'objet
Kornfeldweg 1, 5417 Untersiggenthal, Suisse
Catégorie de projet
Achèvement
09.2023

Données du bâtiment selon SIA 416

Étages
2 étages
Nombre de sous-sols
1 étage
Surface de terrain
7544 m²
Surface de plancher
7150 m²
Surface utile
3412 m²
Volume bâti
44'250 m³
Coûts de construction (BKP 2)
28,7 mio. CHF
Places de parking
74

Description

Untersiggenthal n'avait pas de centre – le projet en crée un
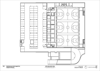
Avec ce nouveau centre villageois, Untersiggenthal se dote pour la première fois d'un cœur clairement délimité. La construction d'une salle polyvalente et d'un gymnase triple entre en dialogue harmonieux avec la maison communale existante et forme avec celle-ci une nouvelle place du village, lieu public dédié à l'administration, à l'école, au sport, à la culture et à la vie communautaire. L'implantation urbaine exploite la profondeur de la parcelle et suit l'orientation des constructions environnantes. Des ouvertures ciblées créent des perspectives visuelles depuis la route cantonale vers l'intérieur du site, rendant ainsi la nouvelle place du village visible et attractive pour le public. La salle polyvalente fait office de vitrine sur la place et permet de découvrir immédiatement la vie intérieure du bâtiment. Le projet est conçu comme un tout cohérent. La salle polyvalente et le gymnase triple sont organisés de manière fonctionnellement autonome, mais partagent des infrastructures centrales. Le foyer constitue le cœur spatial et social du bâtiment : il relie la place du village, la salle polyvalente et la tribune des spectateurs, et permet des utilisations flexibles et simultanées. Un zonage clair et des circulations courtes garantissent une grande praticité au quotidien pour l'école, les associations et les manifestations. L'approche architecturale repose sur la clarté constructive et la logique des matériaux. Le béton forme l'enveloppe robuste et durable, tandis que le bois caractérise la structure porteuse, les espaces intérieurs et les façades. Les charpentes porteuses en bois des salles créent un ordre rythmique et une atmosphère chaleureuse. La structure porteuse, les façades et le sol des salles sont en bois régional, ce dernier provenant de la forêt d'Untersiggenthal elle-même. Le centre du village a été réalisé dans le cadre d’un processus démocratique largement soutenu. Les crédits de conception et de construction ont été approuvés par référendum. Il en résulte un lieu durable, porteur d’identité, qui allie qualité spatiale, durabilité et ancrage social. 

Programme de construction
Le défi consistait à créer un centre spatialement défini pour une commune dépourvue de centre-ville clairement identifié, tout en réunissant les services administratifs, l'école, les installations sportives et culturelles au sein d'un ensemble commun forgeant une identité.

Concept
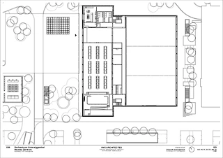
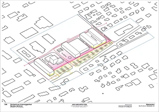
Le projet se veut un ensemble urbain et architectural cohérent. La construction d’une salle polyvalente et d’un gymnase triple, associée à la maison communale existante, forme une nouvelle place de village et devient ainsi un lieu public central pour la vie communautaire.

Site et existant
L’implantation tire parti de la profondeur de la parcelle et suit l’orientation des constructions existantes. La maison communale existante est non seulement respectée, mais aussi activement intégrée au nouveau centre. Des perspectives depuis la route cantonale rendent la place du village visible dans le tissu urbain.

Utilisateurs et public
Le bâtiment est conçu pour accueillir simultanément et de manière variée les activités de l’école, des associations, de l’administration et du public. Le foyer central facilite l’orientation, les rencontres et la fluidité des flux au quotidien comme lors d’événements.

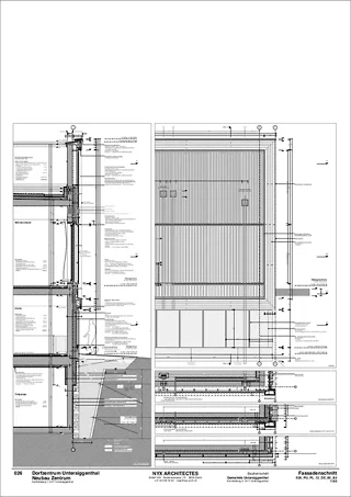
Construction et matériaux
Le béton et le bois forment un système constructif clairement lisible. Le béton assure la structure de base robuste, tandis que le bois caractérise la charpente, les façades et les espaces intérieurs. L’utilisation de bois régional allie qualité spatiale, durabilité et valeur ajoutée locale.

Processus
Le projet a été élaboré dans le cadre d'un processus bénéficiant d'un large soutien démocratique et a été légitimé par des référendums. Cet ancrage social constitue un élément essentiel de son identité.

Le projet de NYX Architectes a été présenté dans le cadre du Swiss Arc Award 2026 et publié par Nina Farhumand.

214526673