Dorfzentrum Untersiggenthal

 
5417 Untersiggenthal,
Schweiz

Veröffentlicht am 25. März 2026
NYX Architectes GmbH
Teilnahme am Swiss Arc Award 2026

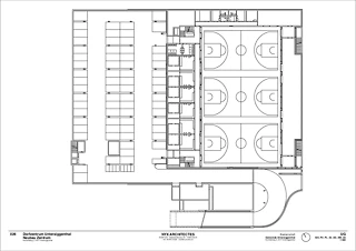
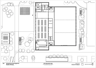
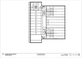
Neues Dorfzentrum mit Mehrzweckhalle und Dorfplatz als öffentliche Mitte von Untersiggenthal Der Neubau bildet zusammen mit dem Bestand einen klar gefassten Dorfplatz Überdeckter Aussenraum als Erweiterung des öffentlichen Lebens Erdgeschosszone verbindet Innenraum und Dorfplatz Volumetrie und Fassadengliederung im Dialog mit dem Kontext Foyer als räumliches und soziales Zentrum Holzverkleidungen mit integrierten Funktionen strukturieren den Innenraum Vorhangartige Trennwand zwischen Foyer und Mehrzweckhalle, flexibel und akustisch wirksam Mehrzweckhalle als offener Raum für Kultur und Gemeinschaft Treppenraum als präzise geführte räumliche Sequenz Sichtbeton und gezielte Öffnungen strukturieren den Raum Dreifachsporthalle als grosser, klar strukturierter Raum Innenraum mit sichtbarer Tragstruktur und differenzierter Materialität Garderobenräume mit robuster Materialisierung und bewusst reduziertem Materialeinsatz Erschliessungsraum der Garderoben mit gezielten Blickbezügen zur Sporthalle

Projektdaten

Basisdaten

Lage des Objektes
Kornfeldweg 1, 5417 Untersiggenthal, Schweiz
Projektkategorie
Fertigstellung
09.2023
Links

Gebäudedaten nach SIA 416

Stockwerke
2
Anzahl Kellergeschosse
1
Grundstücksfläche
7544 m²
Geschossfläche
7150 m²
Nutzfläche
3412 m²
Gebäudevolumen
44'250 m³
Gebäudekosten (BKP 2)
28,7 Mio. CHF
Parkplätze
74

Beschreibung

Untersiggenthal hatte kein Zentrum – das Projekt schafft eines
Mit dem neuen Dorfzentrum erhält Untersiggenthal erstmals eine räumlich gefasste Mitte. Der Neubau von Mehrzweckhalle und Dreifachsporthalle tritt in einen präzisen Dialog mit dem bestehenden Gemeindehaus und formt gemeinsam mit diesem einen neuen Dorfplatz als öffentliche Adresse für Verwaltung, Schule, Sport, Kultur und das gemeinschaftliche Leben. Die städtebauliche Setzung nutzt die Tiefe der Parzelle und folgt der Orientierung der umgebenden Bebauung. Durch gezielte Öffnungen werden Blickbeziehungen von der Kantonsstrasse ins Innere des Areals geschaffen, wodurch der neue Dorfplatz sichtbar und öffentlich wirksam wird. Die Mehrzweckhalle fungiert dabei als Schaufenster zum Platz und macht das Innenleben des Hauses unmittelbar erlebbar. Das Projekt ist als integrales Ganzes konzipiert. Mehrzweckhalle und Dreifachsporthalle sind funktional eigenständig organisiert, teilen jedoch zentrale Infrastrukturen. Das Foyer bildet das räumliche und soziale Zentrum: Es verbindet Dorfplatz, Mehrzwecksaal und Zuschauergalerie und ermöglicht flexible, gleichzeitige Nutzungen. Klare Zonierungen und kurze Wege gewährleisten eine hohe Alltagstauglichkeit für Schule, Vereine und Veranstaltungen. Die architektonische Haltung basiert auf konstruktiver Klarheit und Materiallogik. Beton bildet das robuste, dauerhafte Gehäuse, während Holz Tragstruktur, Innenräume und Fassaden prägt. Die tragenden Holzrahmen der Hallen erzeugen eine rhythmische Ordnung und eine warme räumliche Atmosphäre. Tragstruktur, Fassaden und der Hallenboden bestehen aus regionalem Holz, letzterer aus dem Wald von Untersiggenthal selbst. Das Dorfzentrum wurde in einem breit abgestützten demokratischen Prozess realisiert. Projektierungs- und Baukredit wurden in Volksabstimmungen beschlossen. So entsteht ein langlebiger, identitätsstiftender Ort, der räumliche Qualität, Nachhaltigkeit und gesellschaftliche Verankerung verbindet.

Bauaufgabe
Die Herausforderung bestand darin, für eine Gemeinde ohne klaren Ortskern eine räumlich gefasste Mitte zu schaffen und dabei Verwaltung, Schule, Sport und Kultur in einem gemeinsamen, identitätsstiftenden Ensemble zusammenzuführen.

Entwurfsidee
Das Projekt versteht sich als städtebauliches und architektonisches Ganzes. Der Neubau von Mehrzweckhalle und Dreifachsporthalle bildet zusammen mit dem bestehenden Gemeindehaus einen neuen Dorfplatz und damit eine öffentliche Adresse für das Gemeindeleben.

Standort und Bestand
Die Setzung nutzt die Tiefe der Parzelle und folgt der Orientierung der bestehenden Bebauung. Das bestehende Gemeindehaus wird nicht nur respektiert, sondern aktiv in das neue Zentrum eingebunden. Sichtbezüge von der Kantonsstrasse machen den Dorfplatz im Ortsgefüge sichtbar.

Nutzer*innen und Öffentlichkeit
Das Gebäude ist auf gleichzeitige und unterschiedliche Nutzungen durch Schule, Vereine, Verwaltung und Öffentlichkeit ausgelegt. Das zentrale Foyer ermöglicht Orientierung, Begegnung und flexible Abläufe im Alltag wie auch bei Veranstaltungen.

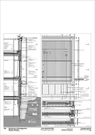
Konstruktion und Material
Beton und Holz bilden ein klar lesbares konstruktives System. Beton übernimmt die robuste Grundstruktur, Holz prägt Tragwerk, Fassaden und Innenräume. Der Einsatz von regionalem Holz verbindet räumliche Qualität, Nachhaltigkeit und lokale Wertschöpfung.

Prozess
Das Projekt wurde in einem demokratisch breit abgestützten Prozess entwickelt und über Volksabstimmungen legitimiert. Diese gesellschaftliche Verankerung ist ein wesentlicher Teil seiner Identität.

Das Projekt von NYX Architectes wurde im Rahmen des Swiss Arc Award 2026 eingereicht und von Nina Farhumand publiziert.

214518750