Immeuble de bureaux et commercial Rösslimatt (parcelles B et C)

 
6005 Luzern,
Suisse

Publié le 16 avril 2026
Demuth Hagenmüller & Lamprecht Architekten GmbH
Participation au Swiss Arc Award 2026

Données du projet

Données de base

Situation de l'objet
Bürgenstrasse 8, 6005 Luzern, Suisse
Type de bâtiment
Achèvement
03.2025

Données du bâtiment selon SIA 416

Étages
de 6 à 10 étages
Nombre de sous-sols
1 étage
Surface de plancher
24'100 m²
Surface utile
21'500 m²

Description

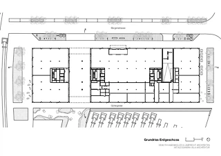
Situé au centre entre la gare de Lucerne et le quartier de Tribschen, le site de Rösslimatt, d’une superficie d’environ 500 hectares, menait jusqu’à récemment une existence discrète: hangars de marchandises, infrastructures ferroviaires et grossiste en fruits façonnaient l’image de ce secteur que l’on traversait pour rejoindre la gare ou le lac tout proche, sans toutefois s’y attarder. Propriétaires du site, les CFF ont décidé dès 2010 de transformer ce terrain en un quartier urbain. Aujourd’hui, les trois premiers éléments constitutifs (îlot A ainsi que les îlots B+C avec le nouvel accès à la gare) ont été réalisés sur la base du masterplan de Rolf Mühlethaler Architekten, et peu à peu, les habitants, employés et étudiants s’approprient ce nouveau morceau de ville. L’immeuble de bureaux et d’activités (îlots B+C) structure l’espace le long du nouvel axe principal du quartier de Rösslimatt, la Bürgenstrasse, et affirme par ses façades pignons des adresses vers les deux côtés de la ville. Un passage sur double hauteur assure la perméabilité du bâtiment et ouvre des vues vers le sud-ouest. À l’avenir, les prochaines étapes du masterplan seront développées ici, au-dessus des voies de garage des CFF. Au niveau du rez-de-chaussée, des surfaces commerciales de tailles variées, accessibles directement depuis le trottoir, animent l’espace public. L’entrée du lobby du locataire principal, sur la Bürgenstrasse, est mise en valeur par un large auvent.

Façade métallique légère
Un socle minéral en basalte sombre constitue la base du bâtiment. Les étages de bureaux supérieurs sont enveloppés d’une structure de verre et de métal. Des éléments préfabriqués, composés de fenêtres et d’allèges, forment la trame de base de la façade. Au premier étage, celle-ci présente une transparence accrue grâce à des vitrages toute hauteur, mettant en scène vers l’extérieur les fonctions plus publiques situées derrière.

Comme élément fédérateur, l’ensemble de la façade est revêtu d’une structure à larges mailles en profils d’aluminium verticaux et horizontaux, qui rythme l’élévation. L’écartement progressif de cette résille par rapport à la façade génère une stratification horizontale, encore accentuée lorsque les protections solaires textiles sont déployées. Les reflets changeants des profils d’aluminium anodisés clairs et foncés, combinés au jeu d’ombre et de lumière, confèrent à l’édifice une expression légère, en constante évolution au fil du jour et des saisons.

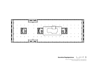
Atrium central baigné de lumière
Le cœur du bâtiment est constitué par un atrium central éclairé naturellement par des verrières circulaires en toiture. Véritable espace de liaison et de représentation, il établit une continuité visuelle et spatiale entre les niveaux, tout en offrant aux collaborateurs des parcours courts et une orientation aisée. Au premier étage, le sol de l’atrium se transforme en plaza publique. Lors d’événements, celle-ci devient une scène visible depuis les galeries supérieures.

Usage flexible et balcons végétalisés
La structure simple du bâtiment, composée de poteaux préfabriqués en béton disposés sur une trame de 5,40 × 5,40 mètres, de dalles plates en béton et de trois noyaux de contreventement, garantit une grande flexibilité d’usage. Les noyaux sont positionnés de manière à permettre, à chaque étage, différentes subdivisions des surfaces de bureaux. L’immeuble peut ainsi s’adapter durablement à l’évolution des besoins. À chaque niveau, un espace extérieur végétalisé est aménagé de chaque côté du bâtiment, invitant au travail en plein air ou à la pause.

Aménagements extérieurs accueillants
Une nouvelle rangée de féviers d’Amérique longe l’alignement bâti et guide les piétons le long de la Bürgenstrasse, du quartier de Tribschen vers la gare. Aux extrémités du bâtiment, des surfaces rudérales en gazon graveleux ont été aménagées et plantées d’arbustes indigènes, de vivaces sauvages et d’érables planes. À l’ouest, un petit parc a été créé entre la nouvelle construction et le bâti existant, avec des bancs mobiles invitant à la détente et aux rencontres informelles.

Durabilité
Grâce à sa situation centrale, le projet privilégie largement la mobilité douce. L’offre de stationnement en sous-sol a été réduite au minimum. En contrepartie, un vaste local à vélos avec casiers et vestiaires a été aménagé au rez-de-chaussée. Le bâtiment se distingue par une très grande efficacité de surface: trois noyaux d’escaliers suffisent à desservir plus de 3 000 mètres carrés de plancher par étage. L’atrium central couvert, éclairé par des verrières zénithales, favorise un excellent apport de lumière naturelle tout en limitant les pertes thermiques grâce à une enveloppe compacte. Les besoins énergétiques pour le chauffage et le refroidissement sont entièrement couverts par la centrale énergétique voisine d’Inseliquai d’EWL Luzern, qui utilise l’eau du lac des Quatre-Cantons. Sur la toiture extensivement végétalisée, 496 modules photovoltaïques d’une puissance totale de 213 kWp ont été installés. L’ensemble du périmètre concerné par le plan d’aménagement est certifié site à 2000 watts.

Le projet de Demuth Hagenmüller & Lamprecht Architekten et Alessandra Villa Architektur a été soumis dans le cadre du Swiss Arc Award 2026 et publié par Nina Farhumand.

Produits de construction utilisés

217645142