Büro- und Gewerbehaus Rösslimatt (Baufelder B und C)

 
6005 Luzern,
Schweiz

Veröffentlicht am 16. April 2026
Demuth Hagenmüller & Lamprecht Architekten GmbH + Alessandra Villa Architektur
Teilnahme am Swiss Arc Award 2026

Projektdaten

Basisdaten

Lage des Objektes
Bürgenstrasse 8, 6005 Luzern, Schweiz
Fertigstellung
03.2025
Links

Gebäudedaten nach SIA 416

Stockwerke
6 bis 10
Anzahl Kellergeschosse
1
Geschossfläche
24'100 m²
Nutzfläche
21'500 m²

Beschreibung

Das zentral zwischen Bahnhof Luzern und Tribschenquartier gelegene, rund 500 Hektaren grosse Rösslimatt-Areal fristete bis vor Kurzem ein unscheinbares Dasein: Güterschuppen, Infrastrukturbauten und ein Obstgrosshändler prägten das Bild des Gebiets, durch das man zwar den Bahnhof und den nahe gelegenen See erreichte, wo man sich jedoch nicht länger aufhielt. Die SBB als Eigentümerin des Areals haben sich ab 2010 entschieden, das Gelände in ein urbanes Quartier zu verwandeln. Nun sind die ersten drei Bausteine (Baufeld A und Baufelder B+C inklusive erneuertem Zugang zum Bahnhof) auf der Grundlage des Masterplans von Rolf Mühlethaler Architekten fertiggestellt, und nach und nach eignen sich die Menschen, die im Quartier wohnen, arbeiten oder studieren, den neuen Stadtteil an.

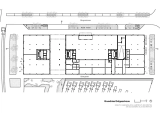
Das Büro- und Gewerbehaus (Baufelder B+C) fasst den Raum entlang der neuen Haupterschliessungsachse im Rösslimattgebiet, der Bürgenstrasse, und bildet mit seinen Stirnseiten Adressen zu beiden Stadtseiten hin aus. Eine doppelgeschossige Passage schafft Durchlässigkeit und den Blick in südwestliche Richtung. In Zukunft werden hier über den Abstellgleisen der SBB die nächsten Bausteine des Masterplans entwickelt. Auf Erdgeschossniveau sind unterschiedlich grosse Gewerbeeinheiten mit direkten Zugängen vom Trottoir angeordnet, welche den Stadtraum beleben. Der Eingang zur Lobby des Hauptmieters an der Bürgenstrasse wird mit einem grossen Vordach akzentuiert.

Leichte Metallfassade
Ein steinerner Sockel aus dunklem Basalt bildet die Basis des Gebäudes. Die darüber liegenden Bürogeschosse werden von einer Struktur aus Glas und Metall umhüllt. Vorfabrizierte Elemente, bestehend aus Fenster und Brüstung, bilden die Grundstruktur der Fassade. Im ersten Obergeschoss weist sie mit raumhohen Verglasungen eine höhere Transparenz auf, wodurch die dahinter liegenden öffentlicheren Funktionen nach aussen getragen werden. Als verbindendes Element wird der gesamten Fassade eine grossmaschige Struktur aus vertikalen und horizontalen Aluminiumprofilen vorgehängt, welche die Fassade rhythmisiert. Mit dem stufenweise vergrösserten Abstand zur Fassade entsteht eine horizontale Gliederung, welche noch akzentuiert wird, wenn bei Sonne die textile Beschattung ausgefahren wird. Die Fassade erzeugt durch die changierenden Lichtreflexionen der hell und dunkel eloxierten Aluminiumprofile sowie das Spiel aus Licht und Schatten einen leichten Ausdruck, der sich im Laufe der Tages- und Jahreszeiten stets verändert.

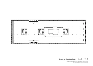
Helles, zentrales Atrium
Das Herzstück des Gebäudes bildet das zentral gelegene Atrium, das durch kreisrunde Oberlichter hell belichtet ist. Als verbindende, repräsentative Zone stellt es die visuelle und räumliche Verbindung über die Geschosse hinweg her und ermöglicht den Mitarbeitenden kurze Wege und eine gute Orientierung. Im ersten Obergeschoss wird der Boden des Atriums zur öffentlichen Plaza. Bei Events verwandelt sich diese zur Bühne mit guter Einsehbarkeit von den oberen Rängen.

Flexible Nutzung und begrünte Balkone
Die einfache Struktur des Gebäudes aus vorfabrizierten Betonstützen im Raster von 5,4 × 5,4 Metern mit Betonflachdecken und drei aussteifenden Kernen gewährleistet eine hohe Nutzungsflexibilität. Die Kerne sind so gesetzt, dass pro Geschoss unterschiedlich unterteilbare Büroeinheiten möglich sind. So wird gewährleistet, dass sich das Gewerbehaus dem Wandel der Zeit stets anpassen kann. Auf jedem Geschoss ist pro Gebäudeseite ein begrünter Aussenraum angelegt, der zum Arbeiten im Freien oder als Pausenort einlädt.

Einladende Umgebung
Eine neue Baumreihe aus Gleditschien folgt der Gebäudeflucht und führt die Fussgänger*innen entlang der Bürgenstrasse vom Tribschenquartier zum Bahnhof. An den Stirnseiten des Gebäudes sind je Ruderalflächen als Kiesrasen angelegt und mit einheimischen Sträuchern, Wildstauden und Spitzahorn bepflanzt. Im Westen wurde zwischen Neubau und Bestand ein kleiner Park mit mobilen Sitzbänken angelegt, der zur Erholung und zu informellen Treffen einlädt.

Nachhaltigkeit
Durch die zentrale Lage des Gebäudes konnte vorwiegend auf sanfte Mobilität gesetzt werden. Das Parkplatzangebot im Untergeschoss ist minimal. Als Ausgleich dazu wurde im Erdgeschoss ein grosser Veloraum mit Schliessfächern und Umkleideräumen erstellt. Das Gebäude zeichnet sich durch eine sehr hohe Flächeneffizienz aus: Drei Treppenkerne reichen aus, um insgesamt über 3000 Quadratmeter Grundfläche pro Geschoss zu erschliessen. Das gedeckte, zentrale Atrium mit Oberlichtern sorgt für eine gute Tageslichtnutzung und minimiert gleichzeitig die Wärmeverluste durch eine geringe Hüllfläche. Der Energiebedarf für Heizen und Kühlen des Gebäudes wird komplett von der nahe gelegenen Energiezentrale Inseliquai des EWL geliefert, welche dazu Wasser des Vierwaldstättersees nutzt. Auf der extensiv begrünten Dachfläche wurden 496 PV-Module mit einer Leistung von 213 kWp installiert. Das gesamte Gebiet des Gestaltungsplans ist als 2000-Watt-Areal zertifiziert.

Das Projekt von Demuth Hagenmüller & Lamprecht Architekten mit Alessandra Villa Architektur wurde im Rahmen des Swiss Arc Award 2026 eingereicht und von Nina Farhumand publiziert.

224577363