Immeuble d’habitation La Vetta

 
6490 Andermatt,
Suisse

Publié le 30 mars 2026
SLIK Architekten GmbH
Participation au Swiss Arc Award 2026

Données du projet

Données de base

Situation de l'objet
Furkagasse 6, 6490 Andermatt, Suisse
Catégorie de projet
Type de bâtiment
Achèvement
12.2024

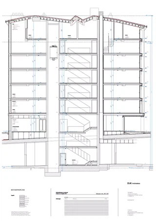
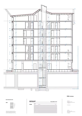
Données du bâtiment selon SIA 416

Étages
de 6 à 10 étages
Nombre de sous-sols
1 étage
Nombre d'appartements
18
Surface de terrain
410 m²
Surface de plancher
3490 m²
Surface utile
2485 m²
Volume bâti
12'590 m³
Coûts de construction (BKP 2)
13,0 mio. CHF

Description

L’immeuble d’habitation La Vetta rompt avec le caractère ludique des bâtiments environnants et s’inscrit dans une architecture réduite et moderniste en contexte alpin. Il existe de nombreuses références à cet égard, à différentes échelles. Parmi les premiers exemples figurent les constructions de Clemens Holzmeister, mais aussi des structures de grande échelle, par exemple celles de Charlotte Perriand. Elles montrent comment des formes abstraites peuvent dialoguer avec des paysages rocheux façonnés par la nature. La façade, avec sa surface en bois, indique que l’ensemble du bâtiment au-dessus du socle en pierre est une construction en bois. Les matériaux naturels, utilisés avec retenue, soulignent le volume, clairement structuré par diverses découpes pour les fenêtres et les loggias. À l’intérieur également, l’expression extérieure se prolonge. Des matériaux naturels et nobles, des textures douces et du mobilier artisanal créent un environnement à la fois original et élégant. Le caractère du style alpin traditionnel est enrichi d’une subtile touche d’élégance, qui confère à l’ensemble une atmosphère sophistiquée et raffinée. L’immeuble La Vetta à Andermatt Reuss comprend au total 18 appartements de 3,5, 4,5 et 5,5 pièces. Le rez-de-chaussée accueille une surface commerciale ainsi qu’un espace spa/fitness destiné aux résident·e·s. Le projet, conçu en 2011, a pu être réalisé tel que nous l’avions imaginé en tant que jeunes architectes, grâce aux avancées significatives de la construction en bois au cours des dernières années, sans nécessiter d’adaptations majeures.

Le projet de SLIK Architekten a été soumis dans le cadre du Swiss Arc Award 2026 et publié par Nina Farhumand.

222161943