Mehrfamilienhaus La Vetta

 
6490 Andermatt,
Schweiz

Veröffentlicht am 30. März 2026
SLIK Architekten GmbH
Teilnahme am Swiss Arc Award 2026

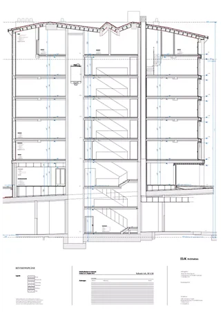
Südwestfassade Furkagasse Nordostfassade Furkagasse Blick durch Gasse Küche Attikawohnung Sitzplatz Attikawohnung Wohnraum Attikawohnung Ausblick Attikawohnung Schlafzimmer Sitzplatz Attikawohnung Loggia unter Dach Treppenhaus Küche 3-Zi-Wohnung Typ 1 Küche 3-Zi-Wohnung Typ 2

Projektdaten

Basisdaten

Lage des Objektes
Furkagasse 6, 6490 Andermatt, Schweiz
Projektkategorie
Fertigstellung
12.2024
Links

Gebäudedaten nach SIA 416

Stockwerke
6 bis 10
Anzahl Kellergeschosse
1
Anzahl Wohnungen
18
Grundstücksfläche
410 m²
Geschossfläche
3490 m²
Nutzfläche
2485 m²
Gebäudevolumen
12'590 m³
Gebäudekosten (BKP 2)
13,0 Mio. CHF

Beschreibung

Das Mehrfamilenhaus La Vetta bricht mit der Verspieltheit der es umgebenden Gebäude und lehnt sich an eine reduzierte, modernistische Architektur im alpinen Raum an. Dafür gibt es zahlreiche Vorbilder in verschiedenen Massstäben. Frühe Beispiele wären die Bauten von Clemens Holzmeister, aber auch grossmassstäbliche Strukturen, zum Beispiel von Charlotte Perriand. Sie zeigen auf, wie abstrakte Formen und von der Natur geformte Felslandschaften zusammenspielen können. Die Fassade mit ihrer Holzoberfläche weist darauf hin, dass das gesamte Gebäude oberhalb des steinernen Sockels eine Holzkonstruktion ist. Die zurückhaltend eingesetzten, naturbelassenen Materialien betonen das Volumen, welches von diversen Einschnitten für Fenster und Loggien klar gegliedert wird. Auch im Inneren setzt sich die äussere Erscheinung fort. Natürliche und edle Materialien, weiche Texturen und handgefertigte Möbel schaffen eine originelle und elegante Umgebung. Der Charakter des traditionellen alpinen Stils wird mit einem subtilen Hauch von Eleganz bereichert, der eine anspruchsvolle und raffinierte Atmosphäre schafft. Das Mehrfamilienhaus La Vetta in Andermatt Reuss beherbergt insgesamt 18 Wohnungen mit 3,5-, 4,5- und 5,5-Zimmern. Im Erdgeschoss gibt es eine Retailfläche und einen Spa-/Fitness-Bereich für die Bewohner*innen. Der Entwurf stammt von 2011 und konnte dank der grossen Fortschritte im Holzbau in den letzten Jahren ohne grosse Anpassungen so umgesetzt werden, wie wir ihn als junge Architekt*innen geplant hatten.

Das Projekt von SLIK Architekten wurde im Rahmen des Swiss Arc Award 2026 eingereicht und von Nina Farhumand publiziert.

222128294