Pavillion Tilia

 
8462 Rheinau,
Suisse

Publié le 15 avril 2026
Eglin Partner Architekten AG
Participation au Swiss Arc Award 2026

Données du projet

Données de base

Situation de l'objet
Alleestrasse 79, 8462 Rheinau, Suisse
Catégorie de projet
Achèvement
06.2024

Données du bâtiment selon SIA 416

Étages
1
Nombre d'appartements
1
Surface de terrain
633 m²
Surface de plancher
141 m²
Surface utile
108 m²
Volume bâti
535 m³
Coûts de construction (BKP 2)
1,3 mio. CHF
Nombre de postes de travail
1
Nombre de lits
1

Description

L'ensemble du complexe de l'établissement psychiatrique est reconnu comme un site classé d'importance suprarégionale. Une unité d'hébergement autonome, sécurisée et accessible aux personnes à mobilité réduite a été créée mi-2024 pour les personnes nécessitant une prise en charge particulièrement intensive. Les pièces sont équipées et aménagées de manière à ce que le calme et la sécurité soient immédiatement perceptibles. Le projet allie des exigences élevées en matière de fonctionnalité et de prise en charge thérapeutique, tout en préservant avec la plus grande sensibilité le patrimoine architectural historique et son environnement – une interaction réussie entre protection, bienveillance et respect de l’environnement. La mission s’inscrit dans le cadre d’un contrat-cadre et comprend la gestion des phases SIA 31 à 33 ainsi que la direction artistique.

Une implantation discrète dans le site existant
Le nouveau pavillon du cadre d’accueil spécialisé Tilia entre en dialogue harmonieux avec la nature, presque sans intervention sur le terrain. Il s’intègre entre les arbres existants et repose sur des fondations à vis, ce qui permet de limiter au minimum les interventions dans le sol et de préserver les arbres sans les perturber.
Soigneusement positionné entre les arbres, le pavillon s’aligne également sur les axes des bâtiments voisins et s’intègre ainsi harmonieusement dans la structure existante. Il s’intègre ainsi entre les bâtiments existants et se trouve juste à côté des groupes d’habitation.

Matérialité
La matérialité des bâtiments existants – leur texture et leur effet de profondeur –, associée aux interventions planes et marquantes sur les façades, constitue le point de départ conceptuel de l'étude des matériaux du pavillon. Ce principe est ici prolongé et rendu tangible par la façade en bois; le concept est ainsi développé de manière cohérente: L'environnement naturel du pavillon définit la matérialité et la palette de couleurs, de sorte que le bois et les teintes s'intègrent en douceur dans le cadre et s'y fondent.
Les lattes de bois naturel, qui soulignent la texture et la profondeur de la façade, acquièrent une nouvelle dimension selon l'angle de vue, se densifient pour former des surfaces et entrent ainsi dans un dialogue continu avec les bâtiments existants. Les éléments de façade teintés en rouge font référence aux bâtiments en briques et aux toits, sont réinterprétés et mis en œuvre dans la façade comme des éléments de conception autonomes et marquants, tout en formant délibérément un contraste avec la palette de couleurs terreuses.

Un havre de paix
À l'intérieur, l'accent n'est pas mis sur la combinaison de différents langages architecturaux, mais sur la création d'un effet spatial aussi subtil et discret que possible, qui place l'humain au centre. Il est essentiel de concevoir des espaces peu stimulants et de les adapter de manière ciblée aux besoins des utilisateurs.
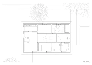
L'aménagement intérieur s'appuie sur une palette naturelle de tons bois et blancs. Les surfaces et les arêtes sont conçues de manière à prévenir les blessures et à garantir la sécurité des résidents. Tous les équipements sont fixés de manière permanente et conçus pour résister au vandalisme. Avec l'espace réservé au personnel soignant, cela constitue une base solide pour la salle à manger avec coin cuisine, ainsi que pour les chambres privées, les salles d'eau et l'espace de détente, qui offrent aux résidents le calme et la sécurité dont ils ont besoin.

Le projet a été soumis par Eglin Partner Architekten pour le Swiss Arc Award 2026 et publié par Jørg Himmelreich.

224435486