Salle polyvalente de Grüsch

 
7214 Grüsch,
Suisse

Publié le 15 avril 2026
raumfindung architekten gmbh
Participation au Swiss Arc Award 2026

Données du projet

Données de base

Catégorie de projet
Achèvement
03.2026

Données du bâtiment selon SIA 416

Étages
2 étages
Nombre de sous-sols
1 étage

Description

Un campus scolaire diversifié au coeur du village
Le nouveau bâtiment de salle renforce l’identité du site scolaire et affirme une adresse forte au centre de Grüsch. La nouvelle construction est implantée à l’est du périmètre. Elle permet de définir spatialement une vaste cour d’école comme centre du site. L’ancienne école et la mairie demeurent les protagonistes de l’ensemble scolaire. Malgré ses dimensions, le nouveau bâtiment s’inscrit avec retenue face aux maisons patriciennes crépies grâce à sa matérialisation en bois et à sa hauteur volontairement contenue.

Au sud, le bâtiment propose un portique continu sur toute sa longueur. Ces espaces extérieurs couverts sont précieux pour la vie scolaire quotidienne comme pour les usages en soirée de la salle. La scène est orientée vers la nouvelle cour d’école. Il en résulte une triple utilisation de l’espace scénique: au quotidien, la scène sert d’espace intérieur à part entière et bien éclairé; lors de manifestations, elle peut être utilisée soit du côté de la salle de sport, soit en direction de la cour comme scène extérieure couverte. Grâce à cette disposition, l’usage est très flexible et le nouveau bâtiment se prête à des occupations extrêmement variées. À la place de l’ancienne salle de gymnastique, implantée près du bâtiment scolaire existant, prend place une généreuse cour d’école dotée d’arbres identitaires, d’une fontaine et de zones assises.

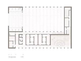
Organisation des usages et projet architectural
Les espaces publics à forte fréquentation se situent au rez-de-chaussée. L’accès principal se fait par la façade longitudinale, sous le portique, créant une adresse lisible depuis deux côtés. Le foyer accueillant, qui peut s’ouvrir sur toute sa longueur vers le portique, se raccorde de l’autre côté à la salle grâce à une large façade composée de portes ouvrantes. La cuisine-office peut servir aussi bien le foyer que l’extérieur, ce qui constitue un avantage lors de différents événements. Lors de manifestations scolaires ou théâtrales, le local des accessoires sur l’entresol et la salle associative peuvent être utilisés comme espaces backstage et d’échauffement, offrant ainsi une grande flexibilité au bâtiment. Depuis le local des accessoires, un accès couvert à la scène est également possible. Les autres espaces tels que vestiaires, vestiaires des enseignants et salle associative se trouvent à l’étage.

Grâce à la coupe de la toiture, le volume bâti adopte des proportions à l’échelle et s’intègre harmonieusement à l’ensemble existant de l’école primaire et de ses environs. Au sud-est, un parking souterrain offre de nouvelles places devenues nécessaires avec l’augmentation du nombre d’utilisateurs. L’accès se fait par une rampe existante au sud. Le nouveau parking est relié au sous-sol de la salle polyvalente, tandis que l’espace libre au-dessus est aménagé en zone extérieure végétalisée. Il en résulte une adresse accueillante et une cour d’école dotée d’une forte identité.

Aménagements extérieurs et lien avec l'espace villageois
La nouvelle salle polyvalente complète l’ensemble scolaire comme un solitaire discret et secondaire. L’implantation du volume crée différents espaces de pause aux qualités variées. Grâce au portique continu, une zone de récréation protégée des intempéries est proposée. La nouvelle cour est plantée d’arbres à haute tige et florifères. Des espaces de jeu protégés et sans circulation y prennent place.

La place située entre l’école et la nouvelle salle polyvalente est conçue comme un espace ouvert et multifonctionnel. Elle accueille les jeux libres et les jeux de balle pendant les pauses. En même temps, elle peut servir d’espace public extérieur lors de spectacles en plein air. De manière générale, les cheminements des élèves sont clairement séparés des circulations motorisées et du stationnement. Sécurité, lisibilité et qualité des espaces extérieurs vont ici de pair.

Scénarios d’usage flexibles avec scène extérieure
La nouvelle salle polyvalente Fundus est équipée d’une scène modulable pouvant être séparée. La salle de sport est utilisée de jour principalement par l’école et le soir par les clubs sportifs. Pour des manifestations polyvalentes, l’espace scénique peut s’ouvrir sur la salle, mais il peut aussi fonctionner comme espace indépendant.

La scène dispose d’un cadre de scène de 10 mètres de largeur et de 5 mètres de hauteur, adapté à de nombreux événements. Elle est utilisable des deux côtés: d’une part comme scène frontale conventionnelle avec le public dans la salle de sport, d’autre part comme scène extérieure avec le public en plein air dans la cour d’école. Le concept permet une grande diversité d’usages: manifestations, concerts, activités scolaires, assemblées communales, théâtre, cinéma ou théâtre en plein air. Les équipements scéniques sont dimensionnés en conséquence. Cette particularité d’une scène utilisable également depuis l’extérieur est rendue possible par sa double orientation. Ainsi, la cour située entre l’école et la salle polyvalente devient, selon les scénarios d’usage, un espace extérieur précieux et enrichissant. En même temps, la façade de scène tournée vers l’école apparaît accueillante, ouverte et orientée vers le site.

Étage fonctionnel
Les vestiaires, locaux annexes fonctionnels et la salle associative se trouvent à l’étage. Les circulations bénéficient d’un abondant éclairage naturel grâce à de larges ouvertures et l’orientation y est simple. Selon le principe du sas de propreté, les vestiaires organisent l’usage de la salle de sport entre zones propres et zones salissantes. Depuis la galerie, la vue sur la salle est possible et crée des relations visuelles intéressantes. La salle associative est mise à disposition des associations de Grüsch comme espace neutre et polyvalent. L’équipement multimédia permet également d’y tenir des assemblées. Les niches aménagées le long de la façade documentent l’histoire de la commune de Grüsch et de la salle polyvalente.

Construction en bois
Le bâtiment de la halle a été conçu selon les exigences Minergie-P et réalisé en construction préfabriquée en bois. Cela a permis de réduire au maximum la durée du chantier sur le site scolaire: les éléments en bois préfabriqués ont été montés sur place en quelques semaines seulement, tout en garantissant une réalisation économique. L’enveloppe du bâtiment est constituée d’éléments en bois fortement isolés, tandis que la toiture est réalisée sous forme de toit incliné durable. Les fenêtres bois-métal sont équipées d’un triple vitrage isolant. Dans la salle, de généreux sheds orientés au nord apportent une abondante lumière naturelle. Le bâtiment en éléments bois est revêtu d’un bardage ventilé en bois durable, adapté au contexte local. Les lésènes verticales, les panneaux en lambris brut non collé à rainure et languette ainsi que les revêtements intérieurs sont réalisés en épicéa local issu de la forêt de Grüsch. Un couronnement périphérique de toiture relie architecturalement les bâtiments existants du site et la nouvelle salle polyvalente en un ensemble cohérent.

Structure porteuse, protection contre l'incendie et flexibilité d'utilisation
Le concept de base repose sur une trame simple avec un entraxe économique adapté à la construction en bois. La structure porteuse est conçue en bois. Les efforts horizontaux dus aux séismes et au vent sont repris par des voiles continus de façade et des murs intérieurs. Des poutres en lamellé-collé statiquement efficientes franchissent la salle polyvalente.

Le sous-sol, la dalle de fondation et le socle du bâtiment sont conçus comme une construction massive monolithique. Les murs extérieurs et intérieurs, la dalle sur rez-de-chaussée ainsi que la toiture sont réalisés en éléments préfabriqués en bois. Il en résulte une construction durable et nécessitant peu d’entretien, les charges étant transmises uniformément au terrain par des fondations superficielles.

Techniques du bâtiment et toitures végétalisées
Le bâtiment est certifié Minergie-P. Une installation photovoltaïque en surimposition est installée sur la toiture. La production de chaleur et d’eau chaude est assurée par une chaudière à pellets située dans l’école primaire existante. Le raccordement au nouveau bâtiment s’effectue par une nouvelle conduite de chauffage à distance enterrée reliant le local technique existant au nouvel édifice.

Création de valeur locale pour la région
En raison de son ampleur, le projet a été soumis au droit fédéral des marchés publics ainsi qu’à la réglementation GATT/WTO. L’analyse de la répartition géographique des entreprises impliquées montre qu’une grande partie des prestations de construction a été réalisée dans la région. De nombreux artisans, et notamment les principaux mandats tels que les travaux de maçonnerie, l’excavation et la construction en bois, ont été attribués à des entreprises implantées localement. Au total, 71 pour cent des mandats artisanaux ont été confiés à des entreprises des districts de Prättigau et Landquart.

Culture du bâti comme catalyseur
Cette forte création de valeur régionale est l’expression d’une attitude architecturale. Les matériaux proviennent autant que possible de l’environnement local dans une logique de préservation des ressources et ont été mis en œuvre selon des méthodes artisanales traditionnelles: gravier pour le béton provenant de l’usine Tardis à Landquart, bois issu de la forêt de Grüsch (construction en bois certifiée), ainsi que fontaine en pierre et dalles en pierre naturelle provenant d’Andeer. En ce sens, la culture du bâti soutient non seulement la culture elle-même, mais aussi l’économie régionale et l’artisanat traditionnel. Il en résulte un cycle bénéfique à tous, au service de la création de valeur locale et de l’identité.

Bois issu de la forêt de Grüsch
En tant que mesure identitaire, il importait à la commune de Grüsch que, hormis le bois de construction indisponible dans la forêt locale, tout le bois provienne de celle-ci. Ainsi, le bois destiné à l’ensemble des revêtements intérieurs et extérieurs, aux lattages de fixation de la façade ainsi qu’à la structure porteuse principale a été prélevé dans la forêt de Grüsch; il s’agit d’épicéa. Les arbres ont été abattus au printemps 2024. Une coupe de bois était de toute façon prévue dans le secteur de Bawald, ce qui a permis de coordonner les travaux avec la réalisation de la nouvelle salle polyvalente. Pour les éléments certifiés (structure porteuse principale, façade, revêtements intérieurs), la part de bois suisse dans la salle polyvalente atteint 92 pour cent et répond ainsi aux exigences du label CH-Holz.

Le projet de raumfindung architekten a été soumis dans le cadre du Swiss Arc Award 2026 et publié par Nina Farhumand.

217475670