Salle polyvalente d'Hitzkirch

 
6285 Hitzkirch,
Suisse

Publié le 26 mars 2026
NYX Architectes GmbH
Participation au Swiss Arc Award 2026

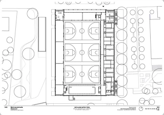
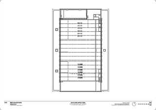
Salle principale avec charpente en bois et tribune centrale Intégration de la salle polyvalente dans le site scolaire existant Cette disposition renforce l'axe nord-sud et la succession des espaces extérieurs Construction d'une salle polyvalente à triple usage dotée d'une façade métallique à structure horizontale Le foyer, espace de transition entre l'extérieur et le hall La charpente en bois structure l'espace du hall et en façonne l'atmosphère La lumière naturelle et le bois caractérisent l'atmosphère des pièces La salle polyvalente: un lieu dédié à l'école, au sport et à la vie communautaire La lumière naturelle et la charpente en bois façonnent l'atmosphère des lieux La scène et la salle permettent de multiples utilisations La scène et la salle offrent de multiples possibilités d'utilisation pour l'école et la commune Façade métallique présentant une texture de surface variée et une réflexion de la lumière

Données du projet

Données de base

Situation de l'objet
Industriestrasse 4/b, 6285 Hitzkirch, Suisse
Catégorie de projet
Achèvement
12.2025

Données du bâtiment selon SIA 416

Étages
2 étages
Nombre de sous-sols
1 étage
Surface de terrain
8240 m²
Surface de plancher
5428 m²
Surface utile
3655 m²
Volume bâti
31'856 m³
Coûts de construction (BKP 2)
15,5 mio. CHF
Places de parking
70

Description

Hitzkirch n'avait pas besoin d'un bâtiment, mais d'un espace de vie communautaire
La nouvelle salle polyvalente à trois terrains redéfinit l'organisation spatiale du site scolaire, fruit d'une évolution historique. Situé le long du chemin de l'école, ce nouveau bâtiment renforce l'axe nord-sud existant et s'intègre avec délicatesse dans un environnement hétérogène composé d'habitations, d'un cimetière et d'architecture industrielle. Son implantation crée des espaces extérieurs clairs et cohérents et renforce la succession spatiale existante du site. Au centre se trouve la salle, en tant qu’espace collectif. La succession du foyer, de la salle principale et de la scène forme une structure claire et intuitive qui facilite l’orientation et permet des utilisations variées. La salle principale, avec ses trois terrains de jeu et sa tribune, constitue le centre spatial, tandis que le foyer et la scène ouvrent le bâtiment sur l’espace extérieur et permettent différents scénarios d’utilisation. La qualité architecturale découle de la clarté constructive. Une structure hybride en béton et en bois allie robustesse et légèreté. Le socle massif accueille les zones fortement sollicitées, tandis qu’une charpente en bois à grande portée enjambe la salle et marque l’espace par son ordre rythmique. L’enveloppe du bâtiment s’adapte au contexte hétérogène. Une façade métallique ventilée transpose la structure intérieure vers l’extérieur, reflète la lumière et la végétation et confère au bâtiment une apparence sereine et précise. Il en résulte un lieu durable et polyvalent qui renforce durablement la vie communautaire.

Programme de construction
Le défi consistait à intégrer un triple gymnase de grande envergure dans un environnement hétérogène composé de bâtiments scolaires, d’habitations, d’un cimetière et d’architecture industrielle, tout en créant un lieu identitaire pouvant accueillir diverses utilisations.

Concept
Le projet repose sur une séquence spatiale claire comprenant le foyer, le hall et la scène. Cette organisation linéaire facilite l’orientation, permet des utilisations flexibles et relie l’espace intérieur à l’espace extérieur.

Emplacement et contexte
L’implantation le long du chemin de l’école renforce l’axe nord-sud existant et précise la succession des espaces extérieurs. Le bâtiment fait le lien entre différentes échelles et s'intègre avec sensibilité à son voisinage.

Construction et matériaux
La construction hybride en béton et en bois allie durabilité et qualité spatiale. Tandis que le béton forme les zones de soubassement robustes, la charpente en bois caractérise l'espace intérieur par son ordre rythmique et son atmosphère chaleureuse.

Matériau de la façade
L'enveloppe métallique du bâtiment reflète la lumière et l'environnement et transpose la structure intérieure vers l'extérieur. Elle fait le lien entre les différents langages architecturaux du quartier et confère au bâtiment une présence sereine.

Le projet de NYX Architectes a été présenté dans le cadre du Swiss Arc Award 2026 et publié par Nina Farhumand.

221442467