Mehrzweckhalle Hitzkirch

 
6285 Hitzkirch,
Schweiz

Veröffentlicht am 26. März 2026
NYX Architectes GmbH
Teilnahme am Swiss Arc Award 2026

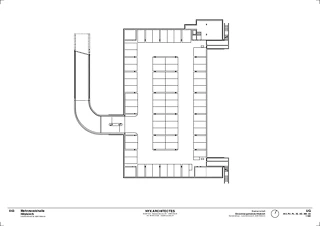
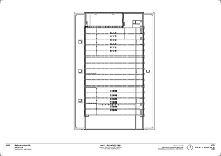
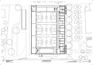
Haupthalle mit Holztragwerk und Zuschauergalerie als zentraler Raum für Sport und Veranstaltungen Einbettung der Mehrzweckhalle in das gewachsene Schulareal Setzung stärkt die Nord-Süd-Achse und die Abfolge der Aussenräume Neubau Dreifach- und Mehrzweckhalle mit horizontal gegliederter Metallfassade Foyer als Übergangsraum zwischen Aussenraum und Halle Holztragstruktur strukturiert den Hallenraum und prägt die Atmosphäre Tageslicht und Holz prägen die räumliche Atmosphäre Die Halle als Ort für Schule, Sport und gemeinschaftliche Nutzung Tageslicht und Holztragstruktur prägen die räumliche Atmosphäre Bühne und Halle ermöglichen vielfältige Nutzungen Bühne und Halle ermöglichen vielfältige Nutzungen für Schule und Gemeinde Metallfassade mit differenzierter Oberflächenstruktur und Lichtreflexion

Projektdaten

Basisdaten

Lage des Objektes
Industriestrasse 4/b, 6285 Hitzkirch, Schweiz
Projektkategorie
Fertigstellung
12.2025
Links

Gebäudedaten nach SIA 416

Stockwerke
2
Anzahl Kellergeschosse
1
Grundstücksfläche
8240 m²
Geschossfläche
5428 m²
Nutzfläche
3655 m²
Gebäudevolumen
31'856 m³
Gebäudekosten (BKP 2)
15,5 Mio. CHF
Parkplätze
70

Beschreibung

Hitzkirch brauchte keinen Bau – sondern einen Raum für Gemeinschaft
Die neue Dreifach- und Mehrzweckhalle verankert das historisch gewachsene Schulareal räumlich neu. Entlang des Schulwegs positioniert, stärkt der Neubau die bestehende Nord-Süd-Achse und fügt sich sensibel in das heterogene Umfeld aus Wohnbauten, Friedhof und Industriearchitektur ein. Die Setzung schafft klare, zusammenhängende Aussenräume und stärkt die bestehende Raumabfolge des Areals. Im Zentrum steht die Halle als kollektiver Raum. Die Abfolge von Foyer, Haupthalle und Bühne bildet eine klare, intuitive Struktur, die Orientierung schafft und vielfältige Nutzungen ermöglicht. Die Haupthalle mit drei Spielfeldern und Zuschauergalerie bildet das räumliche Zentrum, während Foyer und Bühne das Gebäude zum Aussenraum öffnen und unterschiedliche Nutzungsszenarien zulassen. Die architektonische Qualität entsteht aus der konstruktiven Klarheit. Eine Hybridstruktur aus Beton und Holz verbindet Robustheit und Leichtigkeit. Der massive Sockel nimmt die stark beanspruchten Bereiche auf, während ein weit gespanntes Holztragwerk die Halle überspannt und den Raum durch seine rhythmische Ordnung prägt. Die Gebäudehülle reagiert auf den heterogenen Kontext. Eine hinterlüftete Metallfassade übersetzt die innere Struktur nach aussen, reflektiert Licht und Vegetation und verleiht dem Baukörper eine ruhige, präzise Erscheinung. So entsteht ein langlebiger, vielseitig nutzbarer Ort, der das gemeinschaftliche Leben nachhaltig stärkt.

Bauaufgabe
Die Herausforderung bestand darin, eine grossmassstäbliche Dreifachturnhalle in ein heterogenes Umfeld aus Schulbauten, Wohnhäusern, Friedhof und Industriearchitektur zu integrieren und gleichzeitig einen identitätsstiftenden Ort für unterschiedliche Nutzungen zu schaffen.

Entwurfsidee
Das Projekt basiert auf einer klaren räumlichen Sequenz von Foyer, Halle und Bühne. Diese lineare Ordnung schafft Orientierung, ermöglicht flexible Nutzungen und verbindet Innen- und Aussenraum.

Standort und Kontext
Die Setzung entlang des Schulwegs stärkt die bestehende Nord-Süd-Achse und präzisiert die Abfolge der Aussenräume. Das Gebäude vermittelt zwischen unterschiedlichen Massstäben und reagiert sensibel auf seine Nachbarschaft.

Konstruktion und Material
Die Hybridbauweise aus Beton und Holz verbindet Dauerhaftigkeit mit räumlicher Qualität. Während Beton die robusten Sockelzonen bildet, prägt das Holztragwerk den Innenraum durch seine rhythmische Ordnung und warme Atmosphäre.

Material der Fassade
Die metallische Gebäudehülle reflektiert Licht und Umgebung und übersetzt die innere Struktur nach aussen. Sie vermittelt zwischen den unterschiedlichen architektonischen Sprachen des Umfelds und verleiht dem Baukörper eine ruhige Präsenz.

Das Projekt von NYX Architectes wurde im Rahmen des Swiss Arc Award 2026 eingereicht und von Nina Farhumand publiziert.

221428918