Siège social et site de production de Ferrum

 
5503 Schafisheim,
Suisse

Publié le 14 avril 2026
aww Architekten AG
Participation au Swiss Arc Award 2026

Données du projet

Données de base

Situation de l'objet
Industriestrasse 11, 5503 Schafisheim, Suisse
Type de bâtiment
Achèvement
07.2025

Données du bâtiment selon SIA 416

Étages
de 6 à 10 étages
Nombre de sous-sols
1 étage
Surface de terrain
54'713 m²
Surface de plancher
13'902 m²
Surface utile
9329 m²
Volume bâti
72'577 m³
Nombre de postes de travail
400
Places de parking
143

Description

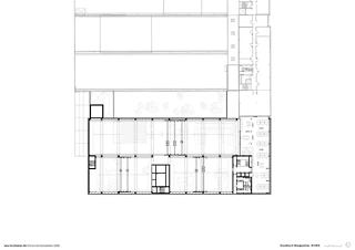
L’extension du nouveau site de production et siège principal de Ferrum AG prévoit un bâtiment de 25 mètres de hauteur, dans lequel les surfaces de production, de stockage et de logistique sont organisées verticalement par superposition. Au-dessus des halles de production prend place un vaste paysage de bureaux horizontal, agrémenté de jardins en toiture, de patios et de terrasses. Le projet se distingue par l’inversion de caractéristiques typologiques établies. Alors que les immeubles de bureaux, traditionnellement hiérarchisés verticalement, sont ici conçus comme des paysages de bureaux horizontaux, les sites de production, habituellement étendus sur un plan horizontal, sont au contraire organisés de manière compacte en hauteur, avec des circulations et des flux courts.

Le concept de durabilité du bâtiment industriel a été conçu de manière intégrée dès le départ. Il place au centre de la réflexion la réduction de l’imperméabilisation des sols, la forte compacité du volume bâti avec une emprise au sol minimale, des trajets courts ainsi qu’une diminution des livraisons. Un espace extérieur de grande qualité ainsi que la mise à disposition de zones de détente et de séjour végétalisées dans les cours intérieures occupent également une place importante dans ce contexte marqué par l’industrie, le long de la route principale A1.

Les différentes zones fonctionnelles et hauteurs sont enveloppées par une façade métallique perforée et ventilée qui unifie l’ensemble. En continuité matérielle avec les bâtiments existants, l’extension se voit conférer une image homogène et une expression industrielle affirmée. Le groupe Ferrum est notamment l’un des leaders mondiaux dans la production d’installations de fermeture de boîtes métalliques ainsi que de centrifugeuses. Environ 400 personnes travaillent au siège principal de Schafisheim dans les domaines de la production, de l’ingénierie et du développement, du montage, de la logistique et des services centraux.

Qu’est-ce qui distingue particulièrement ce programme de construction?
Il convient de souligner la mixité d’usages entre des halles de production présentant des exigences techniques très complexes (portées, comportement vibratoire contrôlé, et cetera) et des espaces de bureaux correspondant à un siège d’entreprise représentatif et contemporain. Cette dualité programmatique marque en permanence le processus de conception et de planification et constitue la base du concept architectural des mondes superposés de la production et du bureau.

Quelles réflexions sous-tendent ce projet?
Le concept prévoit la superposition des halles de production et d’un vaste paysage de bureaux horizontal posé au-dessus. Cette particularité rompt avec les typologies traditionnelles et les inverse. Lisible de l’extérieur de manière plutôt subtile, cette superposition aboutit à un bâtiment très compact, durable et d’une hauteur de 25 mètres.

Quel rôle le site et l’existant ont-ils joué dans la conception?
En tant qu’extension, le projet devait se raccorder aux halles de production et aux ailes de bureaux existantes. Là où cela était possible et nécessaire, les niveaux ont été alignés sur les hauteurs d’étage du bâti existant. La matérialité de l’existant a également été reprise et réinterprétée dans une façade métallique perforée. Le long de la route principale A1, le bâtiment bénéficie d’un effet de repère visible de loin, repris à travers l’image de la façade et la signalétique.

Dans quelle mesure la maîtrise d’ouvrage, le mandant ou les futur·e·s utilisateur·trice·s ont-ils influencé le projet?
Par son attitude visionnaire et audacieuse, la maîtrise d’ouvrage a rendu possible la superposition verticale de la production. Les concepts contemporains d’organisation du travail, avec desk-sharing et paysage de bureaux flexible, sont vécus et soutenus à tous les niveaux de l’entreprise.

Les tendances actuelles en matière d’énergie ou de construction ont-elles influencé le projet?
Comment concevoir un bâtiment de production à grandes portées de manière durable et tournée vers l’avenir? Telle est la question centrale à laquelle répond une approche intégrée de la durabilité. La superposition en hauteur réduit l’imperméabilisation des sols d’environ un tiers par rapport à des sites de production conventionnels organisés horizontalement. La structure rigoureuse du bâtiment permet également des reconversions flexibles à l’avenir. Des zones de repos et de séjour végétalisées et ombragées, à l’intérieur comme autour du bâtiment, témoignent d’un lieu de travail durable et d’une responsabilité sociale assumée. Outre un concept technique de pointe intégrant de vastes installations photovoltaïques et la valorisation de la chaleur résiduelle, la protection contre la surchauffe estivale est assurée par des éléments d’ombrage pilotés sur les larges surfaces vitrées.

Le projet de aww Architekten a été soumis dans le cadre du Swiss Arc Award 2026 et publié par Nina Farhumand.

224530415