Hauptsitz und Produktionsgebäude Ferrum

 
5503 Schafisheim,
Schweiz

Veröffentlicht am 14. April 2026
aww Architekten AG
Teilnahme am Swiss Arc Award 2026

Projektdaten

Basisdaten

Lage des Objektes
Industriestrasse 11, 5503 Schafisheim, Schweiz
Fertigstellung
07.2025
Links

Gebäudedaten nach SIA 416

Stockwerke
6 bis 10
Anzahl Kellergeschosse
1
Grundstücksfläche
54'713 m²
Geschossfläche
13'902 m²
Nutzfläche
9329 m²
Gebäudevolumen
72'577 m³
Anzahl Arbeitsplätze
400
Parkplätze
143

Beschreibung

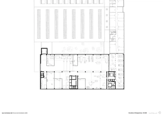
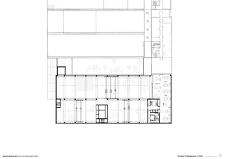
Der Erweiterungsbau des neuen Produktions- und Hauptsitzes der Ferrum sieht ein 25 Meter hohes Gebäude vor, in dem die Produktions-, Lager- und Logistikflächen vertikal gestapelt angeordnet sind. Oberhalb der Produktionshallen befindet sich aufgesetzt eine weitläufige horizontale Bürolandschaft mit Dachgärten, Patios und Terrassen. Wegweisend ist das Konzept der Umkehrung typologischer Charakteristika. Ursprünglich vertikal-hierarchisierte Bürobauten werden als horizontale Bürolandschaften gedacht – klassisch horizontal weitläufige Produktionsstätten hingegen vertikal kompakt angeordnet, mit kurzen Wegen und Strängen.

Das Nachhaltigkeitskonzept des Industriebaus wird von Beginn an integrativ mitentworfen, bei dem die Minimierung der Flächenversiegelung, eine hohe Kompaktheit des Baukörpers mit minimiertem Footprint, kurze Wege sowie eine Reduktion der Anlieferungsfahrten im Zentrum der Betrachtung stehen. Einem qualitativ hochstehenden Aussenraum und der Bereitstellung von grünen Ruhe- und Aufenthaltsbereichen in den Innenhofwelten wird in dem industriell geprägten Kontext entlang der Fernstrasse A1 ebenso ein hoher Stellenwert eingeräumt.

Die unterschiedlichen Funktionsbereiche und -höhen werden in der Fassade durch eine alles überspannende perforierte und hinterlüftete Metallfassade umhüllt. In materieller Kontinuität mit den Bestandesbauten wird dem Erweiterungsbau ein Erscheinungsbild einheitlicher Homogenität und industriellem Antlitz verliehen. Die Ferrum Gruppe ist unter anderem in der Produktion von Dosenverschliessungsanlagen sowie Zentrifugen weltweit führend tätig. Am Hauptsitz in Schafisheim sind rund 400 Personen in den Bereichen Produktion, Engineering und Entwicklung, Montage, Logistik und den zentralen Diensten beschäftigt.

Was ist das Besondere an der Bauaufgabe?
Hervorzuheben ist der Nutzungsmix aus Produktionshallen mit hoch komplexen baulichen Nutzeranforderungen (Spannweiten, kontrolliertem Schwingungsverhalten et cetera) sowie Büronutzungen eines repräsentativen und zeitgemässen Firmenhauptsitzes. Diese raumprogrammatische Bilateralität an Nutzungsanforderungen prägt fortlaufend den Entwurfs- und Planungsprozess und ist Grundlage für das Gebäudekonzept der gestapelten Produktions- und Bürowelten.

Welche Überlegungen liegen diesem Projekt zugrunde?
Das Konzept sieht eine Stapelung der Produktionshallen und einer aufliegenden weitläufigen horizontalen Bürolandschaft vor. Diese Besonderheit bricht mit tradierten Typologien und kehrt diese um. Von aussen eher subtil ablesbar führt die Stapelung zu einem hoch kompakten nachhaltigen Gebäude mit einer Höhe von 25 Metern.

Welche Rolle hatten Standort und Bestand auf den Entwurf?
Als Erweiterungsbau mussten die bestehenden Produktionshallen und Bürostränge angeschlossen werden. Wo möglich und notwendig, wurde an die Geschosshöhen des Bestands angedockt. Ebenso wurde die Materialität des Bestands aufgenommen und interpretativ in einer perforierten Metallfassade fortgeführt. Entlang der Fernstrasse A1 kommt dem Gebäude eine exponierte und von Weitem sichtbare Leuchtturmwirkung zugute, die durch das Fassadenbild und die Signaletik aufgegriffen wird.

Inwiefern haben Bauherrschaft, Auftraggeberschaft oder die späteren Nutzer*innen das Projekt beeinflusst?
Die Auftraggeberschaft machte durch ihre visionäre und kühne Haltung die Stapelung der vertikalen Produktion überhaupt möglich. Die modernen Arbeitsplatzkonzepte mit Desk-Sharing und einer flexiblen Bürolandschaft werden auf allen Ebenen des Unternehmens gelebt und mitgetragen.

Haben aktuelle energetische oder konstruktive Trends das Projekt beeinflusst?
Wie lässt sich ein Produktionsgebäude mit grossen Spannweiten nachhaltig und zukunftsfähig denken? Eine zentrale Frage, die mit einem integrativen Nachhaltigkeitsansatz beantwortet wird. Die Stapelung in der Höhe verringert die Versiegelung um circa 1/3 gegenüber herkömmlichen horizontal angeordneten Produktionsstandorten. Die stringente Gebäudestruktur erlaubt ebenso flexible Umnutzungen in der Zukunft. Grüne und schattenspendende Ruhe- und Aufenthaltszonen in und um das gesamte Gebäude herum sprechen für einen nachhaltigen Arbeitsplatz und gesellschaftliche Verantwortung. Neben einem state-of-the-art-Haustechnikkonzept mit grossflächigen PV-Nutzungen und Abwärmenutzung wird dem sommerlichen Wärmeschutz mit gesteuerten Verschattungselementen der grossflächigen Fensterflächen entgegengewirkt.

Das Projekt von aww Architekten wurde im Rahmen des Swiss Arc Award 2026 eingereicht und von Nina Farhumand publiziert.

 



224462884