Transformation d'un moulin en logements

 
1267 Vich,
Suisse

Publié le 26 février 2026
LDW Sàrl Architectes

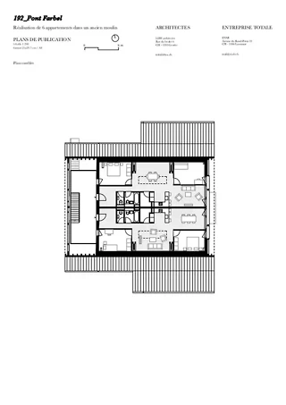
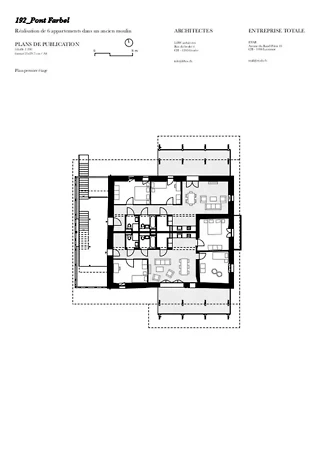
Façade sud-est Façade nord-est Vue depuis la rivière Entrée au rez Logement au rez Cuisine des logement du rez Logement au rez Terrasse couverte au rez Accès aux étages Cuisine des logements 2ème étage Logement au 2ème étage

Données du projet

Données de base

Situation de l'objet
Pont Farbel 11, 1267 Vich, Suisse
Catégorie de projet
Type de bâtiment
Achèvement
01.2026

Données du bâtiment selon SIA 416

Étages
2 étages
Nombre d'appartements
6
Surface de terrain
24'152 m²
Surface de plancher
795 m²
Surface utile
620 m²
Volume bâti
2855 m³
Coûts de construction (BKP 2)
3'600'000,0 mio. CHF
Places de parking
8

Description

Le projet de réhabilitation d'un ancien moulin en six logements se caractérise par une rénovation soignée d'un bâtiment patrimonial régional et un usage de matériaux naturels, si possible issu des filières du réemploi. La bâtisse est entourée d'un grand parc paysager orné d'essences locales et indigènes. Durant les dernières décennies, l'ancien moulin a été noyauté de plusieurs adjonctions successives, qui empêchait la lecture du volume d'origine. Le projet a permis de retirer ces couches pour retrouver et révéler le gabarit d'origine de l’ancien moulin.

Côté rivière, un escalier extérieur offre une circulation couverte et ombragée pour accéder aux appartements des niveaux supérieurs et devient un lieu de rencontre entre les locataires. Cet espace réinterprète la spatialité du moulin d'origine. Les typologies des logements sont simples et offrent trois orientations à chaque appartement. Au rez-de-chaussée et à l'étage, les appartements bénéficient de larges terrasses privatives, alors que ceux des combles profitent du grand volume de la toiture.La toiture est conservée en l’état, avec des renforts ponctuels pour assurer la sécurité structurelle de la charpente. Toutes les solives ont été démontées soigneusement et récupérées pour être réutilisées, comme la trentaine de portes de réemploi récupérée d'un chantier à Estavayer-le-Lac ou les deux-cents mètres carrés de dalles en travertin récupérées de la démolition de la façade de l'hôtel Kempinski à Genève.

Tous les matériaux utilisés sont bruts et naturels: les murs porteurs et les cloisons intérieures sont en blocs de terre compressée, les enduits sont en argile et les vieux murs d'enceinte sont isolés sur leurs faces intérieure et extérieure avec du crépis isolant à la chaux. Les cuisines sont entièrement construites avec de l'épicéa local lasuré et traité avec des huiles naturelles. Tous ces matériaux participent à la régulation d'humidité, la forte inertie thermique et offrent un nouveau confort aux habitants. Plusieurs variantes de projets ont cherché des économies, une forme d'optimisation de moyens et un respect tolérant du bâti existant. Il s'agit d'une recherche continue du bon sens pour créer un projet authentique, modeste et joyeux. Les surfaces sont dimensionnées de manière contrôlée pour offrir des loyers abordables. L'investissement se fait avant tout dans l’humain, ce qui représente une plus-value sociale et économique pour la région et pour l'artisanat local. Les appartements offrent des surfaces extérieures privatives, sans empêcher une collectivisation d'autres espaces partagés: ainsi, l'escalier et la coursive de distribution invite à la rencontre et à l'appropriation. Le grand jardin est collectif. Le choix des locataires a fait l'objet de critères de sélection sociaux et éthiques. Les appartements sont loués à de jeunes familles qui souhaitent s’installer dans un cadre de vie proposant des espaces partagés, favorisant les échanges de voisinage.

Le projet a été soumis par LDW Architectes et publié par Nina Farhumand.

 

 

 

 

 

 

210301279