Umbau einer Mühle zu Wohnraum

 
1267 Vich,
Schweiz

Veröffentlicht am 26. Februar 2026
LDW Sàrl Architectes

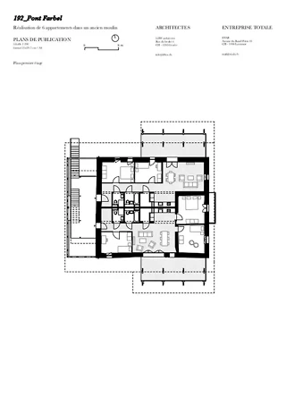
Südostfassade Nordostfassade Blick vom Fluss aus Eingang im Erdgeschoss Wohnung im Erdgeschoss Küche der Wohnungen im Erdgeschoss Wohnung im Erdgeschoss Überdachte Terrasse im Erdgeschoss Zugang zu den Etagen Küche der Wohnungen im 2. Stock Unterkunft im 2. Stock

Projektdaten

Basisdaten

Lage des Objektes
Pont Farbel 11, 1267 Vich, Schweiz
Projektkategorie
Gebäudeart
Fertigstellung
01.2026
Links

Gebäudedaten nach SIA 416

Stockwerke
2
Anzahl Wohnungen
6
Grundstücksfläche
24'152 m²
Geschossfläche
795 m²
Nutzfläche
620 m²
Gebäudevolumen
2855 m³
Gebäudekosten (BKP 2)
3'600'000,0 Mio. CHF
Parkplätze
8

Beschreibung

Das Projekt zur Umnutzung einer ehemaligen Mühle in sechs Wohnungen zeichnet sich durch den sorgfältigen Umgang mit einem regional bedeutenden Bestandsbau sowie durch den Einsatz natürlicher Materialien aus, möglichst aus Wiederverwendungs- und Re-Use-Kreisläufen. Das Gebäude ist von einem grosszügigen Landschaftspark mit einheimischen und standortgerechten Gehölzen umgeben. In den vergangenen Jahrzehnten war die frühere Mühle durch zahlreiche, schrittweise hinzugefügte Anbauten überformt worden, sodass das ursprüngliche Bauvolumen kaum mehr ablesbar war. Im Zuge der Sanierung wurden diese späteren Schichten entfernt, um die ursprüngliche Kubatur freizulegen und wieder erfahrbar zu machen.

Zur Flussseite hin erschliesst eine aussenliegende Treppe die oberen Geschosse. Als überdeckter und verschatteter Laubengang konzipiert, bietet sie nicht nur Zugang zu den Wohnungen, sondern fungiert zugleich als Begegnungsort für die Mieter:innen. Damit interpretiert sie die räumliche Logik der historischen Mühle neu. Die Wohnungstypologien sind klar organisiert und ermöglichen jeweils drei Ausrichtungen pro Einheit. Die Wohnungen im Erd- und Obergeschoss verfügen über grosszügige private Terrassen, während jene im Dachgeschoss vom weitgespannten Volumen unter dem bestehenden Dach profitieren. Dieses blieb in seiner Substanz erhalten und wurde lediglich punktuell verstärkt, um die statische Sicherheit des Dachstuhls zu gewährleisten. Sämtliche Holzbalken wurden sorgfältig demontiert und zur Wiederverwendung gesichert. Ergänzt wird das Re-Use-Konzept durch rund dreissig Türen aus einem Rückbau in Estavayer-le-Lac sowie etwa zweihundert Quadratmeter Travertinplatten, die aus der Demontage der Fassade des Hotels Kempinski in Genf stammen.

Sämtliche verwendeten Materialien sind roh und natürlich. Tragwände und innere Trennwände bestehen aus verdichteten Lehmblöcken, die Oberflächen sind mit Lehm verputzt. Die bestehenden Umfassungsmauern wurden innen wie aussen mit einem dämmenden Kalkputz versehen. Die Küchen sind vollständig aus lokalem, lasiertem Fichtenholz gefertigt und mit natürlichen Ölen behandelt. Diese Materialwahl unterstützt die Feuchtigkeitsregulierung, sorgt für eine hohe thermische Speichermasse und schafft ein spürbar verbessertes Raumklima für die Bewohner*innen. Im Planungsprozess wurden verschiedene Varianten geprüft, stets mit dem Ziel, die Mittel effizient einzusetzen, Eingriffe zu minimieren und den Bestand respektvoll weiterzubauen. Dahinter steht eine kontinuierliche Suche nach konstruktiver Angemessenheit – nach einem Projekt, das authentisch, bescheiden und zugleich lebensfroh ist. Die Wohnflächen sind bewusst kompakt dimensioniert, um bezahlbare Mieten zu ermöglichen. Investiert wird in erster Linie in den Menschen – ein Ansatz, der eine soziale wie auch wirtschaftliche Wertschöpfung für die Region und das lokale Handwerk generiert. Die Wohnungen verfügen über private Aussenbereiche, ohne die gemeinschaftliche Nutzung anderer Räume auszuschliessen. So laden Treppe und Laubengang als gemeinschaftliche Erschliessungszonen zur Begegnung und Aneignung ein. Der grosse Garten ist als kollektiver Freiraum konzipiert. Auch bei der Auswahl der Mieter*innen galten soziale und ethische Kriterien. Vermietet werden die Wohnungen an junge Familien, die sich bewusst für ein Wohnumfeld mit geteilten Räumen entscheiden und den nachbarschaftlichen Austausch suchen.

Das Projekt wurde von LDW Architectes eingereicht und von Nina Farhumand publiziert.

210309087