Transformation immeuble historique à usage résidentiel et commercial

 
1400 Yverdon-les-Bains,
Suisse

Publié le 07 avril 2026
Outsider.Architecture SA
Participation au Swiss Arc Award 2026

Données du projet

Données de base

Situation de l'objet
Rue Maison Rouge 5, 1400 Yverdon-les-Bains, Suisse
Catégorie de projet
Type de bâtiment
Achèvement
03.2025
Liens

Données du bâtiment selon SIA 416

Étages
de 3 à 5 étages
Nombre de sous-sols
1 étage
Nombre d'appartements
7
Surface utile
450 m²

Description

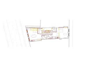
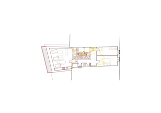
Transformation lourde d’un immeuble du XVIIIe siècle situé au cœur du centre historique d’Yverdon-les-Bains, le projet conjugue requalification patrimoniale et densification maîtrisée. L’intervention comprend la reconfiguration complète du bâtiment et la surélévation de deux niveaux côté canal oriental, afin d’optimiser le volume construit tout en prolongeant la logique du corps bâti existant. La surélévation s’inscrit dans la continuité volumétrique et matérielle, sans rupture formelle, dans une volonté d’intégration fine au tissu ancien. Le bâtiment a été entièrement dénoyauté, seules les façades à valeur historique étant conservées. À l’intérieur, une nouvelle ossature en béton apparent structure l’ensemble et distribue les niveaux autour d’une cage d’escalier centrale. Cette colonne vertébrale contemporaine dessert des appartements repensés selon une trame claire et rationnelle.

Le contraste constitue l’un des fondements du projet: derrière les encadrements en pierre de Hauterive et les percements typiques des XVIIe et XVIIIe siècles, l’intérieur assume un langage résolument contemporain – béton brut, découpes franches, matérialité minimaliste. Côté cour, la vitrine du commerce du rez-de-chaussée est entièrement redessinée dans une écriture actuelle, créant un dialogue assumé entre patrimoine et modernité. Au-delà de l’expression architecturale, l’intervention vise des performances énergétiques élevées, conciliant exigences techniques contemporaines et contraintes patrimoniales fortes, dans une approche globale et exigeante de la transformation en milieu historique.

Le projet de Outsider.Architecture a été soumis dans le cadre du Swiss Arc Award 2026 et publié par Nina Farhumand.

216173305