Durabilité et beauté – la tour H1 de Boltshauser Architekten à Regensdorf
Le nouveau quartier dense qui se construit sur le site de Zwhatt à Regensdorf accueillera à terme près de 8000 personnes. La tour H1 et sa construction hybride en marque le milieu. Conçue par Boltshauser Architekten, elle est le résultat d’une expérimentation constructive associant bois, béton, pisé et acier. Si les émissions de CO2 générées par sa construction sont nettement inférieures à celles d’ouvrages comparables, le projet explore également les potentiels offerts par un bâtiment de logements respectueux du climat en termes d’ambiance et d’expression architecturale.

Photos: Kuster Frey
Située dans l’agglomération zurichoise, la commune de Regensdorf a vu sa population décupler au cours des 70 dernières années pour atteindre aujourd’hui 20 000 habitants. Cette évolution démographique a été accompagnée d’une profonde transformation des zones d’habitation à l’origine composées de trois villages agricoles. Au cours des années 1970, alors que l’entrepreneur général Ernst Göhner réalisait à Adlikon un grand ensemble composé de barres de logements démesurément longues et ordonnées parallèlement dans un parc faisant la transition avec la nature environnante, le village de Regensdorf, autrefois entouré par une forêt d’arbres fruitiers et de noyers, se retrouvait rapidement ceinturé de maisons individuelles et de petits immeubles d’habitation. Hormis la disparition des arbres, le vieux centre du village près de l’église baroque est pourtant resté plus ou moins intact et s’est vu adjoindre en 1973 le complexe Regensdorf Zentrum, composé de trois tours d’habitation de 70 mètres de haut, d’un centre commercial et d’un hôtel de congrès. L’atmosphère urbaine y est aujourd’hui encore nettement palpable, et c’est l’un des rares endroits d’une commune dominée par le trafic automobile, où les gens se déplacent à pied et se retrouvent pour boire un café ou partager un apéritif.

Coupe: © Boltshauser Architekten
Nouveau centre pour Regensdorf
Tout cela est promis à changer. Un nouveau centre est en train de voir le jour près de la gare S-Bahn de Regensdorf-Watt, située entre le quartier de Watt, encore entouré de champs et de vignobles et le centre ancien de Regensdorf. La voie ferrée et la très fréquentée Wehntalerstrasse y définissent une bande de territoire accueillant des bâtiments tertiaires et des usines désaffectés depuis le début du millénaire, à l’image de Gretag, entreprise connue pour ses machines à chiffrer et ses appareils de développement photo.
Le périmètre qui s’étend du Hardhölzli au nord-ouest jusqu’au Schlattwald au sud-est, long d’un kilomètre et large de 200 mètres, est devenu l’une des plus importantes zones de développement urbain du canton de Zurich. Entamé en 2009 par la ville de Regensdorf, le développement de ce site de 21,5 hectares prend aujourd’hui forme et mènera en différentes étapes à la réalisation d’un quartier mixte offrant logements et places de travail pour 6500 à 8000 personnes. Le plan d’aménagement élaboré en 2011 par Jean-Pierre Dürig à partir de l’existant a été intégré dans la révision partielle du règlement sur les zones et les constructions et approuvée en 2016 par l’Office cantonal de l’aménagement du territoire. Le périmètre, passé de zone industrielle à zone centrale, a été divisé en 17 parcelles constructibles dont les accès, les espaces publics ainsi que les alignements ont été définis afin de répondre aux attentes actuelles en matière d’urbanisme et de société.
Parallèle à la Wehntalerstrasse, la Furttalpromenade – un axe réservé aux piétons et aux cyclistes – reliera à terme les zones de détente du Hardhölzli et du Schlattwald, tout en desservant la nouvelle pièce urbaine linéaire alternant bâtiments à cour et immeubles de grande hauteur. C’est exactement au centre du périmètre, en lieu et place du vaste parking de l’entreprise Gretag que se dresse désormais l’ilôt Zwhatt et ses typologies mixtes. Afin d’optimiser le plan d’aménagement déjà existant, le fond de placement Pensimo, propriétaire du site, avait organisé en 2018 une «charette» à dimension européenne. La procédure favorisait le dialogue avec différentes équipes interdisciplinaires invitées à formuler des propositions menant à la création d’un quartier urbain durable. C’est finalement celle des bureaux zurichois Studio Märkli (architecture) et Lorenz Eugster (paysagisme) qui a été retenue.
Respect de l’environnement et du climat
L’espace urbain conçu par Studio Märkli propose une mixité et une densité importantes grâce à la combinaison de bâtiments de différents types. La Furttalpromenade s’y dilate pour devenir la Zwhatt-Platz, un espace public généreux et partiellement végétalisé, qui regroupe un restaurant, un café, des espaces de loisirs et un cinéma en plein air. Elle est bordée par deux tours de logements hautes de 75 mètres et par deux pavillons à l’architecture expressive, conçus par l’architecte-artiste russe Alexander Brodsky. La tour au nord a été conçue par Studio Märkli, celle située au sud par le bureau Boltshauser Architekten qui avait remporté en 2019 la procédure sélective face à des bureaux tels que Gigon / Guyer et Adrian Streich. Après avoir récemment suscité beaucoup d’intérêt avec le centre pour personnes âgées du monastère d’Ingenbohl près de Schwyz et le bâtiment de recherche GLC de l’ETH Zurich, Boltshauser Architekten a profité de la nature expérimentale du plan d’urbanisme pour proposer une construction hybride, respectueuse de l’environnement, et dont la réalisation, grâce à la préfabrication, à l’utilisation réfléchie des matériaux et aux surfaces réduites de logements bien agencés, a permis de réduire considérablement les émissions de CO2 par rapport à une construction traditionnelle du même ordre de grandeur.
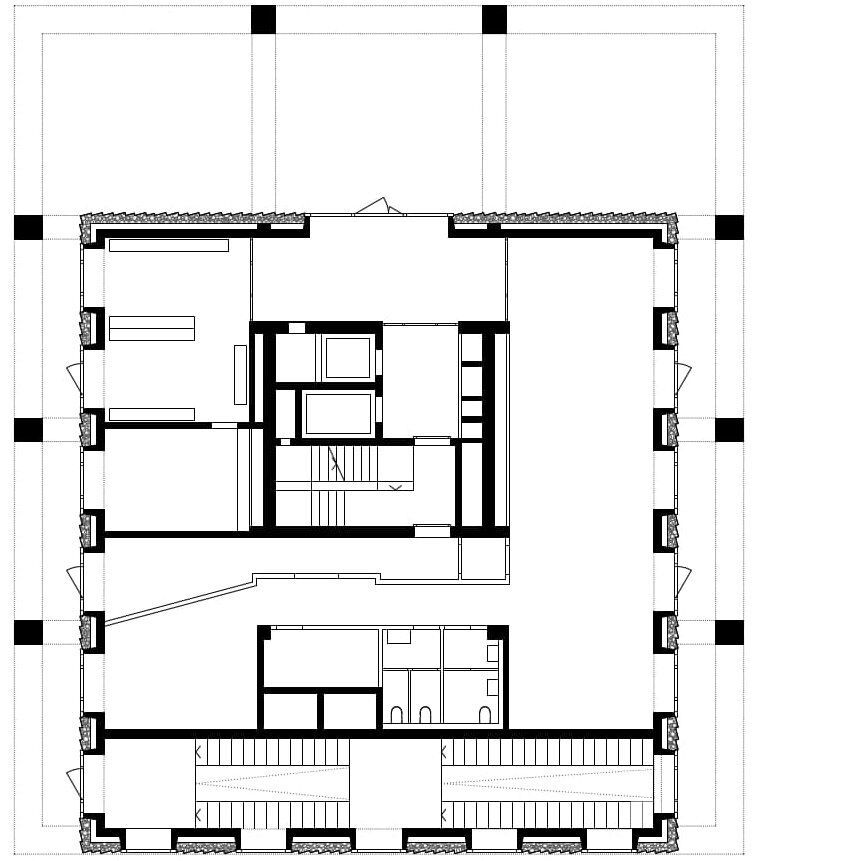
Cette approche expérimentale a donné naissance à un immeuble de 24 étages en bois, béton, pisé et acier. Une table en béton à huit pieds massifs en constitue le socle qui dialogue avec son voisinage au profit d’une arcade de trois niveaux orientée en direction de la Zwhatt-Platz. Le rez-de-chaussée abrite le hall d’entrée et une grande salle pouvant servir de café ou de lieu de rencontre. Les locaux techniques, les caves et un garage à vélos, accessible par une rampe sous l’arcade côté ouest, occupent les deux étages souterrains. Le premier et le deuxième étage abritent des espaces de co-working. Le pisé qui habille les façades protégées par les arcades est une technique que le bureau Boltshauser Architekten a utilisé dans d’autres réalisations, à l’image de la maison Rauch (2008) à Schlins dans le Vorarlberg, et dont il continue d’explorer le potentiel, comme en témoigne un projet de villa expérimentale à Vienne, qui mêle pisé et acier et rappelle formellement les constructions de Louis Kahn.
L’association de cette terre teintée gris-rouge et striée verticalement avec les cadres verticaux en zinc métallique des fenêtres donnent au socle de la tour une allure d’inachevé, de brut, voire presque brutaliste et apparentée à une Arte Povera construite. La table en béton contribue d’une part à l’unicité et à l’identité du bâtiment et accueille d’autre part une trame tridimensionnelle en bois haute de 21 étages. Réalisée avec un assemblage poteaux-poutres, elle est stabilisée par le noyau de distribution en béton qui traverse le milieu du socle ainsi que par les dalles des étages, réalisées elles aussi en éléments de béton. Le revêtement de façade en tôle métallique bordeaux, accentué par des pilastres clairs, protège la construction en bois des intempéries et du risque d’incendie. Lorsque l’on se rapproche du bâtiment, les centaines de modules photovoltaïques disposées horizontalement hérissent le bâtiment qui ressemble alors à un cactus; vus de loin, ils se fondent dans la composition de la façade, participant ainsi au langage architectural à la fois imagé et expressif de la tour. Plus pragmatiquement, ils contribuent à produire une grande partie de l’énergie nécessaire à l’exploitation de la tour. On retrouve un jeu tout aussi subtil de matériaux, de formes et de couleurs dans de nombreuses réalisations du bureau, et tout particulièrement dans le bâtiment à trois tours de l’Europaallee à Zurich.
La valeur discrète des choses
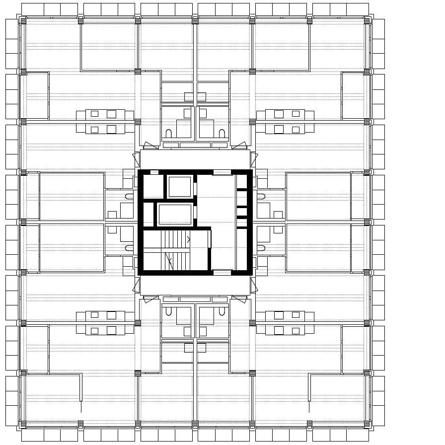
Les hautes arcades abritent l’entrée de la tour que l’on rejoint depuis la place du Zwhatt ou la Sandstrasse. Le visiteur pénètre alors dans un lobby dominé par le gris du béton omniprésent, mais animé par des accents de couleur rougeâtre et bleu acier, ainsi que par des luminaires en verre de Murano soufflé, semblables à des tubes de néon. Ils témoignent de l’attachement du bureau Boltshauser Architekten à la valeur des choses et à celle de leur fabrication – une forme de préciosité discrète – qui s’exprime également dans les façades et qui, sans jamais s’imposer, imprègne tout le bâtiment. Deux ascenseurs et un escalier de secours aux murs en béton recouvert d’un vieux rose calme desservent les 156 logements de 1,5 à 5,5 pièces répartis aux étages supérieurs. Chaque étage en accueille huit disposés autour du noyau distributif: quatre grands logements aux angles profitant de la double orientation et encadrent quatre unités plus petites.
L’organisation des logements à structure modulaire et les loggias placées différemment selon les étages animent la géométrie de la façade. Dans les logements, chambres joker, portes coulissantes et pièces de grande hauteur participent à l’impression spatiale généreuse obtenue malgré des surfaces d’habitation relativement restreinte. Cette approche pragmatique permet de louer des appartements à plusieurs pièces à des prix relativement abordables, accessibles pour des familles monoparentales et pour de jeunes familles. Dans l’ensemble, la réduction de la surface habitable des logements permet d’offrir davantage d’unités, ce qui est une plus-value non seulement écologique et économique, mais aussi sociale compte tenue de la difficulté actuelle à laquelle font face les personnes en quête d’un logement.
Durabilité et préciosité prévalent également dans l’aménagement intérieur des appartements. Les sols des séjours / salles à manger sont majoritairement en anhydrite poncée, tandis que les chambres à coucher bénéficient d’un parquet en hêtre. Les éléments de cuisine clairs avec leurs surfaces en résine synthétique allient robustesse et élégance, et les cloisons sont gipsées. Si les plus grands logements disposent d’un débarras avec tour de lavage, les locataires des petits appartements disposent au 12ème étage d’une laverie partagée dont les parois vitrées donnent accès à une salle commune en double hauteur.
Créativité et confort domestique
Les éléments en béton qui constituent les dalles reposent sur une trame de poutres en BTC en hêtre d’une hauteur statique de 30 centimètres. Le réseau de sprinkler y est fixé et apparent. Cette honnêteté constructive n’est pas étrangère à l’impression de hauteur et d’aération qui marque les logements. Elle est en outre synonyme d’économie de matériaux: un plafond en bois aurait dû être gipsé afin de répondre aux directives anti-incendie. Les sprinklers laissés apparents confèrent aux appartements un aspect inachevé et créatif, tandis que les poutres et les poteaux, qui ressemblent à des lambris au niveau des grandes fenêtres, apportent une touche supplémentaire de confort domestique.
Les logements ne sont pas les seuls à séduire. Les façades soigneusement proportionnées, variant du bordeaux au gris clair en fonction des conditions météorologiques, distinguent également le bâtiment de la masse des tours de logement passe-partout. Cette valorisation esthétique contribue, elle aussi, à la durabilité, au même titre que le mode constructif hybride et modulaire, que la simplicité ou que l’énergie produite par le biais de pompes à chaleur géothermiques et de modules photovoltaïques évoqués précédemment, servant aussi de pare-soleil.
Arriver à produire un tel niveau de beauté et de durabilité n’est pas anodin et aura requis de la part de Boltshauser Architekten un très grand engagement en faveur d’une architecture capable de répondre aux défis contemporains. Un engagement qui est appelé à se répéter non loin de là, puisque le bureau a développé un plan d’aménagement proposant deux tours intégrées à un ilôt pour le périmètre constructible voisin, à l’ouest du Zwhatt-Areal.

Photo: Kuster Frey
Le texte a été publié dans le Swiss Arc Mag 2025–5 et traduit en français par François Esquivié.
Commandez votre exemplaire ici.









