École de musique de Reinach

 
4153 Reinach,
Suisse

Publié le 13 avril 2026
Burckhardt Architektur AG
Participation au Swiss Arc Award 2026

Données du projet

Données de base

Situation de l'objet
Römerstrasse 50, 4153 Reinach, Suisse
Catégorie de projet
Achèvement
02.2026

Données du bâtiment selon SIA 416

Étages
de 3 à 5 étages
Nombre de sous-sols
1 étage
Surface de terrain
780 m²
Surface de plancher
1900 m²
Surface utile
1575 m²
Volume bâti
6088 m³
Nombre d'élèves
750

Description

Reinach, l’une des plus grandes communes du canton de Bâle-Campagne, bien reliée à Bâle, développe sur l’ancien site du fabricant de tubes « Obrist Verpackungen » l’ensemble résidentiel « Hinterkirch ». Nichée entre deux places publiques, la nouvelle école de musique regroupe des sites jusqu’alors dispersés et crée un lieu central dédié à l’enseignement et à la rencontre.

La transformation se manifeste extérieurement прежде tout par le déplacement de l’entrée. À la place de l’ancienne desserte logistique, le bâtiment acquiert ici sa nouvelle adresse. Une façade en bois ventilée définit cette zone comme un socle, complété par un long banc. Une fenêtre ronde permet des vues vers l’intérieur. Le long de la façade ouest, une végétation grimpe du rez-de-chaussée jusqu’aux étages supérieurs.

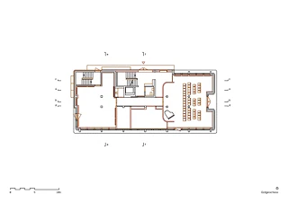
Au rez-de-chaussée se trouve la salle principale, pouvant accueillir jusqu’à 90 personnes. Elle sert à la fois de salle d’enseignement, de répétition et de concerts publics. Aux étages, répartis sur cinq niveaux, se trouvent des salles d’instruments, des salles de percussion, des salles pour groupes avec régie ainsi que des cabines de répétition individuelles insonorisées. Les espaces pour le personnel enseignant et la direction sont situés au 2e étage. Au sous-sol, trois salles de répétition louables complètent le programme. Les zones de circulation des étages supérieurs sont aménagées par des niches et des élargissements offrant différentes possibilités de séjour. Des étagères arrondies et des espaces de retrait répondent à l’usage par des enfants et des jeunes. La reconversion d’un immeuble de bureaux des années 1980 en école de musique a nécessité des interventions acoustiques ciblées. Derrière les fenêtres existantes, un second niveau de fenêtres en bois a été installé. Au rez-de-chaussée et au 1er étage, un système de « boîte dans la boîte » sépare les usages bruyants des usages plus sensibles.

La structure porteuse existante, organisée selon une trame de poteaux, permet des plans flexibles. Grâce à une déconstruction sélective et à des interventions ciblées, les espaces ont été adaptés aux nouvelles exigences, tout en conservant une partie des parois existantes. L’enveloppe du bâtiment est également largement préservée: la façade revêtue d’aluminium a simplement été nettoyée. À l’intérieur, les plafonds suspendus ont été réemployés comme éléments acoustiques. Des panneaux en acier chromé miroir issus du bâtiment existant sont réutilisés dans le foyer et les couloirs, agrandissant visuellement les espaces étroits. Les portes intérieures et d’autres éléments ont été remis en état et réemployés. Les nouvelles interventions font appel à des matériaux renouvelables tels que le bois, le lin et la terre. Dans la grande salle, un mur en terre et pierre structure l’espace et reprend la géométrie arrondie du plan, créant ainsi une zone de scène clairement définie.

Le projet de Burckhardt Architektur a été soumis dans le cadre du Swiss Arc Award 2026 et publié par Nina Farhumand.

224056887