Musikschule Reinach

 
4153 Reinach,
Schweiz

Veröffentlicht am 13. April 2026
Burckhardt Architektur AG
Teilnahme am Swiss Arc Award 2026

Aussenansicht der sanierten, aluverkleideten Bestandsfassade der Musikschule Reinach. Aussenansicht der Musikschule Reinach mit hinterlüfteter Holzfassade. Innenansicht des Foyers im Erdgeschoss mit geschwungener Lehmsteinwand. Eingangsbereich mit Blick auf die geschwungene Lehmsteinwand und Zugang zum Foyer. Korridor im Erdgeschoss mit wiederverwendeter Chromstahldecke. Betontreppe mit Wandbild von Eddie Hara. Erschliessungsbereich im Obergeschoss mit Aufenthaltsmöglichkeiten. Musikraum im Obergeschoss mit Nadelholzfenstern. Korridor im Obergeschoss mit Sitznische. Signaletik im Obergeschoss der Musikschule Reinach. Instrumentalraum im Obergeschoss der Musikschule Reinach. Musikraum mit wiederverwendeten Akustikelementen an den Wänden.

Projektdaten

Basisdaten

Lage des Objektes
Römerstrasse 50, 4153 Reinach, Schweiz
Projektkategorie
Fertigstellung
02.2026
Links

Gebäudedaten nach SIA 416

Stockwerke
3 bis 5
Anzahl Kellergeschosse
1
Grundstücksfläche
780 m²
Geschossfläche
1900 m²
Nutzfläche
1575 m²
Gebäudevolumen
6088 m³
Anzahl Schüler
750

Beschreibung

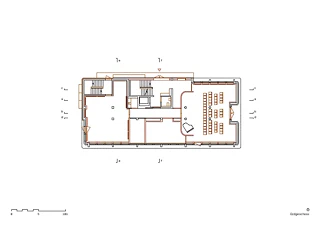
Reinach, eine der grössten Gemeinden im Kanton Basel-Landschaft mit guter Anbindung an Basel, entwickelt auf dem ehemaligen Areal des Tubenherstellers «Obrist Verpackungen» die Wohnüberbauung «Hinterkirch». Eingebettet zwischen zwei öffentlichen Plätzen bündelt die neue Musikschule bislang verteilte Standorte und schafft einen zentralen Ort für Unterricht und Begegnung. Der Umbau macht sich nach aussen vor allem durch die Verlagerung des Eingangs bemerkbar. Anstelle der früheren Lageranbindung erhält das Gebäude hier seine neue Adresse. Eine hinterlüftete Holzfassade fasst diesen Bereich als Sockel, ergänzt durch eine lange Sitzbank. Ein rundes Fenster erlaubt Einblicke ins Innere. Entlang der Westfassade wächst eine Begrünung vom Erdgeschoss bis in die oberen Geschosse.

Im Erdgeschoss liegt der zentrale Saal für bis zu 90 Personen. Er dient sowohl als Unterrichtsraum als auch für Proben und öffentliche Konzerte. Darüber verteilen sich auf fünf Geschossen Instrumentalräume, Schlagzeugräume, Bandräume mit Regie sowie schallisolierte Einzelübungsräume. Räume für Lehrpersonal und Schulleitung befinden sich im 2. Obergeschoss. Im Untergeschoss ergänzen drei vermietbare Proberäume das Angebot. Erschliessungszonen in den Obergeschossen sind durch Nischen und Aufweitungen so gestaltet, dass sie unterschiedliche Aufenthaltsmöglichkeiten bieten. Runde Regale und Rückzugsorte reagieren auf die Nutzung durch Kinder und Jugendliche. Die Umnutzung eines Bürogebäudes aus den 1980er-Jahren zur Musikschule erforderte gezielte akustische Eingriffe. Hinter den bestehenden Fenstern wurde eine zweite Ebene aus Holzfenstern eingebaut. Im Erdgeschoss und 1. Obergeschoss trennt ein Raum-in-Raum-System laute von sensibleren Nutzungen.

Die vorhandene Tragstruktur mit Stützenraster ermöglicht flexible Grundrisse. Durch selektiven Rückbau und gezielte Ergänzungen wurden die Räume an die neuen Anforderungen angepasst, während Teile der bestehenden Wände erhalten blieben. Auch die Gebäudehülle bleibt weitgehend bestehen: Die aluminiumverkleidete Fassade wurde lediglich gereinigt. Im Inneren fanden abgehangene Decken als Akustikelemente Wiederverwendung. Verspiegelte Chromstahlpaneele aus dem Bestand kommen im Foyer und in den Korridoren erneut zum Einsatz und erweitern optisch die engen Räume. Innentüren und weitere Bauteile wurden instandgesetzt und weitergenutzt. Neue Eingriffe erfolgen mit regenerativen Materialien wie Holz, Flachs und Lehm. Im grossen Saal prägt eine Steinlehmwand den Raum und nimmt die gerundete Geometrie des Grundrisses auf, wodurch eine klar gefasste Bühnenzone entsteht.

Das Projekt von Burckhardt Architektur wurde im Rahmen des Swiss Arc Award 2026 eingereicht und von Nina Farhumand publiziert.

224054009